Bénéficiez des services de nos partenaires locaux soigneusement sélectionnés
pour vous accompagner dans votre parcours d'achat immobilier

Maison 142m² à croix-chapeau

— Croix-Chapeau 17220 —
335 000 €
142 m² / 609 m²
7 pièces
parkingbalcon/terrassejardinpiscine

Nos partenaires locaux
17220 – CROIX-CHAPEAU
Maison familiale – 142 m² – 5 chambres – Double garage – Piscine – Jardin clos

À seulement 10 min de La Rochelle/Angoulins et Châtelaillon-Plage

Idéalement située dans un environnement calme et résidentiel, cette maison familiale des années 1960 offre de beaux volumes et un confort moderne après rénovation.

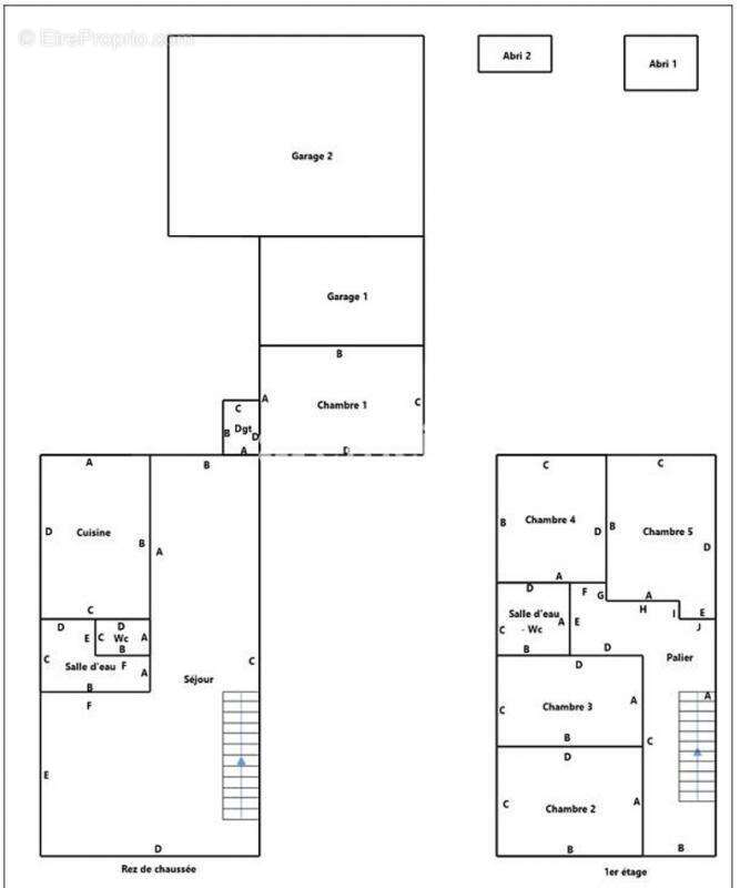
Disposition intérieure

Au rez-de-chaussée :
Une pièce de vie lumineuse de 50 m² avec poêle à granulés et cuisine ouverte aménagée, donnant sur la terrasse.
Une chambre avec accès direct à la terrasse.
Une salle d'eau et un WC indépendant.

À l'étage :
Un palier distribuant 4 chambres (10 à 11 m² chacune).
Une seconde salle d'eau avec WC.

Extérieurs
Piscine chauffée avec local technique.
Grande terrasse carrelée de 50 m² avec pergola en bois.
Double garage de 40 m² avec portes motorisées.
Deux places de stationnement privatives, cellier et local à vélos.
Jardin clos et exposé plein sud.

Informations complémentaires
Chauffage au poêle à granulés + radiateurs électriques.
Taxe foncière : 2 147 €.

Commune desservie par les bus, facilitant l'accès à La Rochelle et aux environs.

Contact : Dominique DUCLOYER – effiCity
[Coordonnées masquées] [Coordonnées masquées]
Les informations sur les risques auxquels ce bien est exposé sont disponibles sur le site Georisque : georisques. gouv. fr
Dominique Ducloyer - EI - est Agent Commercial mandataire en immobilier, immatriculé au Registre Spécial des Agents Commerciaux du Tribunal de Commerce de La Rochelle sous le n°892497843.
Siège social du mandant : effiCity, 48 avenue de Villiers - 75017 PARIS - Société par Actions Simplifiée, société au capital de 132 373,05 euros, immatriculée au RCS Paris 497 617 746 et titulaire de la Carte professionnelle CPI 75[Coordonnées masquées]02 025 - CCI Paris IDF - Caisse de Garantie : GALIAN Assurances 89 rue de la Boétie 75008 Paris
Voir plus

Référence: 197199
Honoraires d'agence de 4.69% à la charge de l'acquéreur
Barème des honoraires
DPE
A
B
C
D
E
F
G
GES
A
B
C
D
E
F
G

Prêt immobilier

Vous souhaitez connaître votre capacité d’emprunt et trouver le meilleur crédit immobilier ?
Réaliser une simulation gratuite

Maison à CROIX-CHAPEAU
Maison à CROIX-CHAPEAU
Maison à CROIX-CHAPEAU
Maison à CROIX-CHAPEAU
Maison à CROIX-CHAPEAU
Maison à CROIX-CHAPEAU
Maison à CROIX-CHAPEAU
Maison à CROIX-CHAPEAU
Maison à CROIX-CHAPEAU
Maison à CROIX-CHAPEAU
Maison à CROIX-CHAPEAU
Maison à CROIX-CHAPEAU
Ce site est protégé par reCAPTCHA la Politique de confidentialité et les Conditions d’utilisation de Google s’appliquent.
Obtenir un prêt immobilier au meilleur taux ?

En poursuivant votre navigation sans modifier vos paramètres, vous acceptez l'utilisation de cookies susceptibles de réaliser des statistiques de visite. Cliquez ici pour plus d'informations