Bénéficiez des services de nos partenaires locaux soigneusement sélectionnés
pour vous accompagner dans votre parcours d'achat immobilier

Appartement 500m² à roubaix

— Roubaix 59100 —
997 000 €
500 m²

Nos partenaires locaux
59100 - ROUBAIX - CENTRE-VILLE - IMMEUBLE MIXTE - 500.0 M² - OPPORTUNITÉ RARE À SAISIR

Zouari Ramzi effiCity, l'agence qui estime votre bien en ligne, vous propose en exclusivité cet immeuble de rapport idéalement situé à Roubaix, au cœur du centre-ville, sur un axe à très forte visibilité.

À VENDRE – IMMEUBLE DE CARACTÈRE – ROUBAIX CENTRE

Localisation
ROUBAIX IMMEUBLE MIXTE 499 M² – EMPLACEMENT N°1 – 997 000 € – FORTE RENTABILITÉ POTENTIELLE

Ce bâtiment indépendant développe 577m² planché brute et 499 m² utiles répartis sur 4 niveaux :

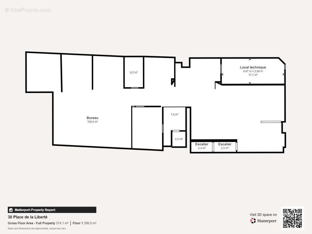
– RDC : 274 m² environ à usage de bureaux ou commerce (accueil, open-space, locaux techniques).
– 1er étage : 105 m² de bureaux cloisonnés.
– 2e étage : 107 m² à usage mixte (bureaux + cuisine + sanitaires).
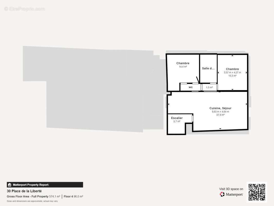
– 3e étage : 96 m² aménagés en appartement de type T4 (séjour-cuisine, 2 chambres, salle d'eau, WC).

Scénarios d'exploitation et projections de rentabilité

Scénario 1 – Mix bureaux / habitation

RDC loué à usage professionnel : 220 €/m²/an → 60 000 €/an

Étages loués en bureaux/habitation : moyenne 14 €/m²/mois → 75 000 €/an

Loyer global brut estimé : 135 000 €/an
→ Rentabilité brute : 13,5 % – rentabilité nette après charges (8 %) ≈ 10,3 %

Scénario 2 – Coliving / tertiaire intégral

Conversion des 3 niveaux supérieurs en 3 logements meublés (100 à 110 m² chacun)

Loyers moyens constatés : 15 €/m²/mois → 60 000 €/an pour les 3 niveaux

RDC exploité en bureaux ou coworking : 50 000 €/an

Loyer global brut estimé : 110 000 €/an
→ Rentabilité brute : 11 % – rentabilité nette ≈ 9 %

Scénario 3 – Locatif patrimonial sécurisé

Baux professionnels en place ou futurs à loyers modérés : 85 000 €/an
→ Rentabilité brute : 8,5 % – rentabilité nette ≈ 7 %

Niveau Usage envisagé Surface utile Hypothèse de valeur locative annuelle Référence marché (Roubaix centre)
--------------- ------------------ -------- ---------------- ---------------------------------------------------------------------- -----------------------------
RDC Commerce/bureaux 274 m² 150–200 €/m²/an 140 à 220 €/m²/an selon linéaire et état
Étages Bureaux / logement 225 m² 90–130 €/m²/an 80 à 140 €/m²/an selon usage et confort
(1er–3e)

Atouts clés

– Emplacement premium, visibilité commerciale directe sur la place principale
– Accès métro, tram et gare à moins de 5 min
– Bâtiment sain, structure béton, distribution verticale optimisée
– Potentiel de valorisation élevé après modernisation ou division

Prix de vente : 997 000 € (honoraires inclus – charge vendeur)

Un actif rare sur le marché roubaisien, alliant emplacement stratégique, fort rendement potentiel et polyvalence d'usage, adapté aux investisseurs recherchant un retour entre 9 et 12 % selon le scénario choisi
Contactez-nous dès maintenant pour organiser une visite et découvrir tout le potentiel de cet immeuble d'exception.

Je suis Ramzi Zouari, consultant immobilier efficity.
Les informations sur les risques auxquels ce bien est exposé sont disponibles sur le site Georisque : georisques. gouv. fr
Ramzi Zouari - EI - est Agent Commercial mandataire en immobilier, immatriculé au Registre Spécial des Agents Commerciaux du Tribunal de Commerce de None sous le n°497560896.
Siège social du mandant : effiCity, 48 avenue de Villiers - 75017 PARIS - Société par Actions Simplifiée, société au capital de 132 373,05 euros, immatriculée au RCS Paris 497 617 746 et titulaire de la Carte professionnelle CPI 75[Coordonnées masquées]02 025 - CCI Paris IDF - Caisse de Garantie : GALIAN Assurances 89 rue de la Boétie 75008 Paris
Voir plus

Référence: 194961
Honoraires d'agence de 4.95% à la charge de l'acquéreur
Barème des honoraires
DPE
A
B
C
D
E
F
G
GES
A
B
C
D
E
F
G

Prêt immobilier

Vous souhaitez connaître votre capacité d’emprunt et trouver le meilleur crédit immobilier ?
Réaliser une simulation gratuite

Appartement à ROUBAIX
Appartement à ROUBAIX
Appartement à ROUBAIX
Appartement à ROUBAIX
Appartement à ROUBAIX
Appartement à ROUBAIX
Appartement à ROUBAIX
Appartement à ROUBAIX
Appartement à ROUBAIX
Appartement à ROUBAIX
Appartement à ROUBAIX
Appartement à ROUBAIX
Appartement à ROUBAIX
Appartement à ROUBAIX
Appartement à ROUBAIX
Appartement à ROUBAIX
Appartement à ROUBAIX
Appartement à ROUBAIX
Appartement à ROUBAIX
Appartement à ROUBAIX
Appartement à ROUBAIX
Appartement à ROUBAIX
Appartement à ROUBAIX
Appartement à ROUBAIX
Ce site est protégé par reCAPTCHA la Politique de confidentialité et les Conditions d’utilisation de Google s’appliquent.
Obtenir un prêt immobilier au meilleur taux ?

En poursuivant votre navigation sans modifier vos paramètres, vous acceptez l'utilisation de cookies susceptibles de réaliser des statistiques de visite. Cliquez ici pour plus d'informations