Commerce 950m² à cernay-la-ville

— Cernay-La-Ville 78720 —
1 800 000 €
950 m²

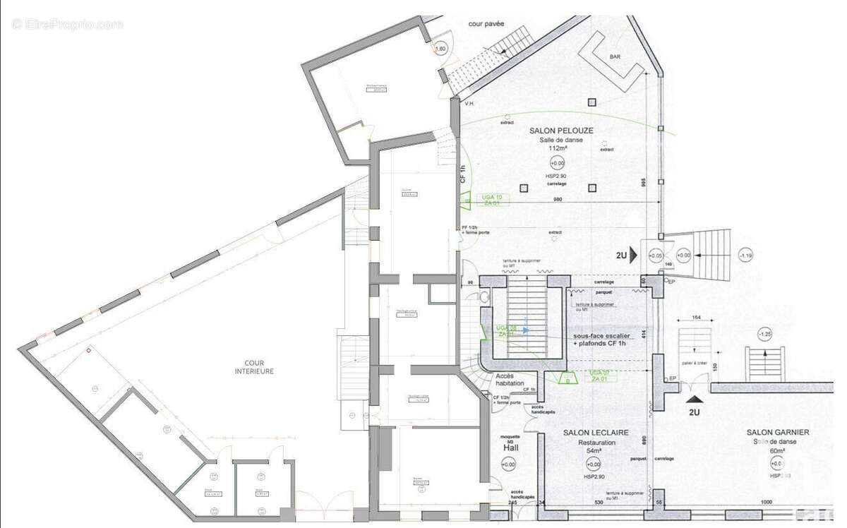
Iad France - Christophe Mutrelle ([Coordonnées masquées]) vous propose : Murs et fonds de commerce à vendre d'un magnifique Hôtel restaurant de 950 m² environ sur 10620 m² environ de parcelle située en plein cOEur de la Vallée de Chevreuse !
Vous avez toujours rêvé de pouvoir exercer vos talents dans un établissement qui serait enfin en adéquation avec vous. Ne cherchez plus vous l'avez trouvé ! Niché au cOEur de la Vallée de Chevreuse, entouré de sa forêt, à proximité immédiate d'un superbe étang tout en bénéficiant d'un passage important de part sa situation, cet établissement de renom à tout pour vous séduire.
Un grand parking permettra à vos clients d'avoir accès facilement à votre établissement en traversant un très beau parc arboré où vous pourrez y organiser des réceptions de toutes sortes. La salle de restaurant n'est pas en reste puisqu'elle vous offre 216 m² environ pour y accueillir vos clients. Pour leur préparer la gastronomie de votre choix vous bénéficiez d'une grande cuisine de 80 m² environ toute équipée avec bien évidement des zones de stockage pour le frais et le sec. Au sous-sol vous pourrez faire danser vos convives dans la discothèque et stocker tous les breuvages qui les raviront. Enfin pour terminer de prendre soin de vos clients vous pourrez leur proposer l'un des 7 appartements dont dispose l'établissement. Et pour finir vous pourrez jouir d'une superbe maison de fonction de 150 m² environ et de sa piscine privé, accolée à l'hôtel, pour accueillir votre famille ou agrandir la partie hostellerie.
Vous l'avez compris il s'agit d'une petite pépite qui ne demande qu'à trouver la bonne personne pour exprimer tout son potentielle. Appelez-moi vite pour en profiter !

Information d'affichage énergétique sur le bien associé à cette annonce : DPE NS indice 0 et GES NS indice 0. La présente annonce immobilière a été rédigée sous la responsabilité éditoriale de M. Christophe Mutrelle (ID 32386), Agent Commercial mandataire en immobilier immatriculé au Registre Spécial des Agents Commerciaux (RSAC) du Tribunal de Commerce de Versailles sous le numéro 842246811
Retrouvez tous nos biens sur notre site internet. www.iadfrance.fr.
Informations LOI ALUR :
Honoraires charge vendeur. (gedeon_6727_32054798)
Voir plus

Référence: 1784170
Honoraires à la charge du vendeur.

Prêt immobilier

Vous souhaitez connaître votre capacité d’emprunt et trouver le meilleur crédit immobilier ?
Réaliser une simulation gratuite

Photo 1 - Commerce à CERNAY-LA-VILLE
Photo 1
Photo 2 - Commerce à CERNAY-LA-VILLE
Photo 2
Photo 3 - Commerce à CERNAY-LA-VILLE
Photo 3
Photo 4 - Commerce à CERNAY-LA-VILLE
Photo 4
Photo 5 - Commerce à CERNAY-LA-VILLE
Photo 5
Photo 6 - Commerce à CERNAY-LA-VILLE
Photo 6
Photo 7 - Commerce à CERNAY-LA-VILLE
Photo 7
Photo 8 - Commerce à CERNAY-LA-VILLE
Photo 8
Photo 9 - Commerce à CERNAY-LA-VILLE
Photo 9
Ce site est protégé par reCAPTCHA la Politique de confidentialité et les Conditions d’utilisation de Google s’appliquent.
Obtenir un prêt immobilier au meilleur taux ?

En poursuivant votre navigation sans modifier vos paramètres, vous acceptez l'utilisation de cookies susceptibles de réaliser des statistiques de visite. Cliquez ici pour plus d'informations