Bénéficiez des services de nos partenaires locaux soigneusement sélectionnés
pour vous accompagner dans votre parcours d'achat immobilier

Maison rare et spacieuse avec toit-terrasse de 70m2 et garage - au coeur des chartrons - bordeaux

— Bordeaux 33300 —
1 195 000 €
250 m² / 162 m²
7 pièces
parkingbalcon/terrasse

Nos partenaires locaux
Hosman vous propose d'acquérir cette maison familiale de 250 m² habitables, située entre la Place Picard et la rue notre-dame à Bordeaux. Dotée d'un grand garage et d'une terrasse de 70 m², cette demeure lumineuse s'intègre parfaitement dans un environnement recherché.

Planifiez facilement votre visite en choisissant le créneau qui vous convient depuis le site d'Hosman.

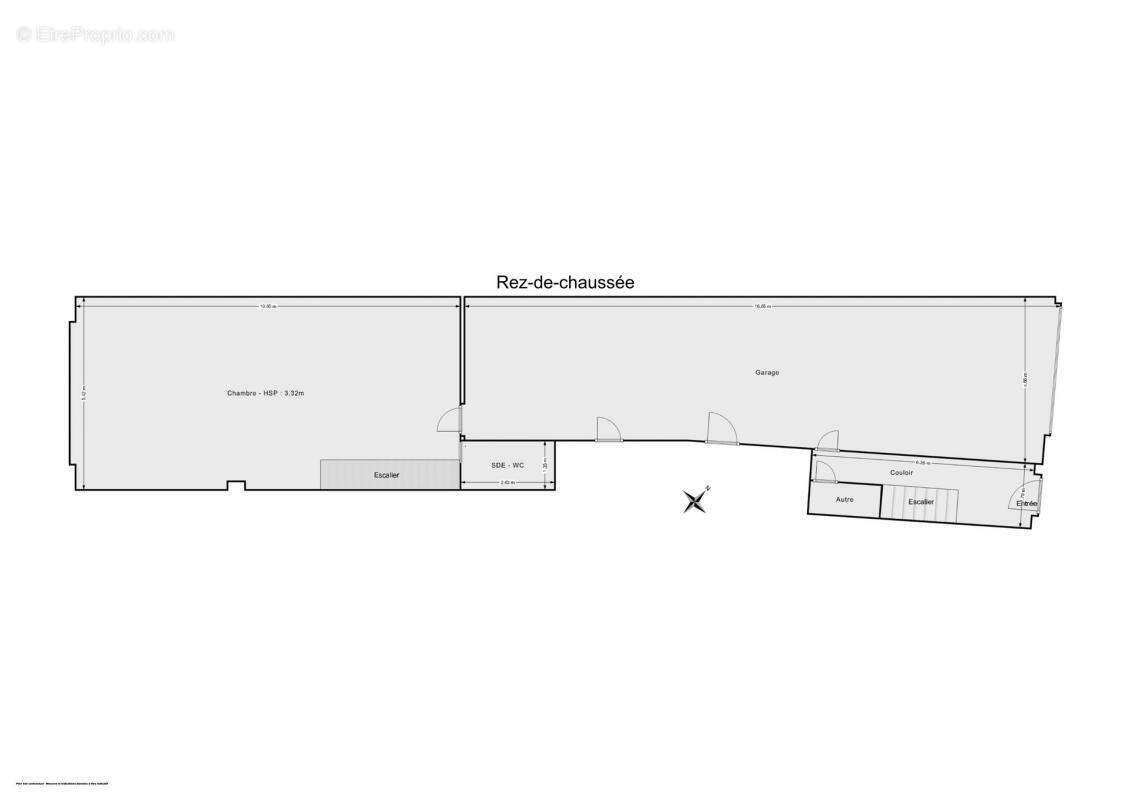
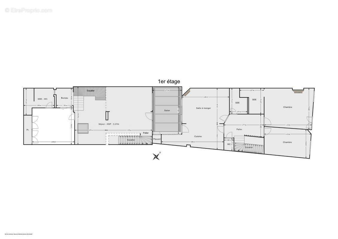
La maison se compose comme suit :
- Au rez-de-chaussée, un espace de réception avec salle de cinéma et un grand garage pour 2 véhicules.
- Au premier étage, l'espace de vie principal avec une cuisine ouverte, accueillante et bien aménagée, ainsi que plusieurs pièces spacieuses dont 3 chambres.
- Au second étage, une impressionnante suite parentale avec accès direct à la terrasse, offrant un espace de détente en plein air.

Le système de chauffage et d'eau chaude est au gaz.
La taxe foncière annuelle est de 3980€

Le quartier des chartrons offre un cadre de vie recherché, parfait pour un quotidien pratique et agréable :

- À deux pas des quais de Bordeaux et de la Garonne, idéal pour les balades, le footing ou simplement profiter des espaces verts.
- De nombreux commerces de proximité, restaurants et cafés animent le quartier, facilitant la vie de tous les jours.
- Plusieurs écoles de qualité se trouvent à moins de 500 mètres, comme l'École Élémentaire Dupaty, pratique pour les familles.
- Le tram B est accessible en seulement 7 minutes à pied (station "Chartrons"), permettant de rejoindre facilement le centre-ville, les universités ou encore la gare Saint-Jean.

Hosman s'efforce de réinventer l'agence immobilière en offrant un service innovant et transparent aux acheteurs et aux vendeurs. Nos frais d'agence sont de 19 900 euros fixes à la charge du vendeur.

Si vous êtes un professionnel de l'immobilier (agent, mandataire ou chasseur immobilier), sachez que toutes les annonces Hosman sont ouvertes à la collaboration. N'hésitez pas à nous contacter pour en discuter.
Voir plus

Référence: a9ef2e
Honoraires à la charge du vendeur.
DPE
A
B
C
D
E
F
G
GES
A
B
C
D
E
F
G

Prêt immobilier

Vous souhaitez connaître votre capacité d’emprunt et trouver le meilleur crédit immobilier ?
Réaliser une simulation gratuite

Maison à BORDEAUX
Maison à BORDEAUX
Maison à BORDEAUX
Maison à BORDEAUX
Maison à BORDEAUX
Maison à BORDEAUX
Maison à BORDEAUX
Maison à BORDEAUX
Maison à BORDEAUX
Maison à BORDEAUX
Maison à BORDEAUX
Maison à BORDEAUX
Maison à BORDEAUX
Maison à BORDEAUX
Maison à BORDEAUX
Maison à BORDEAUX
Maison à BORDEAUX
Maison à BORDEAUX
Maison à BORDEAUX
Ce site est protégé par reCAPTCHA la Politique de confidentialité et les Conditions d’utilisation de Google s’appliquent.
Obtenir un prêt immobilier au meilleur taux ?

En poursuivant votre navigation sans modifier vos paramètres, vous acceptez l'utilisation de cookies susceptibles de réaliser des statistiques de visite. Cliquez ici pour plus d'informations