Bénéficiez des services de nos partenaires locaux soigneusement sélectionnés
pour vous accompagner dans votre parcours d'achat immobilier

Villa hauteurs de voiron re 2020 480 000 €

— La Murette 38140 —
480 000 €
120 m²
5 pièces
parking

Nos partenaires locaux
Exclusivité. Rare à la Vente. Votre Villa prête à être emménagée, libre de suite !

Sur les hauteurs de Voiron, quartier résidentiel et champêtre, dans une impasse au calme, à 5 mn du centre ville, de la gare, des écoles, collèges, lycées et à 6 mn de l'accès autoroute axe Grenoble - Lyon.

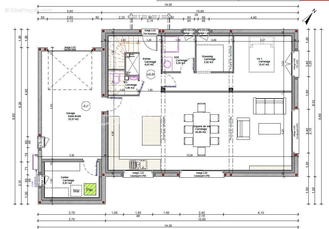
Magnifique maison de 120 m² habitables + 20 m² de garage, exposée Sud/Est, vue dégagée sur les massifs.
Au RDC, vous accédez à un hall d'entrée de 5 m² avec espace de rangement, ouvert sur une belle pièce de vie lumineuse de 43 m² avec cuisine à aménager, 2 baies vitrées exposées sur le Sud et l'Est, donnant sur le jardin, vue dégagée, aucun vis à vis. Derrière la cuisine, un cellier buanderie de 6 m².
Au même niveau, vous disposez d'une suite parentale de 21 m² avec salle d'eau et dressing et d'un toilette indépendant.

A l'étage, vous disposez de 3 chambres, d'une salle de bains avec espace pour double vasque et baignoire, et d'un toilette indépendant.
Attenant au RDC, un garage de 20 m² avec 1 fenêtre et 1 porte motorisée.

Terrain clôturé de 715 m², piscinable. Vue dégagée sur la Sûre.

Livrée avec Garantie Constructeur, Assurance Dommage Ouvrage et garanties décennales.
Chauffage par PAC sur les 2 niveaux par dalles chauffantes. Menuiseries ALU volets motorisés. Carrelage dans les pièces de vie et salles d'eau. Faïence SDB. Crépis blanc. Prestations de qualité.
Reste à prévoir : Parquet dans les chambres, peintures et cuisine.
Normes RE 2020. Excellente Consommation Energétique classée A. 59kWh/m²/an. GES : A. Infiltrométrie réalisée.

Prix de vente : 480 000 € (Honoraires Charge Vendeur).
BSK vous accompagne sur votre projet. N'hésitez pas à me contacter.
Nathalie Cohendet O7 81 11 78 14

Cette annonce référence 274922 vous est présentée par votre agent commercial BSK Immobilier NATHALIE COHENDET (EI) immatriculé au RSAC de GRENOBLE (38000) sous le numéro 87848090400019.

Prix du bien : 480 000,00 €
Les honoraires d'agence sont à la charge du vendeur.

Non soumis au DPE.

Les informations sur les risques auxquels ce bien est exposé sont disponibles sur le site Géorisques : www.georisques.gouv.fr
Voir plus

Référence: 274922_1
Honoraires à la charge du vendeur.

Prêt immobilier

Vous souhaitez connaître votre capacité d’emprunt et trouver le meilleur crédit immobilier ?
Réaliser une simulation gratuite

Maison à LA MURETTE
Maison à LA MURETTE
Maison à LA MURETTE
Maison à LA MURETTE
Maison à LA MURETTE
Maison à LA MURETTE
Maison à LA MURETTE
Maison à LA MURETTE
Maison à LA MURETTE
Maison à LA MURETTE
Maison à LA MURETTE
Ce site est protégé par reCAPTCHA la Politique de confidentialité et les Conditions d’utilisation de Google s’appliquent.
Obtenir un prêt immobilier au meilleur taux ?

En poursuivant votre navigation sans modifier vos paramètres, vous acceptez l'utilisation de cookies susceptibles de réaliser des statistiques de visite. Cliquez ici pour plus d'informations