Bénéficiez des services de nos partenaires locaux soigneusement sélectionnés
pour vous accompagner dans votre parcours d'achat immobilier

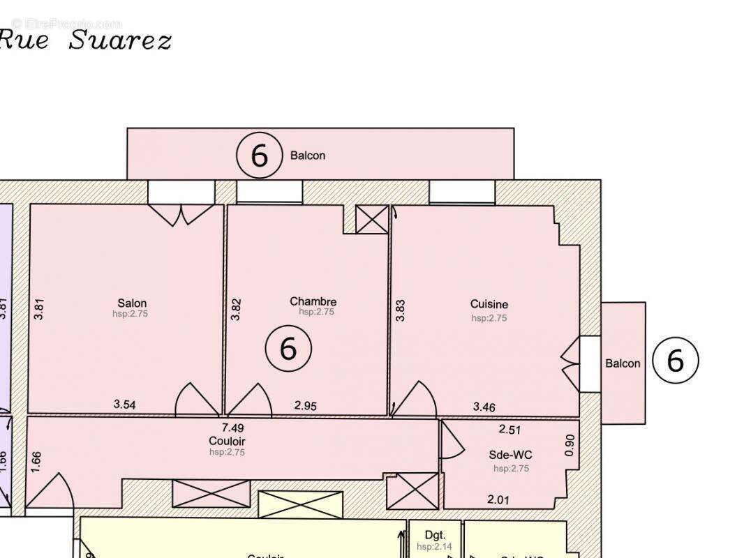
à vendre – appartements 3 pièces de 51,92 m² – albertville rue suarez (secteur saint-sigismond)

— Albertville 73200 —
130 000 €
51 m²
3 pièces
balcon/terrasse

Nos partenaires locaux
Fritsch IMMOBILIER a le plaisir de vous présenter en exclusivité cet appartement T2 lumineux et bien agencé de 51,92 m2, situé au 65 rue Suarez, dans un quartier résidentiel calme et recherché d'Albertville.

Ce bien rare et très recherché sur le secteur séduit par sa fonctionnalité, sa belle luminosité et son espace extérieur privatif sous forme de balcon, offrant un cadre de vie aussi agréable que pratique.

Composition du bien :
• Entrée avec placard
• Grand séjour lumineux avec accès balcon
• Cuisine avec accès sur le second balcon
• 1 chambre confortable avec rangement
• Salle d'eau avec WC

Annexes comprises dans la vente :
• Une place de stationnement
• Une cave

À savoir : Le bâtiment fera prochainement l'objet d'une mise en copropriété. Celle-ci comprendra 11 lots principaux et 24 lots secondaires (places de stationnement et caves).

La quote-part annuelle de charges prévisionnelles est estimée à 650 €, soit environ 54 € par mois.

Informations réglementaires :
Les risques auxquels ce bien est exposé sont consultables sur le site : www.georisques.gouv.fr

Prix de vente : 130 000 € – AUCUN FRAIS D'AGENCE
Voir plus

Référence: T2_VACANT_SUAREZ
Bien en copropriété. Nombre de lots : 35.
DPE
A
B
C
D
E
F
G
GES
A
B
C
D
E
F
G

Prêt immobilier

Vous souhaitez connaître votre capacité d’emprunt et trouver le meilleur crédit immobilier ?
Réaliser une simulation gratuite

Appartement à ALBERTVILLE
Appartement à ALBERTVILLE
Appartement à ALBERTVILLE
Appartement à ALBERTVILLE
Appartement à ALBERTVILLE
Appartement à ALBERTVILLE
Appartement à ALBERTVILLE
Ce site est protégé par reCAPTCHA la Politique de confidentialité et les Conditions d’utilisation de Google s’appliquent.
Obtenir un prêt immobilier au meilleur taux ?

En poursuivant votre navigation sans modifier vos paramètres, vous acceptez l'utilisation de cookies susceptibles de réaliser des statistiques de visite. Cliquez ici pour plus d'informations