Bénéficiez des services de nos partenaires locaux soigneusement sélectionnés
pour vous accompagner dans votre parcours d'achat immobilier

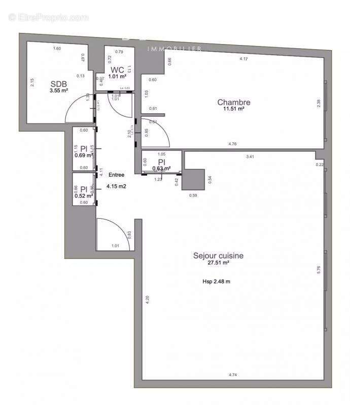
Paris xv - 3 pièces

— Paris-15e 75015 —
450 000 €
50 m²
3 pièces
parkingascenseur

Nos partenaires locaux
Situé au 1er étage d'un bel immeuble moderne de bon standing, un
appartement de 50m² avec un petit balconnet comprenant : une entrée, un double séjour sur rue avec une cuisine ouverte toute équipée et aménagée, une chambre, une salle de bains et un WC indépendant. En annexe : une cave. Appartement bien situé et charmant.

Référence: 85811768
Honoraires d'agence de 3.45% à la charge de l'acquéreur
DPE
A
B
C
D
E
F
G
GES
A
B
C
D
E
F
G

Prêt immobilier

Vous souhaitez connaître votre capacité d’emprunt et trouver le meilleur crédit immobilier ?
Réaliser une simulation gratuite

Appartement à PARIS-15E
Appartement à PARIS-15E
Appartement à PARIS-15E
Appartement à PARIS-15E
Appartement à PARIS-15E
Appartement à PARIS-15E
Appartement à PARIS-15E
Ce site est protégé par reCAPTCHA la Politique de confidentialité et les Conditions d’utilisation de Google s’appliquent.
Obtenir un prêt immobilier au meilleur taux ?

En poursuivant votre navigation sans modifier vos paramètres, vous acceptez l'utilisation de cookies susceptibles de réaliser des statistiques de visite. Cliquez ici pour plus d'informations