Bénéficiez des services de nos partenaires locaux soigneusement sélectionnés
pour vous accompagner dans votre parcours d'achat immobilier

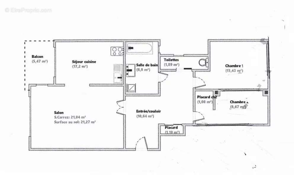
Appartement 82m² à nice

— Nice 06000 —
519 000 €
82 m²
3 pièces
balcon/terrasseascenseur

Nos partenaires locaux
NICE MUSICIENS - SPLENDIDE 3P TERRASSE/POSS. GARAGE : Très lumineux 3P rénové et traversant de 82m² en étage élevé avec jolie terrasse. Hauts plafonds, parquets rénovés, ce grand 3P a su garder tout le charme de l'ancien !

Climatisation. Cave.
Garage fermé de 14.85m² en face de la copropriété en supplément . A quelques pas du boulevard Victor Hugo, des commerces et des arrêts de tramway (ligne 1 & 2). Résidence impeccablement entretenue avec ascenseur.

Référence: 86386156
DPE
A
B
C
D
E
F
G
GES
A
B
C
D
E
F
G

Prêt immobilier

Vous souhaitez connaître votre capacité d’emprunt et trouver le meilleur crédit immobilier ?
Réaliser une simulation gratuite

Appartement à NICE
Appartement à NICE
Appartement à NICE
Appartement à NICE
Appartement à NICE
Appartement à NICE
Appartement à NICE
Appartement à NICE
Appartement à NICE
Ce site est protégé par reCAPTCHA la Politique de confidentialité et les Conditions d’utilisation de Google s’appliquent.
Obtenir un prêt immobilier au meilleur taux ?

En poursuivant votre navigation sans modifier vos paramètres, vous acceptez l'utilisation de cookies susceptibles de réaliser des statistiques de visite. Cliquez ici pour plus d'informations