Bénéficiez des services de nos partenaires locaux soigneusement sélectionnés
pour vous accompagner dans votre parcours d'achat immobilier

Commerce 191m² à neuilly-sur-seine

— Neuilly-Sur-Seine 92200 —
1 995 000 €
191 m²

Nos partenaires locaux
Iad France - Véronique Roche ([Coordonnées masquées]) vous propose : Un lieu d'exception au cOEur de Neuilly-sur-Seine

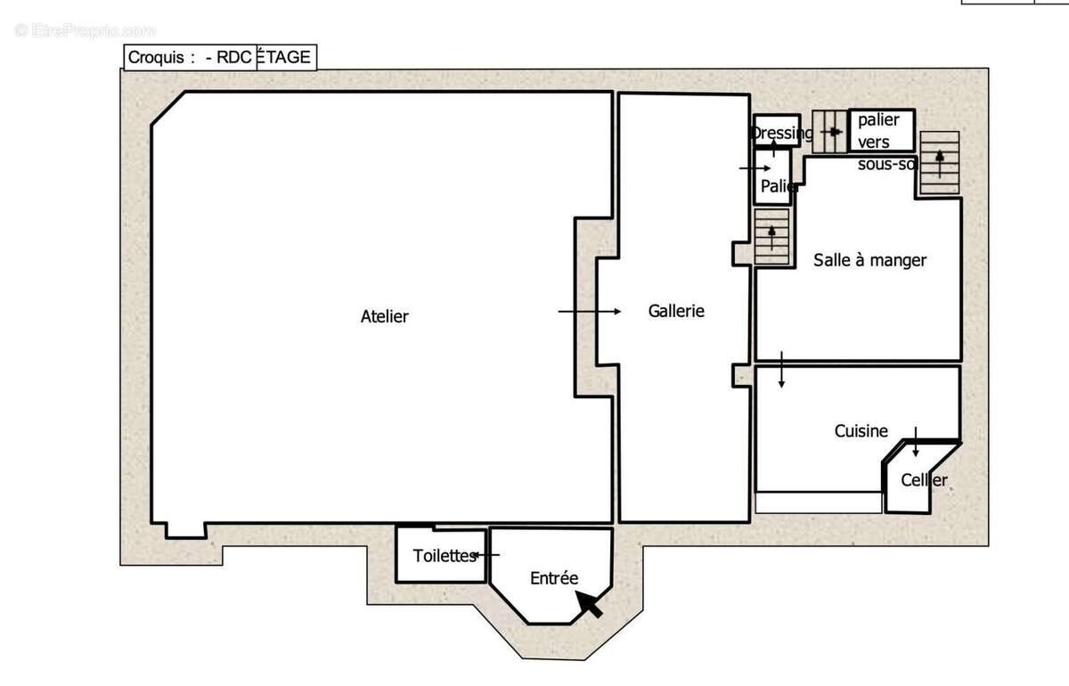
Nichée à l'abri des regards, cette maison-atelier de 204 m² environ, autrefois occupée par le sculpteur et peintre Charles Walhain, est un véritable écrin architectural, où les volumes et la lumière se conjuguent avec élégance. Située à l'arrière d'un immeuble Art Déco signé Henri Sauvage, elle offre un cadre inspirant et raffiné, idéal pour une adresse professionnelle unique.

Dès l'entrée de réception, les lignes élégantes et les matériaux nobles donnent le ton. L'espace principal, véritable scène théâtrale de 105 m² environ, s'élève sous 6 mètres de hauteur sous plafond. Deux immenses verrières laissent filtrer une lumière naturelle spectaculaire, sublimant chaque détail architectural. Une majestueuse cheminée, surplombée d'une sculpture remarquable, capte immédiatement le regard et confère au lieu une atmosphère unique.

Quelques marches viennent rythmer la surface et accentuer la profondeur de l'espace. Les alcôves, bordées de ferronneries d'art et de colonnades, ajoutent une touche de raffinement, créant des espaces propices aux échanges ou à la contemplation. L'ensemble compose une harmonie entre volumes monumentaux et recoins intimistes, faisant de cette propriété un lieu à part.

L'accès se fait par deux entrées distinctes : une entrée de réception, idéale pour accueillir clients ou visiteurs dans un cadre prestigieux, et une entrée fonctionnelle, garantissant une parfaite discrétion et facilitant l'organisation des lieux.

Un lieu à réinventer selon vos ambitions

? Siège social ou cabinet de conseil : Offrez à votre équipe et à vos clients un cadre hors du commun, propice à la créativité et à l'excellence.
? Fondation ou maison d'édition : Un écrin idéal pour des projets culturels et intellectuels d'envergure.
? Showroom ou galerie d'art : Sublimez vos collections dans un décor architectural unique.
? Atelier d'artiste ou studio créatif : Un espace inspirant, baigné de lumière, prêt à accueillir les esprits les plus audacieux.

Ce bien allie élégance et fonctionnalité. Sa modularité permet d'envisager une variété d'aménagements, répondant aussi bien aux besoins d'une entreprise innovante qu'à ceux d'une institution culturelle. Son adresse confidentielle, à quelques minutes de Paris, en fait un lieu privilégié pour installer un projet d'exception, alliant discrétion et prestige.

Une opportunité rare d'investir un lieu hors du temps. Contactez-moi pour en découvrir tout le potentiel.

Information d'affichage énergétique sur le bien associé à cette annonce : classe ENERGIE E indice 278 et classe CLIMAT E indice 61. La présente annonce immobilière a été rédigée sous la responsabilité éditoriale de Mme Véronique Roche (ID 49410), Agent Commercial mandataire en immobilier immatriculé au Registre Spécial des Agents Commerciaux (RSAC) du Tribunal de Commerce de Créteil sous le numéro 908285786
Retrouvez tous nos biens sur notre site internet. www.iadfrance.fr.
Informations LOI ALUR :
Honoraires charge vendeur. (gedeon_6727_32067704)
Voir plus

Référence: 1739831
Honoraires à la charge du vendeur.

Prêt immobilier

Vous souhaitez connaître votre capacité d’emprunt et trouver le meilleur crédit immobilier ?
Réaliser une simulation gratuite

Photo 1 - Commerce à NEUILLY-SUR-SEINE
Photo 1
Photo 2 - Commerce à NEUILLY-SUR-SEINE
Photo 2
Photo 3 - Commerce à NEUILLY-SUR-SEINE
Photo 3
Photo 4 - Commerce à NEUILLY-SUR-SEINE
Photo 4
Photo 5 - Commerce à NEUILLY-SUR-SEINE
Photo 5
Photo 6 - Commerce à NEUILLY-SUR-SEINE
Photo 6
Photo 7 - Commerce à NEUILLY-SUR-SEINE
Photo 7
Photo 8 - Commerce à NEUILLY-SUR-SEINE
Photo 8
Photo 9 - Commerce à NEUILLY-SUR-SEINE
Photo 9
Ce site est protégé par reCAPTCHA la Politique de confidentialité et les Conditions d’utilisation de Google s’appliquent.
Obtenir un prêt immobilier au meilleur taux ?

En poursuivant votre navigation sans modifier vos paramètres, vous acceptez l'utilisation de cookies susceptibles de réaliser des statistiques de visite. Cliquez ici pour plus d'informations