Bénéficiez des services de nos partenaires locaux soigneusement sélectionnés
pour vous accompagner dans votre parcours d'achat immobilier

Maison gisors 7 pièces 249 m²

— Gisors 27140 —
330 000 €
249 m² / 1 721 m²
7 pièces
parkingbalcon/terrassejardin

Nos partenaires locaux
A 15 min de Gisors - 20 min de Beauvais - 1h30 de Paris

En exclusivité, Steven Raveleau vous propose :

Située dans un environnement paisible, cette maison familiale pleine de charme allie authenticité et confort moderne. D'une superficie habitable de 249 m², elle est édifiée sur un terrain clos et arboré de 1 720 m² avec portail motorisé, garage de 37 m², cave/chaufferie, deux terrasses et un petit bassin.

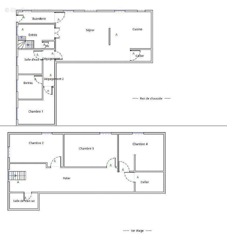
Le rez-de-chaussée offre une vaste entrée, un séjour lumineux de 59 m² avec insert, une cuisine aménagée et équipée ouverte sur un espace repas de 28 m² un cellier attenant, une buanderie/arrière-cuisine et un WC indépendant
Un couloir dessert une chambre de 27 m² avec dressing, un bureau, ainsi qu' une salle d'eau avec WC .

A l'étage, un grand palier distribue trois belles chambres (dont deux avec dressing), une salle de bains avec WC, ainsi qu'une pièce supplémentaire servant de stockage.

Le bien dispose d'un chauffage au fioul complété par un insert bois.
Les huisseries PVC double vitrage ont été remplacées en 2011, et la toiture a été refaite en 2021, assurant un confort optimal.

Aucun travaux n'est à prévoir : la maison est en parfait état et habitable de suite.

La commune dispose également d'une supérette, d'une pharmacie et d'une école, accessibles à pied.

Un bien spacieux, chaleureux et soigneusement entretenu, idéal pour une grande famille ou pour toute personne en quête d'un cadre de vie paisible à la campagne.

DPE D GES D
Montant estimé des dépenses annuelles d'énergie pour un usage standard entre 5120 et 7000 euros indexées aux années 2021, 2022 et 2023.
Pour visiter et vous accompagner dans votre projet, contactez Steven RAVELEAU, au [Coordonnées masquées] ou, par courriel à [Coordonnées masquées].
Selon l'article L.561.5 du Code Monétaire et Financier, pour l'organisation de la visite, la présentation d'une pièce d'identité vous sera demandée.
Cette présente annonce a été rédigée sous la responsabilité éditoriale de Steven RAVELEAU agissant sous le statut d'agent commercial immatriculé au RSAC BEAUVAIS 840060628 auprès de SAS PROPRIETES PRIVEES, au capital de 44 920 euros, ZAC LE CHÊNE FERRÉ - 44 ALLÉE DES CINQ CONTINENTS 44120 VERTOU; SIRET 487 624 777 00040, RCS Nantes. Carte Professionnelle Transactions sur immeubles et fonds de commerce (T) et Gestion immobilière (G) n°CPI 44[Coordonnées masquées]10 388 délivrée par la CCI Nantes - Saint Nazaire. Compte séquestre n°3[Coordonnées masquées] BPA SAINT-SEBASTIEN-SUR-LOIRE (44230). Garantie GALIAN-SMABTP - 89 rue de la Boétie, 75008 Paris - n°28137 J pour 2 000 000 euros pour T et 120 000 euros pour G. Assurance responsabilité civile professionnelle par GALIAN-SMABTP n° de police 28137.J

Mandat réf : 426270 - Le professionnel garantit et sécurise votre projet immobilier.

Steven RAVELEAU (EI) Agent Commercial - Numéro RSAC : BEAUVAIS 840060628 - .
Les informations sur les risques auxquels ce bien est exposé sont disponibles sur le site Géorisques : www. georisques. gouv. fr
Voir plus

Référence: 426270SRV
Honoraires à la charge du vendeur.
DPE
A
B
C
D
E
F
G
GES
A
B
C
D
E
F
G

Prêt immobilier

Vous souhaitez connaître votre capacité d’emprunt et trouver le meilleur crédit immobilier ?
Réaliser une simulation gratuite

Maison à GISORS
Maison à GISORS
Maison à GISORS
Maison à GISORS
Maison à GISORS
Maison à GISORS
Maison à GISORS
Maison à GISORS
Maison à GISORS
Maison à GISORS
Maison à GISORS
Maison à GISORS
Maison à GISORS
Maison à GISORS
Maison à GISORS
Maison à GISORS
Maison à GISORS
Ce site est protégé par reCAPTCHA la Politique de confidentialité et les Conditions d’utilisation de Google s’appliquent.
Obtenir un prêt immobilier au meilleur taux ?

En poursuivant votre navigation sans modifier vos paramètres, vous acceptez l'utilisation de cookies susceptibles de réaliser des statistiques de visite. Cliquez ici pour plus d'informations