Bénéficiez des services de nos partenaires locaux soigneusement sélectionnés
pour vous accompagner dans votre parcours d'achat immobilier

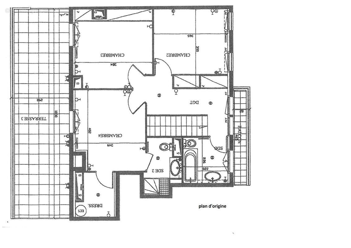
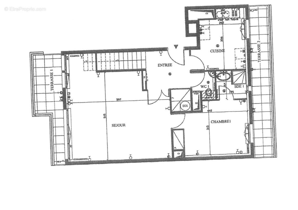
Courbevoie gare - duplex de 5 pièces en dernier étage

— Courbevoie 92400 —
1 090 000 €
126 m²
5 pièces
parkingbalcon/terrasseascenseur

Nos partenaires locaux
COURBEVOIE CENTRE VILLE GARE APPARTEMENT 5 PIECES DE 126M² EN DUPLEX DERNIER ETAGE AVEC TERRASSES DANS UN RESIDENCE DE 2001. 1er niveau : Entrée, cuisine aménagée, séjour de 31m², chambre, salle d'eau, wc , TERRASSES 17m². Second niveau : salon de 34m² (possibilité de créer 2 chambres supplémentaires) , chambre, salle d'eau-wc, dressing, terrasse de 23m². En sous sol parking double et une cave. CLAIR, CALME, EXPOSÉ EST/OUEST. Au coeur des commerces, à proximité de la gare. (3.63 % honoraires TTC à la charge de l'acquéreur.) Copropriété de 334 lots - dont 91 lots habitation. (Pas de procédure en cours). Charges annuelles : 5270 euros.
Voir plus

Référence: 13473
Bien en copropriété. Nombre de lots : 334. Charges de copropriété : 5270 €.
Honoraires d'agence de 3.63% à la charge de l'acquéreur
Barème des honoraires
DPE
A
B
C
D
E
F
G
GES
A
B
C
D
E
F
G

Prêt immobilier

Vous souhaitez connaître votre capacité d’emprunt et trouver le meilleur crédit immobilier ?
Réaliser une simulation gratuite

Appartement à COURBEVOIE
Appartement à COURBEVOIE
Appartement à COURBEVOIE
Appartement à COURBEVOIE
Appartement à COURBEVOIE
Appartement à COURBEVOIE
Appartement à COURBEVOIE
Appartement à COURBEVOIE
Appartement à COURBEVOIE
Appartement à COURBEVOIE
Appartement à COURBEVOIE
Appartement à COURBEVOIE
Appartement à COURBEVOIE
Appartement à COURBEVOIE
Appartement à COURBEVOIE
Appartement à COURBEVOIE
Ce site est protégé par reCAPTCHA la Politique de confidentialité et les Conditions d’utilisation de Google s’appliquent.
Obtenir un prêt immobilier au meilleur taux ?

En poursuivant votre navigation sans modifier vos paramètres, vous acceptez l'utilisation de cookies susceptibles de réaliser des statistiques de visite. Cliquez ici pour plus d'informations