Bénéficiez des services de nos partenaires locaux soigneusement sélectionnés
pour vous accompagner dans votre parcours d'achat immobilier

Maison 7 pièces 164 m² - saint-morillon

— Saint-Morillon 33650 —
387 900 €
164 m² / 1 292 m²
7 pièces
parkingjardin

Nos partenaires locaux
SAINT-MORILLON - 33650
A 5 min de LA BREDE, accès rapide A62 et proximité gares

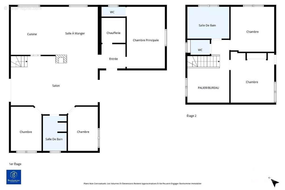
Dans un quartier calme, et sur une parcelle d'environ 1300 m², venez découvrir cette maison traditionnelle aux beaux volumes.

Elle propose des espaces agréables à vivre avec pour commencer une pièce de vie de 60 m², deux chambres et une salle d'eau avec wc sur la partie rez-de-chaussée ainsi qu'une grande pièce de 15 m² avec wc servant aujourd'hui de bureau mais pouvant devenir la chambre parentale avec un 2nd point d'eau.
A l'étage, deux chambres de 14 m², une grande salle de bains et un wc indépendant.

Double garage de 56 m² permettant de stationner jusqu'à deux véhicules + une partie atelier.

Au total avec ses 5 chambres et le potentiel du garage, cette maison offre de nombreuses possibilités. Quelques travaux de rafraîchissement à prévoir, à vos projets !

Mentions Loi Alur :
- Agence : N° SIREN 942 709 676
- Statut du négociateur : Agent Immobilier
- Prix FAI TTC de 387 900 €
- Honoraires charge VENDEUR
- Référence annonce : 013VMB25
- Consommation énergétique : 121 kWh/m²/an
- Emission de gaz à effet de serre : 37 Kg CO2/m²/an
- Montant estimé des dépenses annuelles pour un usage standard : entre 2400 € et 3280 €/an. Prix moyen des énergies indexé sur l’année de référence : 2021, 2022,2023
- Les informations sur les risques auxquels ce bien est exposé sont disponibles sur le site Géorisques : georisques.gouv.fr
Voir plus

Référence: 86374791
Barème des honoraires
DPE
A
B
C
D
E
F
G
GES
A
B
C
D
E
F
G

Prêt immobilier

Vous souhaitez connaître votre capacité d’emprunt et trouver le meilleur crédit immobilier ?
Réaliser une simulation gratuite

Maison à SAINT-MORILLON
Maison à SAINT-MORILLON
Maison à SAINT-MORILLON
Maison à SAINT-MORILLON
Maison à SAINT-MORILLON
Maison à SAINT-MORILLON
Maison à SAINT-MORILLON
Maison à SAINT-MORILLON
Maison à SAINT-MORILLON
Maison à SAINT-MORILLON
Maison à SAINT-MORILLON
Ce site est protégé par reCAPTCHA la Politique de confidentialité et les Conditions d’utilisation de Google s’appliquent.
Obtenir un prêt immobilier au meilleur taux ?

En poursuivant votre navigation sans modifier vos paramètres, vous acceptez l'utilisation de cookies susceptibles de réaliser des statistiques de visite. Cliquez ici pour plus d'informations