Local commercial de 139m² avec habitation au dessus

— Mareuil-Caubert 80132 —
354 000 €
230 m²
2 pièces
balcon/terrasse

Laurent Jacquet propose à la vente un local commercial avec logement à l'étage, idéalement situé sur un axe passant, à la sortie d'Abbeville en direction de Huppy, à proximité de l'autoroute A28, sur la commune de Mareuil-Caubert.

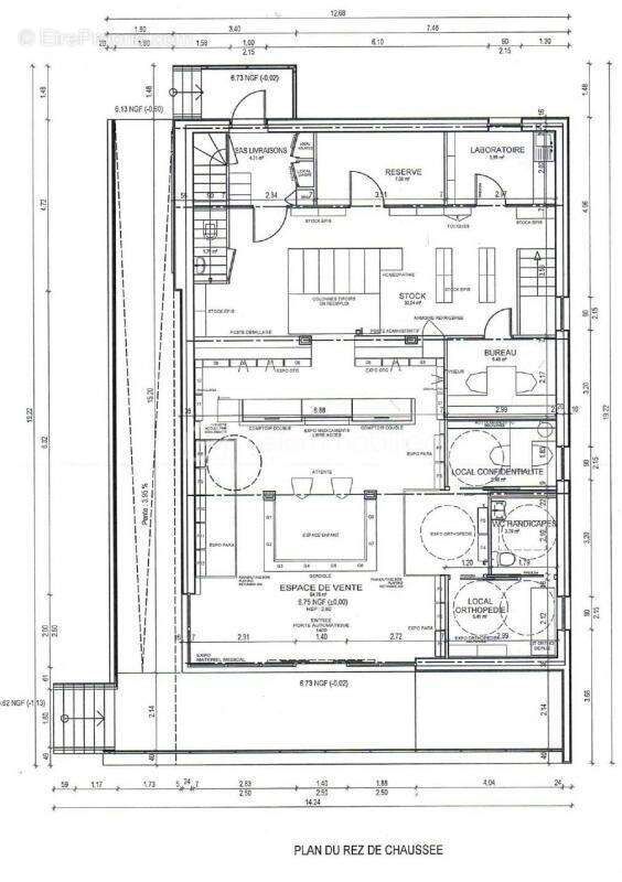
Ce local, avec accès PMR, était exploité en pharmacie. Il offre une surface d'environ 140 m²et ne comporte aucun mur porteur (uniquement quatre poutres). Il se compose de plusieurs espaces : zone de vente, zone de stockage, bureaux, sanitaires ainsi qu'un espace drive.

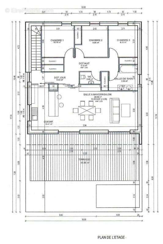
Une entrée indépendante donne accès à l'étage, où se trouve une habitation de 90 m² à terminer, prévue pour trois chambres, avec une terrasse de 45 m².

À l'extérieur, une allée avec places de stationnement à finaliser, contourne le bâtiment et permet l'accès au drive. L'ensemble est édifié sur un terrain d'environ 3 150 m².

Cette annonce référence 308492 vous est présentée par votre agent commercial BSK Immobilier LAURENT JACQUET (EI) immatriculé au RSAC de AMIENS (80000) sous le numéro 95248501900014.

Prix du bien : 354 000,00 €
Les honoraires d'agence sont à la charge du vendeur.

A propos des performances énergétiques :
Date de réalisation du diagnostic énergétique : 10/10/2025
Score DPE : 115 kWhEP/m²/an
Score GES : 3 kgepCO2/m²/an
Montant estimé des dépenses annuelles d'énergie pour un usage standard : entre 1.00 € et 2.00 € par an. Prix moyens des énergies indexés sur l'année 2021 (abonnements compris).

Les informations sur les risques auxquels ce bien est exposé sont disponibles sur le site Géorisques : www.georisques.gouv.fr
Voir plus

Référence: 308492
Honoraires à la charge du vendeur.
DPE
A
B
C
D
E
F
G
GES
A
B
C
D
E
F
G

Prêt immobilier

Vous souhaitez connaître votre capacité d’emprunt et trouver le meilleur crédit immobilier ?
Réaliser une simulation gratuite

Commerce à MAREUIL-CAUBERT
Commerce à MAREUIL-CAUBERT
Commerce à MAREUIL-CAUBERT
Ce site est protégé par reCAPTCHA la Politique de confidentialité et les Conditions d’utilisation de Google s’appliquent.
Obtenir un prêt immobilier au meilleur taux ?

En poursuivant votre navigation sans modifier vos paramètres, vous acceptez l'utilisation de cookies susceptibles de réaliser des statistiques de visite. Cliquez ici pour plus d'informations