Appartement meuble et loué

— Maizieres-Les-Metz 57280 —
65 000 €
44 m²
2 pièces
parkingbalcon/terrasseascenseur

MAIZIÈRES-LES-METZ, au sein de la résidence senior 'La Rose du Beffroi' érigée en 2010,
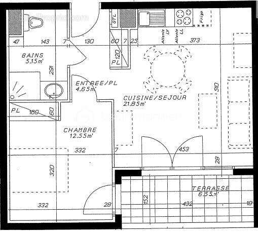
Un INVESTISSEMENT de choix, lucratif et sécurisé pour ce F2 de 44 m² avec terrasse et Parking.

Cet appartement MEUBLÉ permet une rentabilité immédiate et sans risque.
C'est un investissement patrimonial de choix, dans une résidence de standing, toujours entretenue ET sans vacances locatives.

Cet appartement joliment meublé dispose d'une entrée, d'une cuisine séjour, d'une chambre spacieuse (12,5m2)d'une SDB et WC.
Une terrasse (6,5m2) et une place de parking complètent ce bien.

Opportunité rare dans cette belle résidence SENIOR idéalement placée entre METZ et le LUXEMBOURG.
Je reste disponible avec plaisir pour tous renseignements.

Cette annonce référence 298837 vous est présentée par votre agent commercial BSK Immobilier CELINE BRUNOT (EI) immatriculé au RSAC de WOELFLING-LES-SARREGUEMINES (57200) sous le numéro 44317084000021.

Prix du bien : 65 000,00 €
Les honoraires d'agence sont à la charge du vendeur.

A propos de la copropriété :
Pas de procédure en cours.
Nombre de lots : 2
Charges prévisionnelles annuelles : 1 000,00 €

A propos des performances énergétiques :
Date de réalisation du diagnostic énergétique : 22/10/2025
Score DPE : 162 kWhEP/m²/an
Score GES : 32 kgepCO2/m²/an
Montant estimé des dépenses annuelles d'énergie pour un usage standard : entre 580.00 € et 820.00 € par an. Prix moyens des énergies indexés sur l'année 2021 (abonnements compris).

Les informations sur les risques auxquels ce bien est exposé sont disponibles sur le site Géorisques : www.georisques.gouv.fr
Voir plus

Référence: 298837
Bien en copropriété. Nombre de lots : 2. Charges de copropriété : 83 €.
Honoraires à la charge du vendeur.
DPE
A
B
C
D
E
F
G
GES
A
B
C
D
E
F
G

Prêt immobilier

Vous souhaitez connaître votre capacité d’emprunt et trouver le meilleur crédit immobilier ?
Réaliser une simulation gratuite

Appartement à MAIZIERES-LES-METZ
Appartement à MAIZIERES-LES-METZ
Appartement à MAIZIERES-LES-METZ
Appartement à MAIZIERES-LES-METZ
Appartement à MAIZIERES-LES-METZ
Appartement à MAIZIERES-LES-METZ
Appartement à MAIZIERES-LES-METZ
Appartement à MAIZIERES-LES-METZ
Appartement à MAIZIERES-LES-METZ
Appartement à MAIZIERES-LES-METZ
Ce site est protégé par reCAPTCHA la Politique de confidentialité et les Conditions d’utilisation de Google s’appliquent.
Obtenir un prêt immobilier au meilleur taux ?

En poursuivant votre navigation sans modifier vos paramètres, vous acceptez l'utilisation de cookies susceptibles de réaliser des statistiques de visite. Cliquez ici pour plus d'informations