Bénéficiez des services de nos partenaires locaux soigneusement sélectionnés
pour vous accompagner dans votre parcours d'achat immobilier

Bouliac - projet de maison d'architecte - john taylor

— Bouliac 33270 —
1 320 000 €
220 m² / 2 500 m²
6 pièces
jardinpiscine

Nos partenaires locaux
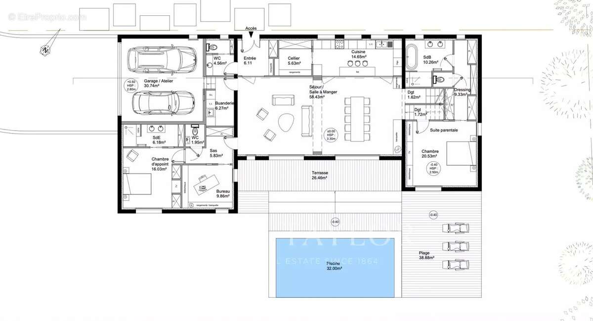
Situé dans une impasse paisible du Haut Bouliac, ce projet immobilier offre une opportunité rare dans un environnement privilégié.

Le terrain de 2 500 m², en retrait de la voie publique, bénéficie d’une vue imprenable sur un bois protégé, apportant calme et intimité à la future résidence. La bâtisse, d’environ 220 m², est orientée sud-ouest, permettant de profiter pleinement de la luminosité naturelle toute la journée.

Conçue pour accueillir une vie de famille harmonieuse, cette maison mise sur des espaces généreux et une orientation optimale. Le séjour spacieux, approchant les 60 m² et 3m30 de hauteur sous plafond, s’ouvre sur une terrasse sans vis-à-vis, idéale pour recevoir ou se détendre en toute intimité. De là, on accède à une piscine pour profiter pleinement du cadre naturel.

L’agencement comprend un bureau fermé avec vue sur le forêt, permettant d’y télétravailler, quatre chambres équipées de salles d’eau, ainsi qu’une suite parentale dotée d’une salle de bains et d’un dressing, garantissant confort et espace privé pour chacun. Un double garage vient compléter cette proposition, offrant stationnement pratique et sécurisé.

Ce projet permet de concevoir une résidence raffinée, lumineuse et en harmonie avec son environnement, dans un secteur prisé du Haut Bouliac, où confort et nature se rencontrent pour une qualité de vie exceptionnelle.

La valeur du terrain est de 650 000 € (frais d'agence à la charge de l'acquéreur inclus). La mission d'architecte, la construction et son suivi sont chiffrés à 670 000 €.

Contactez-nous dès aujourd'hui pour obtenir de plus amples informations sur ce projet.
Voir plus

Référence: V0516BX
Barème des honoraires

Prêt immobilier

Vous souhaitez connaître votre capacité d’emprunt et trouver le meilleur crédit immobilier ?
Réaliser une simulation gratuite

Maison à BOULIAC
Maison à BOULIAC
Maison à BOULIAC
Maison à BOULIAC
Maison à BOULIAC
Maison à BOULIAC
Maison à BOULIAC
Maison à BOULIAC
Maison à BOULIAC
Ce site est protégé par reCAPTCHA la Politique de confidentialité et les Conditions d’utilisation de Google s’appliquent.
Obtenir un prêt immobilier au meilleur taux ?

En poursuivant votre navigation sans modifier vos paramètres, vous acceptez l'utilisation de cookies susceptibles de réaliser des statistiques de visite. Cliquez ici pour plus d'informations