Bénéficiez des services de nos partenaires locaux soigneusement sélectionnés
pour vous accompagner dans votre parcours d'achat immobilier

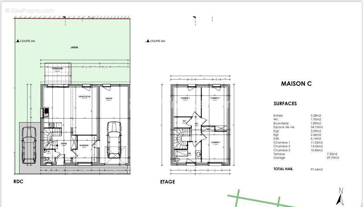
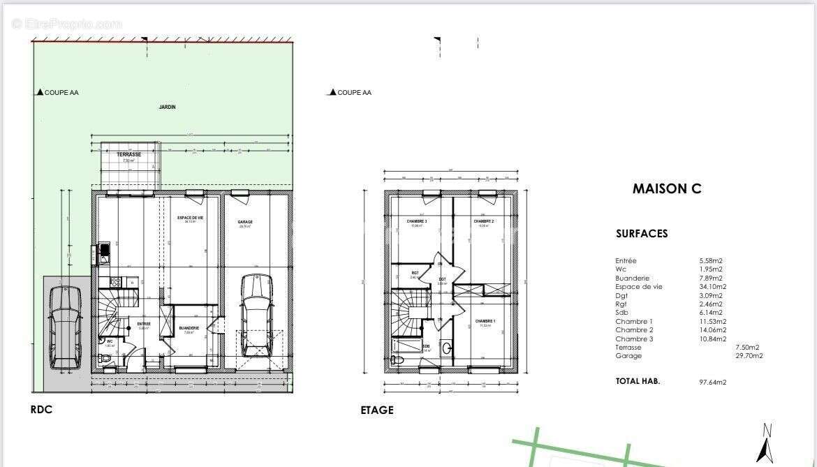
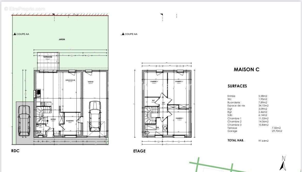
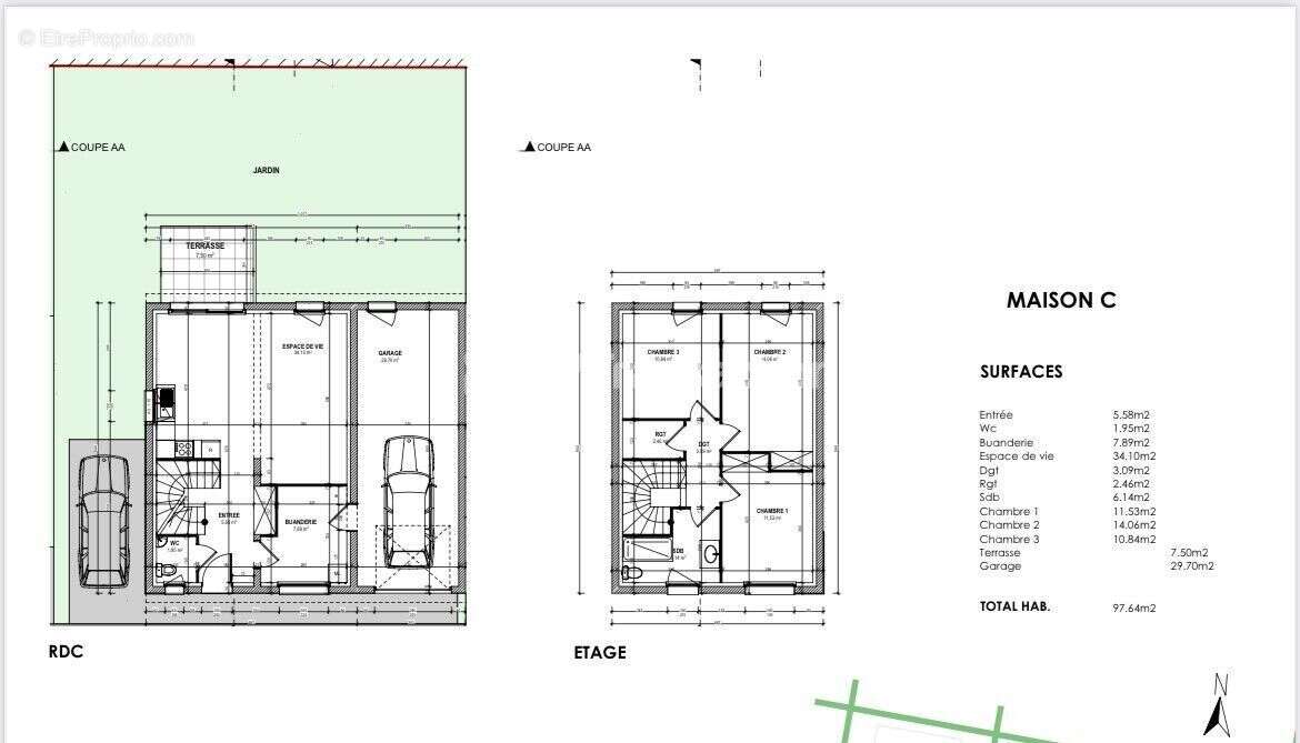
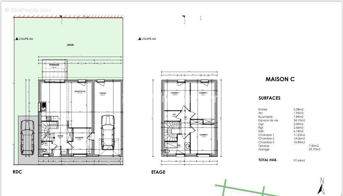
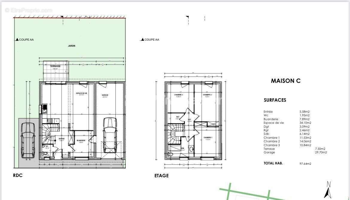
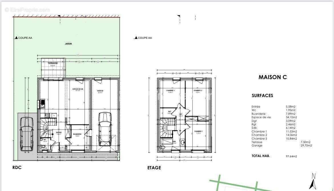
Maison 98m² à thionville

— Thionville 57100 —
452 000 €
98 m²
balcon/terrasse

Nos partenaires locaux
Thionville - Veymerange : en impasse, un nouveau lotissement de 8 lots dont 4 livrés ; reste pour acquisition 4 maisons en prestation clés en mains ou achat en clos - couvert.
Actuellement, Maisons C et D (gros-oeuvre, fenêtres, toiture, façade) en clos - couvert.

Changement possible de l'aménagement intérieur ou plan à suivre.
Voirie terminée, local poubelles à l'entrée du lotissement, clôture prévue.

Prix de vente promoteur :

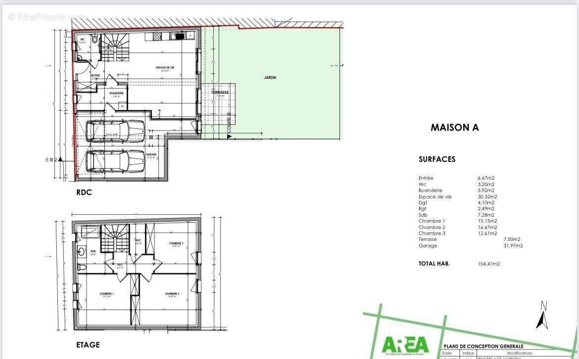
Maison C (97,64 m2) clos - couvert (façade claire) : 294 000 € ou clés en mains : 452 000 € et terrain : 242,68 m2
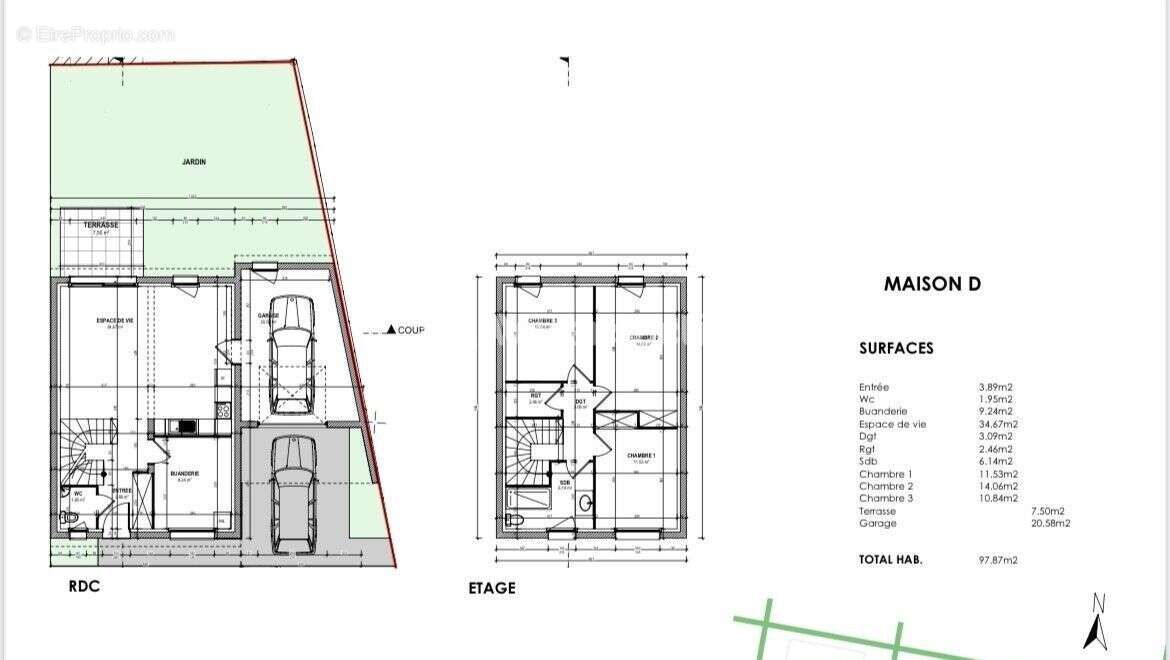
Maison D (97,87 m2) clos - couvert (façade grise) : 291 000 € ou clés en mains : 448 000 € et terrain : 194,47 m2
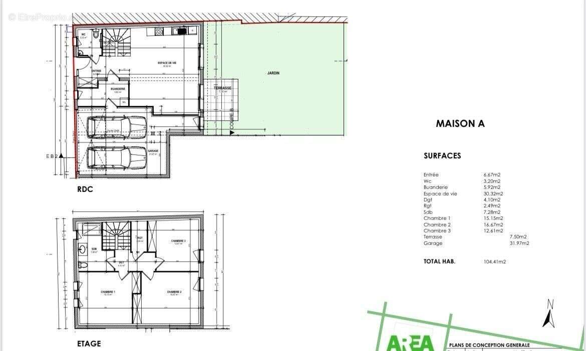
Maison A (103,94 m2) clos - couvert (photo gros-oeuvre) : 285 000 € ou clés en mains : 439 000 € et terrain : 175,53 m2
Maison E (137,61 m2) clos - couvert (photo gros-oeuvre toit plat) : 425 000 € ou clés en mains : 654 000 € et terrain : 396,99 m2

+ Honoraires de négociation : 12 000 € TTC






« Les informations sur les risques auxquels ce bien est exposé sont disponibles sur le site Géorisques : www.georisques.gouv.fr »

AV TRANSACTION
Jean-Christophe HENRION
[Coordonnées masquées]
Votre agent commercial et conseiller(e) spécialiste en immobilier
RSAC N° 511 330 110 (EI)
Ville du greffe : Val De Briey

Plus d'informations sur notre site av-transaction immo - Référence: 7501819816
Le réseau AV Transaction recrute des agents commerciaux dans toute la France. Percevez 100% de vos commissions. avtransaction-recrutement fr.

Honoraires 0.00 % TTC inclus charge acquéreur (452 000,00 € hors honoraires).

Voir plus

Référence: 7501819816
Honoraires à la charge de l'acquéreur.
Barème des honoraires

Prêt immobilier

Vous souhaitez connaître votre capacité d’emprunt et trouver le meilleur crédit immobilier ?
Réaliser une simulation gratuite

Maison à THIONVILLE
Maison à THIONVILLE
Maison à THIONVILLE
Maison à THIONVILLE
Maison à THIONVILLE
Maison à THIONVILLE
Maison à THIONVILLE
Maison à THIONVILLE
Maison à THIONVILLE
Maison à THIONVILLE
Maison à THIONVILLE
Maison à THIONVILLE
Maison à THIONVILLE
Maison à THIONVILLE
Maison à THIONVILLE
Maison à THIONVILLE
Maison à THIONVILLE
Maison à THIONVILLE
Maison à THIONVILLE
Maison à THIONVILLE
Maison à THIONVILLE
Maison à THIONVILLE
Maison à THIONVILLE
Maison à THIONVILLE
Maison à THIONVILLE
Maison à THIONVILLE
Maison à THIONVILLE
Maison à THIONVILLE
Maison à THIONVILLE
Maison à THIONVILLE
Maison à THIONVILLE
Maison à THIONVILLE
Maison à THIONVILLE
Maison à THIONVILLE
Maison à THIONVILLE
Maison à THIONVILLE
Maison à THIONVILLE
Maison à THIONVILLE
Maison à THIONVILLE
Maison à THIONVILLE
Maison à THIONVILLE
Maison à THIONVILLE
Maison à THIONVILLE
Maison à THIONVILLE
Maison à THIONVILLE
Maison à THIONVILLE
Maison à THIONVILLE
Maison à THIONVILLE
Maison à THIONVILLE
Maison à THIONVILLE
Maison à THIONVILLE
Maison à THIONVILLE
Maison à THIONVILLE
Maison à THIONVILLE
Maison à THIONVILLE
Maison à THIONVILLE
Maison à THIONVILLE
Maison à THIONVILLE
Maison à THIONVILLE
Maison à THIONVILLE
Ce site est protégé par reCAPTCHA la Politique de confidentialité et les Conditions d’utilisation de Google s’appliquent.
Obtenir un prêt immobilier au meilleur taux ?

En poursuivant votre navigation sans modifier vos paramètres, vous acceptez l'utilisation de cookies susceptibles de réaliser des statistiques de visite. Cliquez ici pour plus d'informations