Bénéficiez des services de nos partenaires locaux soigneusement sélectionnés
pour vous accompagner dans votre parcours d'achat immobilier

Maison 137m² à thionville

— Thionville 57100 —
654 000 €
137 m²
balcon/terrasse

Nos partenaires locaux
Thionville - Veymerange : en impasse, un nouveau lotissement de 8 lots dont 4 livrés ; reste à l'acquisition 4 maisons en prestation clos - couvert ou clés en mains.
Une maison individuelle (photo gros-oeuvre toit plat), double garage, composée de 3 ou 4 chambres et pièces à vivre, parkings, terrasse et jardin. Terrain : 396,99 m2
Possibilité d'aménagement intérieur selon vos besoins ou plan à suivre.
Prix de vente clos - couvert (gros-oeuvre, toiture, fenêtres, façade) : 425 000 € et/ou clés en mains : 654 000 €

+ 3 lots à vendre prix promoteur :
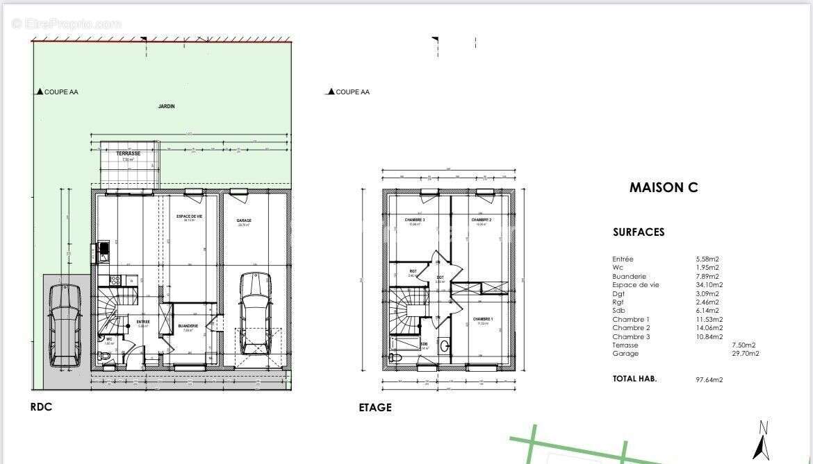
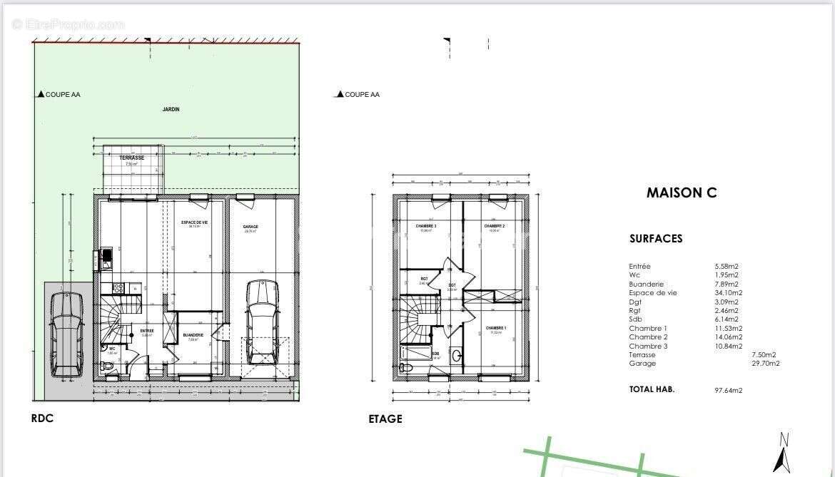
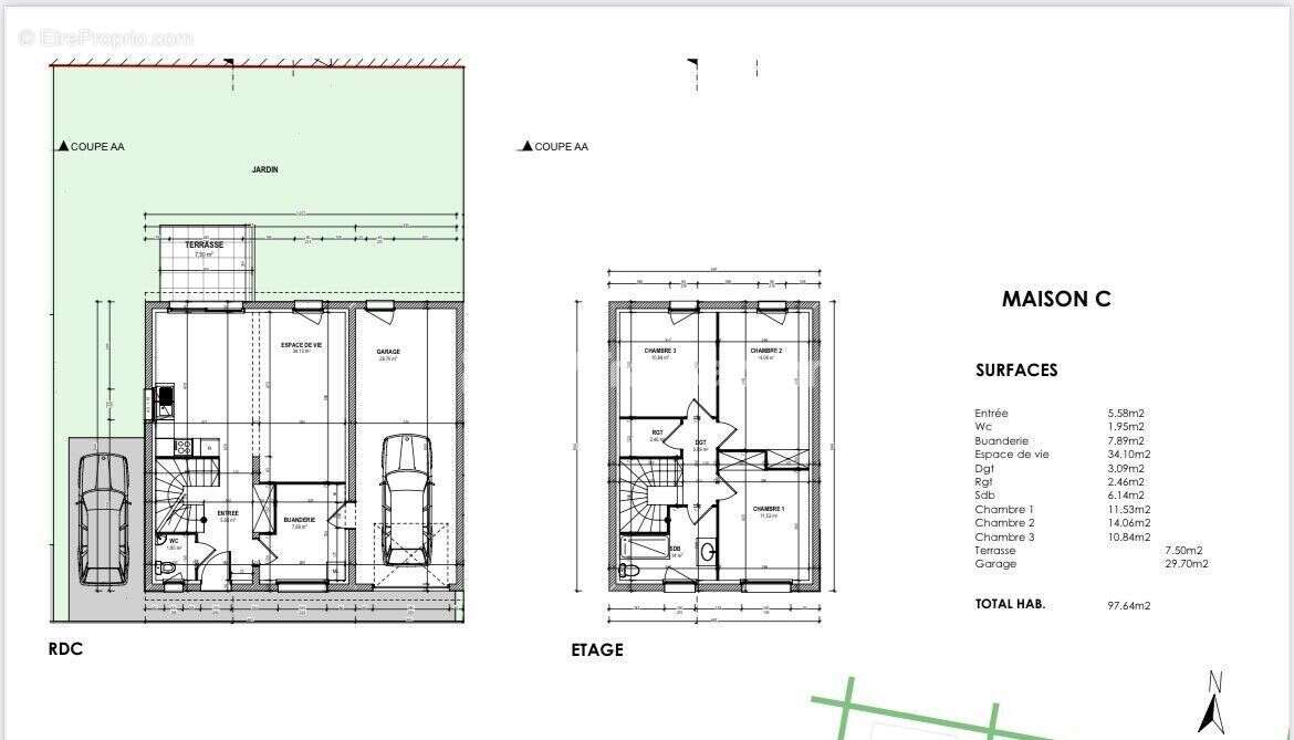
Maison C (97,64 m2) clos - couvert (photo façade claire) : 294 000 € ou clés en mains : 452 000 € et terrain : 242,68 m2
Maison D (97,87 m2) clos - couvert (photo façade grise) : 291 000 € ou clés en mains : 448 000 € et terrain : 194,47 m2
Maison A (103,94 m2) clos - couvert (photo gros-oeuvre) : 285 000 € ou clés en mains : 439 000 € et terrain : 175,53 m2

+ Honoraires de négociation charge acquéreur : 12 000 € TTC

« Les informations sur les risques auxquels ce bien est exposé sont disponibles sur le site Géorisques : www.georisques.gouv.fr »

AV TRANSACTION
Jean-Christophe HENRION
[Coordonnées masquées]
Votre agent commercial et conseiller(e) spécialiste en immobilier
RSAC N° 511 330 110 (EI)
Ville du greffe : Val De Briey

Plus d'informations sur notre site av-transaction immo - Référence: 7501819817
Le réseau AV Transaction recrute des agents commerciaux dans toute la France. Percevez 100% de vos commissions. avtransaction-recrutement fr.

Honoraires 0.00 % TTC inclus charge acquéreur (654 000,00 € hors honoraires).

Voir plus

Référence: 7501819817
Honoraires à la charge de l'acquéreur.
Barème des honoraires

Prêt immobilier

Vous souhaitez connaître votre capacité d’emprunt et trouver le meilleur crédit immobilier ?
Réaliser une simulation gratuite

Maison à THIONVILLE
Maison à THIONVILLE
Maison à THIONVILLE
Maison à THIONVILLE
Maison à THIONVILLE
Maison à THIONVILLE
Maison à THIONVILLE
Maison à THIONVILLE
Maison à THIONVILLE
Maison à THIONVILLE
Maison à THIONVILLE
Maison à THIONVILLE
Maison à THIONVILLE
Maison à THIONVILLE
Maison à THIONVILLE
Maison à THIONVILLE
Maison à THIONVILLE
Maison à THIONVILLE
Maison à THIONVILLE
Maison à THIONVILLE
Maison à THIONVILLE
Maison à THIONVILLE
Maison à THIONVILLE
Maison à THIONVILLE
Maison à THIONVILLE
Maison à THIONVILLE
Maison à THIONVILLE
Maison à THIONVILLE
Maison à THIONVILLE
Maison à THIONVILLE
Maison à THIONVILLE
Maison à THIONVILLE
Maison à THIONVILLE
Maison à THIONVILLE
Maison à THIONVILLE
Ce site est protégé par reCAPTCHA la Politique de confidentialité et les Conditions d’utilisation de Google s’appliquent.
Obtenir un prêt immobilier au meilleur taux ?

En poursuivant votre navigation sans modifier vos paramètres, vous acceptez l'utilisation de cookies susceptibles de réaliser des statistiques de visite. Cliquez ici pour plus d'informations