Bénéficiez des services de nos partenaires locaux soigneusement sélectionnés
pour vous accompagner dans votre parcours d'achat immobilier

Maison 243m² à orgeval

— Orgeval 78630 —
750 000 €
243 m² / 1 800 m²
9 pièces
parkingbalcon/terrassejardin

Nos partenaires locaux
Iad France - Clément Dulac vous propose : Propriété d'exception à Orgeval - Maison 10 pièces - Terrain arboré de 1800 m²

TRAVAUX À PRÉVOIR !

Issue d'une division parcellaire, laissez-vous séduire par cette magnifique maison de caractère située à Orgeval, offrant un cadre de vie paisible et privilégié. Construite en 1980, cette demeure spacieuse de 243 m² habitables (350 m² au sol) s'étend sur un terrain verdoyant de 1800 m² piscinable, offrant intimité et tranquillité à ses habitants.

Au rez-de-chaussée, vous découvrirez un vaste séjour lumineux triplement exposé avec sa cheminée et une cuisine semi-ouverte, un WC d'invités. Côté nuit, un bureau et une grande suite parentale avec son dressing et sa salle de bain complètent ce niveau.

À l'étage, vous trouverez une première chambre avec sa pièce d'eau, une salle de bain, un WC et trois autres chambres de bonne taille.

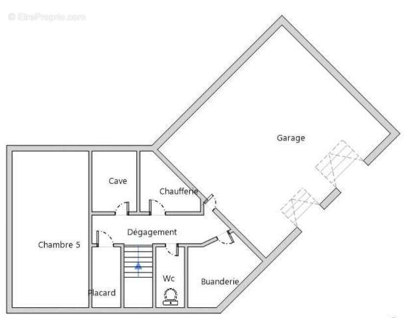
Un sous-sol total, dont la moitié est déjà habitable, permet la création d'une salle de jeu, d'un home cinéma, etc.
Garage pour 3 véhicules et plusieurs places de stationnement sur la propriété.

L'extérieur de la propriété est tout aussi remarquable, avec un jardin arboré et une terrasse exposée sud offrant un espace idéal pour se détendre en plein air.

Cette demeure nécessite des travaux de rénovation pour être sublimée et retrouver tout son éclat d'antan. Elle offre un potentiel incroyable pour être transformée en un véritable havre de paix dans un environnement calme et verdoyant.

DPE (F).

Ne manquez pas l'opportunité de devenir propriétaire de cette résidence d'exception à Orgeval. Contactez-nous dès aujourd'hui pour organiser une visite et découvrir tous les atouts de ce bien unique.

Honoraires d'agence à la charge du vendeur.
Information d'affichage énergétique sur ce bien : classe ENERGIE F indice 246 et classe CLIMAT F indice 77. Les informations sur les risques auxquels ce bien est exposé, y compris l'obligation légale de débroussaillement, sont disponibles sur le site Géorisques : http://www.georisques.gouv.fr.
La présente annonce immobilière a été rédigée sous la responsabilité éditoriale de M Clément Dulac mandataire indépendant en immobilier (sans détention de fonds), agent commercial de la SAS I@D France immatriculé au RSAC de VERSAILLES sous le numéro 832300289, titulaire de la carte de démarchage immobilier pour le compte de la société I@D France SAS.
Informations LOI ALUR :
Honoraires charge vendeur. (gedeon_6727_32079733)
Voir plus

Référence: 1873968
Honoraires à la charge du vendeur.
DPE
A
B
C
D
E
F
G
GES
A
B
C
D
E
F
G

Prêt immobilier

Vous souhaitez connaître votre capacité d’emprunt et trouver le meilleur crédit immobilier ?
Réaliser une simulation gratuite

Photo 1 - Maison à ORGEVAL
Photo 1
Photo 2 - Maison à ORGEVAL
Photo 2
Photo 3 - Maison à ORGEVAL
Photo 3
Photo 4 - Maison à ORGEVAL
Photo 4
Photo 5 - Maison à ORGEVAL
Photo 5
Photo 6 - Maison à ORGEVAL
Photo 6
Photo 7 - Maison à ORGEVAL
Photo 7
Photo 8 - Maison à ORGEVAL
Photo 8
Photo 9 - Maison à ORGEVAL
Photo 9
Ce site est protégé par reCAPTCHA la Politique de confidentialité et les Conditions d’utilisation de Google s’appliquent.
Obtenir un prêt immobilier au meilleur taux ?

En poursuivant votre navigation sans modifier vos paramètres, vous acceptez l'utilisation de cookies susceptibles de réaliser des statistiques de visite. Cliquez ici pour plus d'informations