Bénéficiez des services de nos partenaires locaux soigneusement sélectionnés
pour vous accompagner dans votre parcours d'achat immobilier

Maison 100m² à chelles

— Chelles 77500 —
547 000 €
100 m² / 287 m²
5 pièces
balcon/terrassejardin

Nos partenaires locaux
Iad France - Isabel Flamant vous propose : À vendre : Maison à Chelles - Quartier FOCH

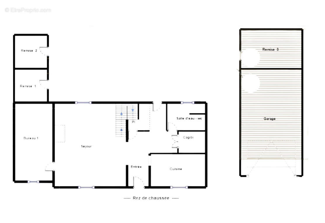
Découvrez cette charmante maison de 100 m² habitables (117 m² au sol), située dans un quartier pavillonnaire et à moins de 10 minutes à pied de la gare (RER E et le Train P), vous serez à 15 minutes en train de Paris et à proximité de toutes les commodités du centre-ville de Chelles.

En façade, vous serez séduit par la pierre de taille. L'entrée vous mène à un séjour lumineux avec sa belle cheminée en pierre de taille.
Le rez-de-chaussée comprend également une grande cuisine, un bureau, une salle d'eau avec WC et des placards pour un rangement optimal et accès direct au jardin.

À l'étage, vous trouverez trois belles chambres, dont une avec baignoire et douche, ainsi qu'un WC séparé.
À l'extérieur, la maison dispose d'un garage, d'un établi et d'une remise, le tout sur une parcelle de 287 m².

Cette maison n'attend plus que vous pour y poser vos valises !

Pour plus d'informations ou pour organiser une visite, n'hésitez pas à me contacter.


Honoraires d'agence à la charge du vendeur.
Information d'affichage énergétique sur ce bien : classe ENERGIE D indice 210 et classe CLIMAT D indice 36. Les informations sur les risques auxquels ce bien est exposé, y compris l'obligation légale de débroussaillement, sont disponibles sur le site Géorisques : http://www.georisques.gouv.fr.
La présente annonce immobilière a été rédigée sous la responsabilité éditoriale de Mme Isabel Flamant mandataire indépendant en immobilier (sans détention de fonds), agent commercial de la SAS I@D France immatriculé au RSAC de MEAUX sous le numéro 791645047, titulaire de la carte de démarchage immobilier pour le compte de la société I@D France SAS.
Informations LOI ALUR :
Honoraires charge vendeur. (gedeon_6727_32084379)
Voir plus

Référence: 1875516
Honoraires à la charge du vendeur.
DPE
A
B
C
D
E
F
G
GES
A
B
C
D
E
F
G

Prêt immobilier

Vous souhaitez connaître votre capacité d’emprunt et trouver le meilleur crédit immobilier ?
Réaliser une simulation gratuite

Photo 1 - Maison à CHELLES
Photo 1
Photo 2 - Maison à CHELLES
Photo 2
Photo 3 - Maison à CHELLES
Photo 3
Photo 4 - Maison à CHELLES
Photo 4
Photo 5 - Maison à CHELLES
Photo 5
Photo 6 - Maison à CHELLES
Photo 6
Photo 7 - Maison à CHELLES
Photo 7
Photo 8 - Maison à CHELLES
Photo 8
Photo 9 - Maison à CHELLES
Photo 9
Ce site est protégé par reCAPTCHA la Politique de confidentialité et les Conditions d’utilisation de Google s’appliquent.
Obtenir un prêt immobilier au meilleur taux ?

En poursuivant votre navigation sans modifier vos paramètres, vous acceptez l'utilisation de cookies susceptibles de réaliser des statistiques de visite. Cliquez ici pour plus d'informations