Bénéficiez des services de nos partenaires locaux soigneusement sélectionnés
pour vous accompagner dans votre parcours d'achat immobilier

Rambouillet 18 mn. maison 158 m² 4 chambres au calme absolu sur 902 m²

— Rambouillet 78120 —
448 000 €
158 m² / 902 m²
6 pièces
jardin

Nos partenaires locaux
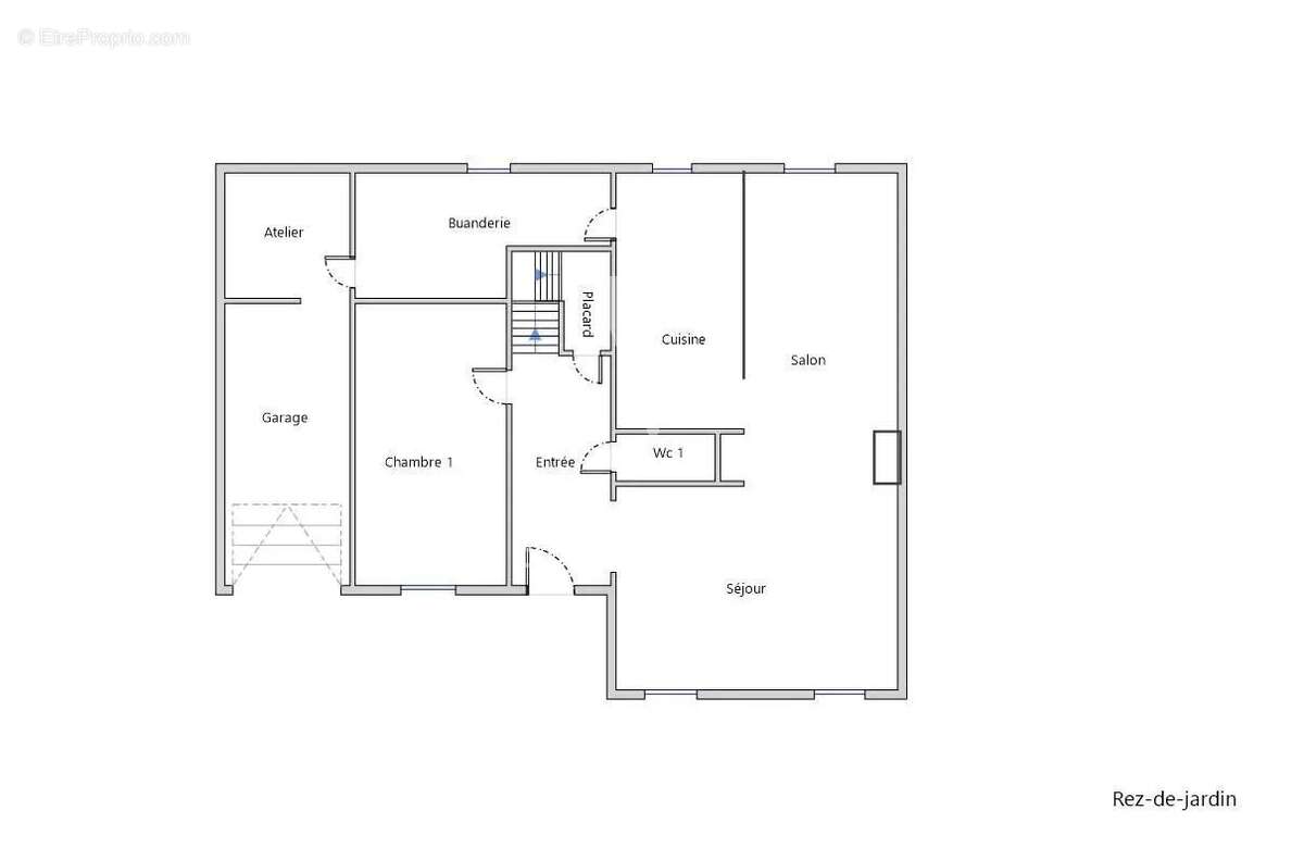
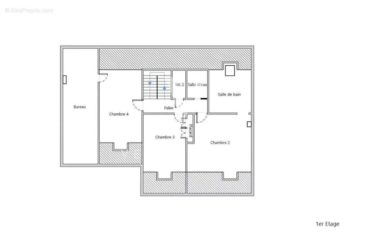
Situé dans un village avec commerces, écoles et transports, dans une impasse au calme absolu, maison familiale de 158 m² avec 4 chambres construite en 1978 sur terrain arboré de 902 m². La maison est en parfait état et comprends au rez-de-chaussée : une entrée avec placard et toilettes avec lave-mains, une grande pièce à vivre de près de 53 m² comprenant un double séjour traversant avec cheminée à insert et climatisation réversible, donnant sur une cuisine ouverte avec bar, une arrière cuisine/cellier avec espace chaufferie/buanderie avec fenêtre et accès au garage et atelier ainsi qu'une chambre actuellement bureau de 15,41 m². L'escalier en bois mène au premier étage desservant trois chambres de 15,07 m², 13,71 m² et 13,86 m² dont une suite parentale avec climatisation réversible, et une grande salle de bains avec fenêtre velux attenante à rafraichir, une chambre avec grand dressing aménagé au dessus du garage et la troisième chambre avec placard, une salle d'eau avec douche italienne rénovée et des toilettes séparées complètent l'étage. Les extérieurs : Une terrasse carrelée de 28 m², un abris de jardin. Vue dégagée et environnement verdoyant. Centre-ville à pied. Ecoles, commerces et transports à proximité. Bus 10 pour gares de Rambouillet Ligne N (25 mn), Dourdan RER C (10mn) et gare routière du Plessis Mornay à 5 mn en voiture ou en bus pour Massy Palaiseau (RER B, TGV) en 21 mn. Accès autoroute A10 en 5 mn en voiture. Chauffage individuel gaz et climatisation réversible dans séjour et chambre parentale.
Voir plus

Référence: 86387873
Barème des honoraires
DPE
A
B
C
D
E
F
G
GES
A
B
C
D
E
F
G

Prêt immobilier

Vous souhaitez connaître votre capacité d’emprunt et trouver le meilleur crédit immobilier ?
Réaliser une simulation gratuite

Maison à RAMBOUILLET
Maison à RAMBOUILLET
Maison à RAMBOUILLET
Maison à RAMBOUILLET
Maison à RAMBOUILLET
Maison à RAMBOUILLET
Maison à RAMBOUILLET
Maison à RAMBOUILLET
Maison à RAMBOUILLET
Maison à RAMBOUILLET
Maison à RAMBOUILLET
Maison à RAMBOUILLET
Maison à RAMBOUILLET
Maison à RAMBOUILLET
Maison à RAMBOUILLET
Maison à RAMBOUILLET
Maison à RAMBOUILLET
Maison à RAMBOUILLET
Maison à RAMBOUILLET
Maison à RAMBOUILLET
Maison à RAMBOUILLET
Maison à RAMBOUILLET
Maison à RAMBOUILLET
Ce site est protégé par reCAPTCHA la Politique de confidentialité et les Conditions d’utilisation de Google s’appliquent.
Obtenir un prêt immobilier au meilleur taux ?

En poursuivant votre navigation sans modifier vos paramètres, vous acceptez l'utilisation de cookies susceptibles de réaliser des statistiques de visite. Cliquez ici pour plus d'informations