Bénéficiez des services de nos partenaires locaux soigneusement sélectionnés
pour vous accompagner dans votre parcours d'achat immobilier

Local commercial + un appartement

— Mourmelon-Le-Grand 51400 —
167 500 €
475 m²
11 pièces
parking

Nos partenaires locaux
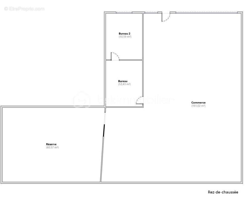
Sur la commercial de Mourmelon le Grand, venez découvrir ce local commercial à fort potentiel avec une vitrine donnant sur un axe passant.

Le local est totalement vidé et non loué, vous offrant ainsi une multitude de possibilités d'aménagement, ce bien comprend 161 m² environ de surface de vente, deux bureaux, une réserve, un sas, un WC, un garage, un jardin, au premier étage vous bénéficierez d'un appartement avec terrasse comprenant une salle d'eau, un WC séparé, trois chambres, un dressing et une pièce de vie ouverte sur une cuisine équipée et un grenier.

la surface globale de ce bien est d'environ 475m² de surface en loi carrez sur une parcelle totale de 638m²

Envie de découvrir ce bien à fort potentiel, je vous invite à me contacter dés maintenant afin d'organiser une visite.

Cette annonce référence 298502 vous est présentée par votre agent commercial BSK Immobilier GWENAELLE DEFRANCE (EI) immatriculé au RSAC de CHALONS-EN-CHAMPAGNE (51000) sous le numéro 8913[Coordonnées masquées].

Prix du bien : 167 500,00 €
Les honoraires d'agence sont à la charge du vendeur.

A propos de la copropriété :
Pas de procédure en cours.
Nombre de lots : 3
Charges prévisionnelles annuelles : 0,00 €

DPE vierge.

Les informations sur les risques auxquels ce bien est exposé sont disponibles sur le site Géorisques : www.georisques.gouv.fr
Voir plus

Référence: 298502
Bien en copropriété. Nombre de lots : 3.
Honoraires à la charge du vendeur.

Prêt immobilier

Vous souhaitez connaître votre capacité d’emprunt et trouver le meilleur crédit immobilier ?
Réaliser une simulation gratuite

Appartement à MOURMELON-LE-GRAND
Appartement à MOURMELON-LE-GRAND
Appartement à MOURMELON-LE-GRAND
Appartement à MOURMELON-LE-GRAND
Appartement à MOURMELON-LE-GRAND
Appartement à MOURMELON-LE-GRAND
Appartement à MOURMELON-LE-GRAND
Appartement à MOURMELON-LE-GRAND
Appartement à MOURMELON-LE-GRAND
Appartement à MOURMELON-LE-GRAND
Appartement à MOURMELON-LE-GRAND
Appartement à MOURMELON-LE-GRAND
Appartement à MOURMELON-LE-GRAND
Appartement à MOURMELON-LE-GRAND
Appartement à MOURMELON-LE-GRAND
Appartement à MOURMELON-LE-GRAND
Appartement à MOURMELON-LE-GRAND
Appartement à MOURMELON-LE-GRAND
Appartement à MOURMELON-LE-GRAND
Appartement à MOURMELON-LE-GRAND
Ce site est protégé par reCAPTCHA la Politique de confidentialité et les Conditions d’utilisation de Google s’appliquent.
Obtenir un prêt immobilier au meilleur taux ?

En poursuivant votre navigation sans modifier vos paramètres, vous acceptez l'utilisation de cookies susceptibles de réaliser des statistiques de visite. Cliquez ici pour plus d'informations