Bénéficiez des services de nos partenaires locaux soigneusement sélectionnés
pour vous accompagner dans votre parcours d'achat immobilier

Montmerle sur saône ( 01090) maison 93 m2 terrain 440 m2

— Montmerle-Sur-Saone 01090 —
330 000 €
93 m² / 440 m²
4 pièces
parkingjardin

Nos partenaires locaux
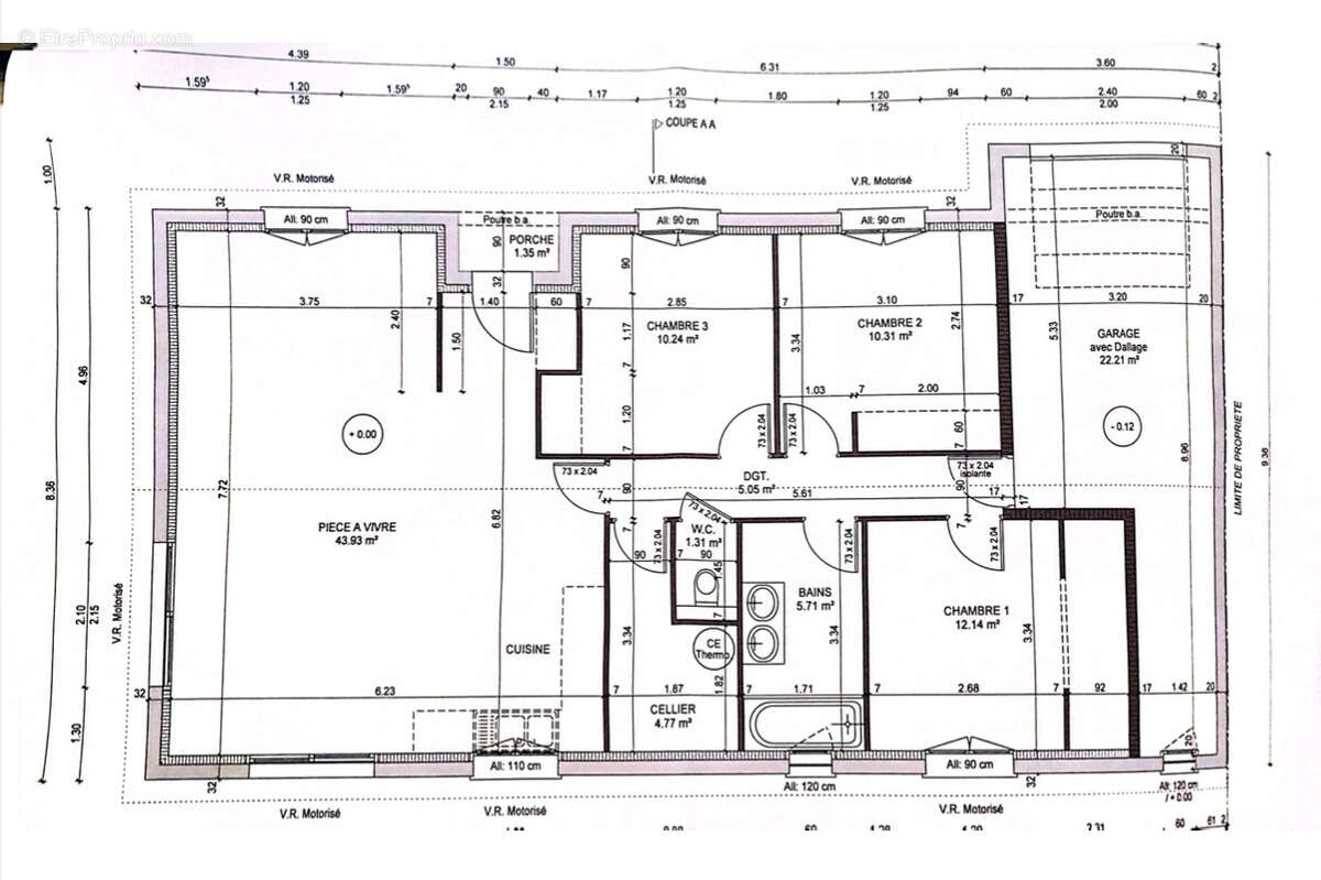
Montmerle sur Saône,( 01090) Ravissante maison de plain pied de 2019 en parfait état, édifiée sur une parcelle de 440 m2 avec garage, proche toutes commodités, commerces, écoles, transports, cabient médical, autoroute A6 à 10 mn, vers le sud Lyon, vers le nord Macon Paris.
 
Jolie pièce à vivre lumineuse de 44 M2, cuisine ouverte & double séjour donnant sur le jardin clos très bien orienté.
Bel agencement de 3 chambres, une salle de bain, une buanderie, un cellier & wc.
 
L'ensemble est édifié sur une parcelle de 440 M2.
Un garage fermé complète ce bien. ( porte motorisée)
 
Les points forts:
Maison en parfait état construite en 2019, ( sous garantie decennale)
Belles finitions, ouvrants de qualité, grandes baies vitrées, volets roulants électriques, climatisation réversible.

Idéalement située, proche toutes commodités, transports, écoles.
Montmerle sur Saône, le bien vivre à 2 pas des agglomérations.
 
Pas de travaux à prévoir
 
Prix : 330 000 € honoraires inclus à la charge du vendeur.
Pour une visite et toutes informations, contactez David BENOIT agent Bureau Sully o6 74 59 2o 76
Les informations sur les risques auxquels ce bien est exposé sont disponibles sur le site.
Géorisques: www.georisques.gouv.fr
Voir plus

Honoraires à la charge du vendeur.
Barème des honoraires
DPE
A
B
C
D
E
F
G
GES
A
B
C
D
E
F
G

Prêt immobilier

Vous souhaitez connaître votre capacité d’emprunt et trouver le meilleur crédit immobilier ?
Réaliser une simulation gratuite

Maison à MONTMERLE-SUR-SAONE
Maison à MONTMERLE-SUR-SAONE
Maison à MONTMERLE-SUR-SAONE
Maison à MONTMERLE-SUR-SAONE
Maison à MONTMERLE-SUR-SAONE
Maison à MONTMERLE-SUR-SAONE
Maison à MONTMERLE-SUR-SAONE
Maison à MONTMERLE-SUR-SAONE
Maison à MONTMERLE-SUR-SAONE
Maison à MONTMERLE-SUR-SAONE
Maison à MONTMERLE-SUR-SAONE
Maison à MONTMERLE-SUR-SAONE
Ce site est protégé par reCAPTCHA la Politique de confidentialité et les Conditions d’utilisation de Google s’appliquent.
Obtenir un prêt immobilier au meilleur taux ?

En poursuivant votre navigation sans modifier vos paramètres, vous acceptez l'utilisation de cookies susceptibles de réaliser des statistiques de visite. Cliquez ici pour plus d'informations