Bénéficiez des services de nos partenaires locaux soigneusement sélectionnés
pour vous accompagner dans votre parcours d'achat immobilier

Maison 95m² à montbron

— Montbron 16220 —
190 000 €
95 m² / 1 966 m²
4 pièces
parkingbalcon/terrassejardin

Nos partenaires locaux
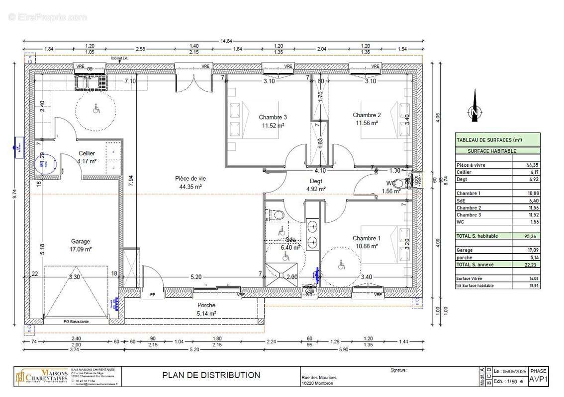
Maison 4 pièces 95 m² habitable + garage

A VENDRE Maison neuve 95m² habitable avec terrain d'environ 1 966m². Projet à construire, début du chantier 1er semestre 2026. Livraison Ete/Automne 2026.
-Possibilité de visiter une maison témoin (25km)-

Sur la commune de Montbron proche du bourg.

Maison de plain pieds avec une entrée donnant sur une belle pièce de vie avec cuisine ouverte de 44m² avec une baie vitrée exposition SUD, très lumineuse. 3 Chambres. Salle d'eau équipée d'une douche à l'italienne, d'un meuble 2 vasques et d'un sèche serviette. Un WC indépendant. Un Cellier et un garage d'environ 17m².
Maison adapté aux Personnes à Mobilité Réduite.
Possibilité de personnaliser la maison suivant avancement des travaux. (Cloisons intérieurs, carrelage, faïence, etc...)

Pompe à chaleur air/air avec des splits, chauffe-eau Thermodynamique, isolation RE2020/2025. Un très bon confort et des petites factures d'énergies.

L'ensemble sur un terrain d'environ 1966m², viabilisé et raccordé (eau, électricité, PTT) Assainissement individuel réalisé. Le tout compris dans le prix.

Système promotion immobilière : Maison livrée clé en main, le paiement s'effectue à la livraison de la maison.
Offre éligible au PTZ. (01/04/2025)
Exonération de taxe foncière pendant 2 ans.
Vous bénéficiez aussi des frais de notaire réduit à 3%.
Assurance décennale et dommage ouvrage comprise.
Pour plus d'informations nous contacter par mail ou par téléphone
Photos non contractuelles.

Classe énergie A, Classe climat A Montant estimé des dépenses annuelles d'énergie pour un usage standard : entre 450.00 € et 670.00 € sur les années 2021, 2022 et 2023 (abonnements compris). Les informations sur les risques auxquels ce bien est exposé sont disponibles sur le site Géorisques : georisques.gouv.fr.
Voir plus

Référence: VM329-MAISONSCHAR16
Honoraires à la charge de l'acquéreur.
DPE
A
B
C
D
E
F
G
GES
A
B
C
D
E
F
G

Prêt immobilier

Vous souhaitez connaître votre capacité d’emprunt et trouver le meilleur crédit immobilier ?
Réaliser une simulation gratuite

Maison à MONTBRON
Maison à MONTBRON
Maison à MONTBRON
Maison à MONTBRON
Ce site est protégé par reCAPTCHA la Politique de confidentialité et les Conditions d’utilisation de Google s’appliquent.
Obtenir un prêt immobilier au meilleur taux ?

En poursuivant votre navigation sans modifier vos paramètres, vous acceptez l'utilisation de cookies susceptibles de réaliser des statistiques de visite. Cliquez ici pour plus d'informations