Bénéficiez des services de nos partenaires locaux soigneusement sélectionnés
pour vous accompagner dans votre parcours d'achat immobilier

Maison de village de 163m2 sur les hauteurs de bonne

— Bonne 74380 —
470 000 €
163 m² / 506 m²
4 pièces
parkingbalcon/terrassejardin

Nos partenaires locaux
EXCLUSIVITÉ : Dans le secteur historique et privilégié du Haut de Bonne , découvrez cette maison au charme savoyard , bénéficiant d'une rénovation complète sur la partie extérieure : façade, huisseries, toiture et isolation ont été entièrement refaites, offrant un cadre de vie sain et durable.
Édifiée sur une parcelle de 506 m2 exposée plein sud , elle profite d'un joli jardin et d'une vue dégagée sur les collines environnantes , dans un environnement calme et recherché.
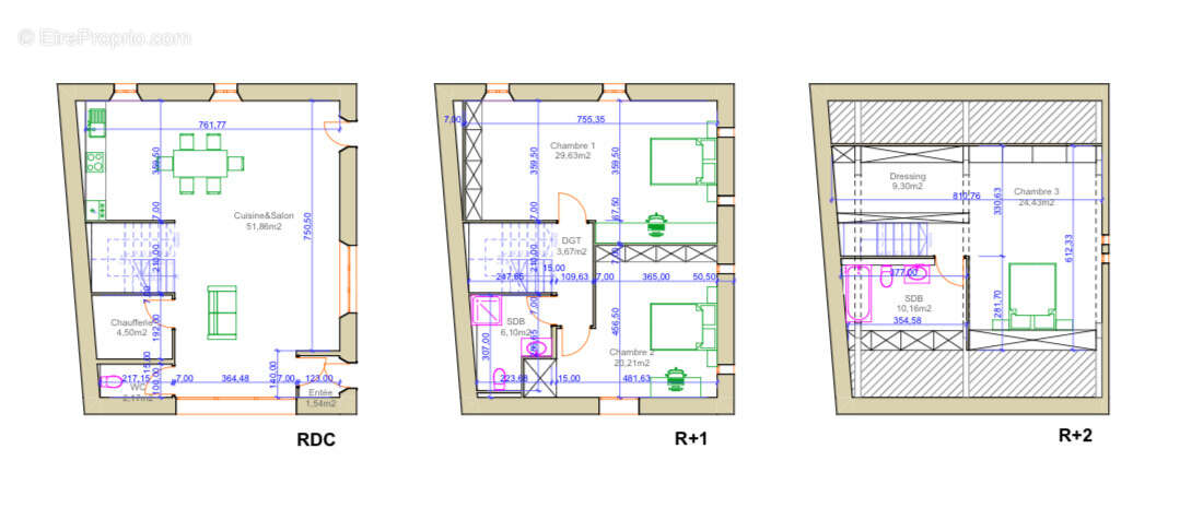
D'une surface d'environ 160 m2 répartis sur trois niveaux , la maison se compose comme suit :
• Rez-de-chaussée : espace de vie principal avec salon lumineux et cuisine ouverte donnant accès direct au jardin, ainsi qu'un coin chaufferie/local technique et un WC indépendant .
• Premier étage : deux chambres spacieuses et une salle de bain .
• Dernier étage : combles aménagés offrant une troisième chambre avec salle de bain et WC privatifs .
La maison a été configurée suivant les plans visibles sur les photos jointes , offrant un aménagement fonctionnel et cohérent sur l'ensemble des niveaux.
À noter : certains travaux intérieurs restent à terminer , la maison est donc vendue dans l'état actuel .
Une vente clé en main avec les travaux achevés peut également être envisagée selon le projet de l'acquéreur.

• Places de stationnement privatives ,
• Aucun sous-sol ,
• Proximité immédiate du centre de Bonne , des écoles et des commerces .
Une belle opportunité d'acquérir une maison de caractère, rénovée extérieurement, au cœur d'un cadre privilégié et verdoyant. Vous pouvez contacter Jean-Marie Dunand pour organiser un rendez-vous de visite au [Coordonnées masquées]
Voir plus

Barème des honoraires

Prêt immobilier

Vous souhaitez connaître votre capacité d’emprunt et trouver le meilleur crédit immobilier ?
Réaliser une simulation gratuite

Maison à BONNE
Maison à BONNE
Maison à BONNE
Maison à BONNE
Maison à BONNE
Maison à BONNE
Ce site est protégé par reCAPTCHA la Politique de confidentialité et les Conditions d’utilisation de Google s’appliquent.
Obtenir un prêt immobilier au meilleur taux ?

En poursuivant votre navigation sans modifier vos paramètres, vous acceptez l'utilisation de cookies susceptibles de réaliser des statistiques de visite. Cliquez ici pour plus d'informations