Maison neuve

— Lezoux 63190 —
259 000 €
104 m² / 579 m²
4 pièces
parking

63190 LEZOUX - MAISON NEUVE - PLAIN PIED 3 CHAMBRES + GARAGE

Efficity, l'agence, qui estime votre bien en ligne vous propose cette maison neuve idéalement située à LEZOUX, commune qui dispose de toutes les commodités et à seulement 30 minutes de Clermont Ferrand.

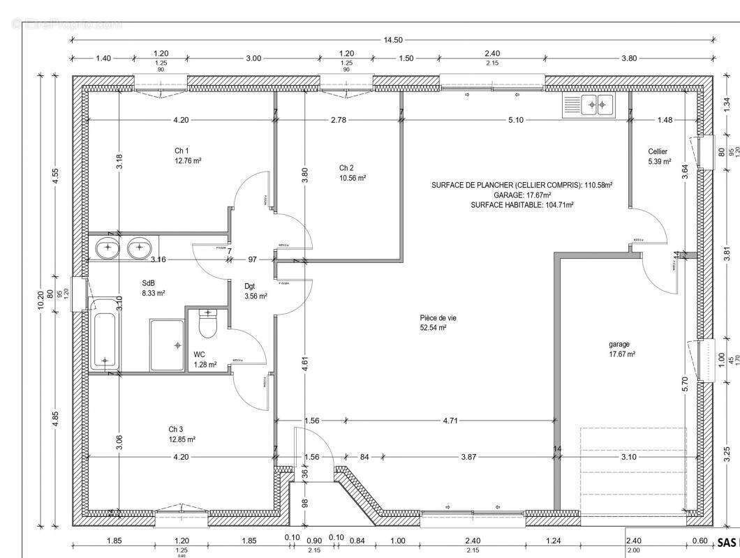
Édifiée sur une parcelle d'environ 579m²m², cette maison de plain pied offre une surface 104,71m² habitable + garage.

Elle se compose d'une entrée, d'une grande pièce de vie lumineuse avec cuisine ouverte sur le séjour, de trois chambres, d'une salle de bain avec douche et baignoire, d'un WC séparé et d'un cellier. Garage attenant.
Maison entièrement terminée à l'intérieur hors mobilier (cuisine et meuble de salle de bain) avec la possibilité de personnaliser les finitions carrelage, faïence, parquet (compris dans le prix annoncé). Possibilité de clôture extérieur en option.
Système de chauffage pompe à chaleur air/air dans la pièce de vie et radiateur à inertie dans les chambres.
FRAIS DE NOTAIRE RÉDUIT.
Livraison fin 2ème trimestre 2026.
Maison RE 2020 (le DPE sera réalisé lors de l'achèvement de la maison).

Pour plus d'information, contactez Damien PETIT par téléphone ou mail.
Les informations sur les risques auxquels ce bien est exposé sont disponibles sur le site Georisque : georisques. gouv. fr
Damien Petit - EI - est Agent Commercial mandataire en immobilier, immatriculé au Registre Spécial des Agents Commerciaux du Tribunal de Commerce de Clermont-Ferrand sous le n°818574972.
Siège social du mandant : effiCity, 48 avenue de Villiers - 75017 PARIS - Société par Actions Simplifiée, société au capital de 132 373,05 euros, immatriculée au RCS Paris 497 617 746 et titulaire de la Carte professionnelle CPI 75[Coordonnées masquées]02 025 - CCI Paris IDF - Caisse de Garantie : GALIAN Assurances 89 rue de la Boétie 75008 Paris
Voir plus

Référence: 197955
Honoraires à la charge du vendeur.
Barème des honoraires
DPE
A
B
C
D
E
F
G
GES
A
B
C
D
E
F
G

Prêt immobilier

Vous souhaitez connaître votre capacité d’emprunt et trouver le meilleur crédit immobilier ?
Réaliser une simulation gratuite

Maison à LEZOUX
Maison à LEZOUX
Maison à LEZOUX
Maison à LEZOUX
Maison à LEZOUX
Maison à LEZOUX
Maison à LEZOUX
Maison à LEZOUX
Ce site est protégé par reCAPTCHA la Politique de confidentialité et les Conditions d’utilisation de Google s’appliquent.
Obtenir un prêt immobilier au meilleur taux ?

En poursuivant votre navigation sans modifier vos paramètres, vous acceptez l'utilisation de cookies susceptibles de réaliser des statistiques de visite. Cliquez ici pour plus d'informations