Bénéficiez des services de nos partenaires locaux soigneusement sélectionnés
pour vous accompagner dans votre parcours d'achat immobilier

Nantes zola - procé appartement 4 pièces de 68 m² avec balcon.

— Nantes 44100 —
227 900 €
68 m²
4 pièces
balcon/terrasse

Nos partenaires locaux
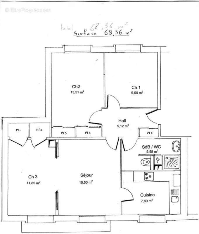
A Nantes, idéalement situé à mi-chemin entre la place Zola et le parc de Procé, cet appartement lumineux de 68 m² se trouve au 1er étage d'une petite copropriété bien entretenue de trois étages. Il se compose d'un séjour agréable ouvrant sur un petit balcon, d'une cuisine indépendante aménagée et équipée, ainsi que de trois belles chambres offrant de beaux volumes, des rangements et une belle luminosité. Ainsi qu'une salle d'eau et WC. Une cave et un séchoir complètent ce bien fonctionnel et bien agencé. Un emplacement recherché, entre vie de quartier dynamique et calme des espaces verts, à proximité immédiate des commerces, écoles et transports. Notre avis : Un bien rare sur le secteur Zola / Procé ! Contactez nous dès maintenant pour organiser une visite ! Les informations sur les risques auxquels ce bien est exposé sont disponibles sur le site Géorisques : www. georisques. gouv. fr L'ADRESSE ZOLA by COUDRAY LORRAINE - c'est 4 métiers : Gestion locative, Location, Syndic de Copropriété, Vente - Retrouvez nous sur www.coudraylorraine.fr ou sur www.ladresse-zola.com. (6.00 % honoraires TTC à la charge de l'acquéreur.) Copropriété de 56 lots - dont 14 lots habitation. (Pas de procédure en cours). Charges annuelles : 1010 euros.
Voir plus

Référence: 755
Bien en copropriété. Nombre de lots : 56. Charges de copropriété : 1010 €.
Honoraires d'agence de 6% à la charge de l'acquéreur
Barème des honoraires
DPE
A
B
C
D
E
F
G
GES
A
B
C
D
E
F
G

Prêt immobilier

Vous souhaitez connaître votre capacité d’emprunt et trouver le meilleur crédit immobilier ?
Réaliser une simulation gratuite

Appartement à NANTES
Appartement à NANTES
Appartement à NANTES
Appartement à NANTES
Appartement à NANTES
Appartement à NANTES
Appartement à NANTES
Appartement à NANTES
Appartement à NANTES
Appartement à NANTES
Ce site est protégé par reCAPTCHA la Politique de confidentialité et les Conditions d’utilisation de Google s’appliquent.
Obtenir un prêt immobilier au meilleur taux ?

En poursuivant votre navigation sans modifier vos paramètres, vous acceptez l'utilisation de cookies susceptibles de réaliser des statistiques de visite. Cliquez ici pour plus d'informations