Bénéficiez des services de nos partenaires locaux soigneusement sélectionnés
pour vous accompagner dans votre parcours d'achat immobilier

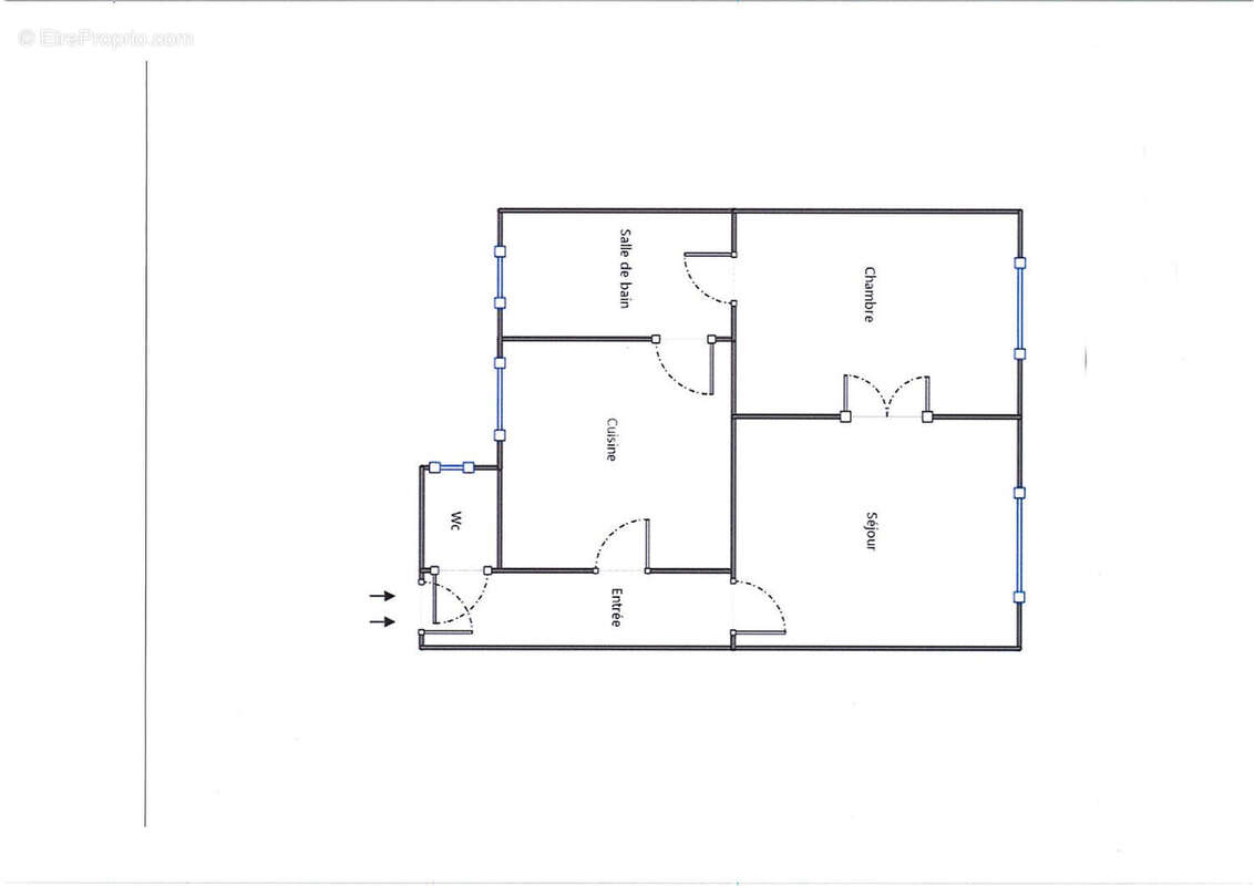
Investissement locatif -2 pièces 50 m2- rue des plantes

— Paris-14e 75014 —
415 000 €
50 m²
2 pièces
ascenseur

Nos partenaires locaux
Laissez-vous charmer par cet appartement de 50 m², situé au 2ème étage avec ascenseur d'un immeuble ancien, parfaitement entretenu. Dès l'entrée, un lumineux séjour vous accueille et offre un cadre de vie agréable au quotidien. Vous apprécierez également sa grande chambre, sa cuisine indépendante et conviviale, ainsi qu'une salle de bains et des WC séparés. Un agencement idéal et fonctionnel. Son emplacement constitue un véritable atout : en plein coeur d'un quartier prisé et dynamique, à proximité immédiate des commerces, du métro, du tramway et de toutes les commodités essentielles. Actuellement loué 997,11 euros hors charges (+140 euros de provisions), le bail se poursuit jusqu'en mars 2028. A son échéance, une rénovation révélera tout le potentiel de ce bien pour en faire une pépite unique alliant charme de l'ancien et confort moderne. Copropriété de 292 lots (Pas de procédure en cours). Charges annuelles : 2504 euros.
Voir plus

Référence: 5057
Bien en copropriété. Nombre de lots : 292. Charges de copropriété : 2504 €.
Honoraires à la charge du vendeur.
DPE
A
B
C
D
E
F
G
GES
A
B
C
D
E
F
G

Prêt immobilier

Vous souhaitez connaître votre capacité d’emprunt et trouver le meilleur crédit immobilier ?
Réaliser une simulation gratuite

Appartement à PARIS-14E
Appartement à PARIS-14E
Appartement à PARIS-14E
Appartement à PARIS-14E
Appartement à PARIS-14E
Appartement à PARIS-14E
Appartement à PARIS-14E
Appartement à PARIS-14E
Appartement à PARIS-14E
Ce site est protégé par reCAPTCHA la Politique de confidentialité et les Conditions d’utilisation de Google s’appliquent.
Obtenir un prêt immobilier au meilleur taux ?

En poursuivant votre navigation sans modifier vos paramètres, vous acceptez l'utilisation de cookies susceptibles de réaliser des statistiques de visite. Cliquez ici pour plus d'informations