Bénéficiez des services de nos partenaires locaux soigneusement sélectionnés
pour vous accompagner dans votre parcours d'achat immobilier

 idéale famille – maison 3 chambres, bureau, garage, jardin 

— Istres 13800 —
289 000 €
87 m²
4 pièces
parking

Nos partenaires locaux
Liberkeys vous présente, en exclusivité à Istres, cette maison mitoyenne pleine de charme d'environ 87 m², idéale pour une famille en quête de confort, de praticité et d'un cadre de vie agréable au sein d'un quartier résidentiel recherché.
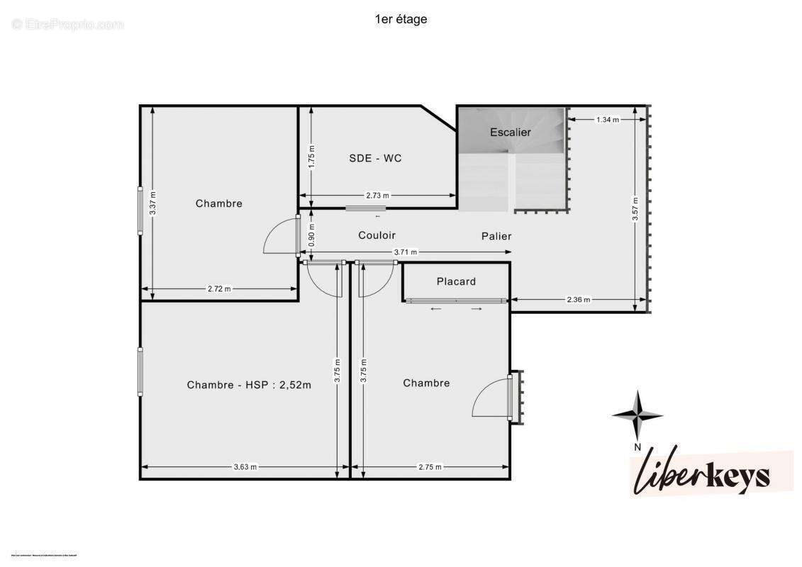
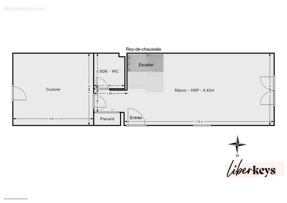
UN INTERIEUR FONCTIONNEL :
- Une pièce de vie lumineuse de 24 m²
- Une cuisine neuve et spacieuse de 13 m², entièrement équipée
- Trois chambres respectivement de 9, 10 et 11 m²
- Un espace polyvalent de 9 m², pouvant être aménagé en bureau, salle de jeux ou espace détente
- Une salle d'eau au rez-de-chaussée
- Une vaste salle de bains à l'étage
- L'entrée, pensée pour être fonctionnelle, dispose d'un espace de rangement intégré. - - Deux espaces techniques complètent l'ensemble pour davantage de praticité.
STATIONNEMENT ET CONFORT AU QUOTIDIEN
- 3 emplacements de stationnement
- 1 garage fermé de 15 m²
- Une pompe à chaleur, pour une efficacité énergétique optimale,
- Un adoucisseur d'eau, garantissant un bien-être au quotidien.
DES ESPACES EXTERIEURS MULTIPLES
Une terrasse principale exposée plein sud, idéale pour des moments conviviaux
Une deuxième terrasse attenante à la cuisine, parfaite pour les repas en extérieur
Un espace latéral polyvalent, pouvant accueillir un potager, une aire de jeux ou un aménagement selon vos envies
UNE LOCALISATION STRATEGIQUE
Emplacement privilégié, à proximité immédiate :
- Des établissements scolaires, notamment École élémentaire publique Gouin 1
- Des commerces et commodités du centre-ville
- De l'Étang de l'Olivier, accessible en quelques minutes, offrant un cadre prisé pour les activités de plein air
La Gare SNCF d'Istres se situe à seulement quelques mètres, un véritable atout pour les déplacements du quotidien.
Informations financières
Taxe foncière : 1 416 € par an
Visuels d'aménagement virtuel présentés à titre indicatif — le bien n'a fait l'objet d'aucune transformation réelle
Ce bien vous plaît ? Visitez-le virtuellement en 3D sur le site de Liberkeys ou contactez directement votre conseillère, Farzana Moula, agent commercial immatriculé au RSAC de Salon-de-Provence sous le numéro 790 648 562.
Référence annonce : DOM25630. Les honoraires sont à la charge du vendeur.
Voir plus

Référence: DOM25630
Honoraires à la charge du vendeur.
DPE
A
B
C
D
E
F
G
GES
A
B
C
D
E
F
G

Prêt immobilier

Vous souhaitez connaître votre capacité d’emprunt et trouver le meilleur crédit immobilier ?
Réaliser une simulation gratuite

Maison à ISTRES
Maison à ISTRES
Maison à ISTRES
Maison à ISTRES
Maison à ISTRES
Maison à ISTRES
Maison à ISTRES
Maison à ISTRES
Maison à ISTRES
Maison à ISTRES
Maison à ISTRES
Maison à ISTRES
Maison à ISTRES
Maison à ISTRES
Maison à ISTRES
Maison à ISTRES
Maison à ISTRES
Maison à ISTRES
Maison à ISTRES
Ce site est protégé par reCAPTCHA la Politique de confidentialité et les Conditions d’utilisation de Google s’appliquent.
Obtenir un prêt immobilier au meilleur taux ?

En poursuivant votre navigation sans modifier vos paramètres, vous acceptez l'utilisation de cookies susceptibles de réaliser des statistiques de visite. Cliquez ici pour plus d'informations