Bénéficiez des services de nos partenaires locaux soigneusement sélectionnés
pour vous accompagner dans votre parcours d'achat immobilier

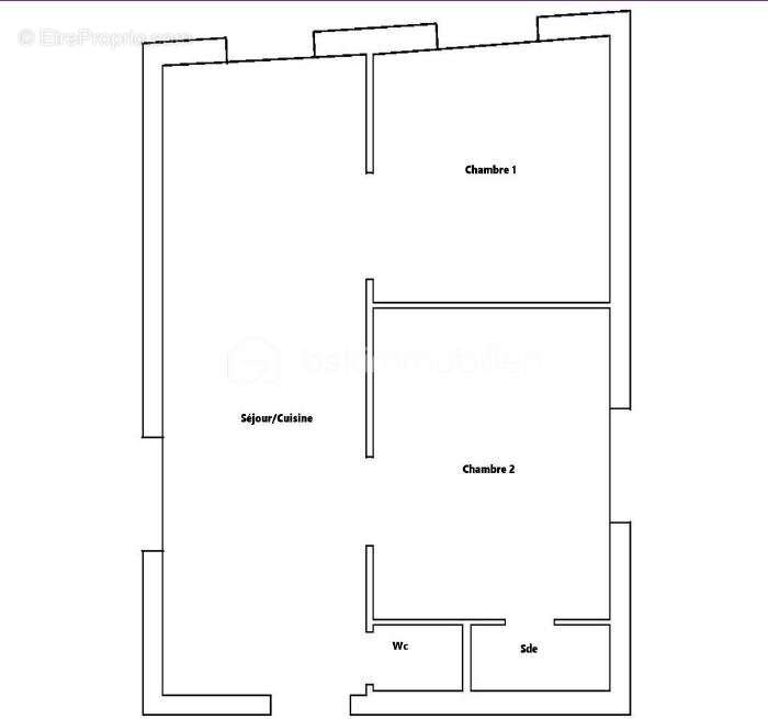
Appartement 3 pièces fonctionnel dans le quartier plaine gare - rueil-malmaison

— Rueil-Malmaison 92500 —
313 000 €
52 m²
3 pièces

Nos partenaires locaux
Idéalement placé à moins de 10min à pieds du Centre ville de Rueil-Malmaison, à équidistance des Gares RER A de Rueil et Nanterre ville (20 min à pieds), 7min en velo et moins de 15min à pieds de la future station de métro Ligne 15 Place de la Boule. Venez découvrir dans une petite copropriété des années 1930 avec cour intérieure et au calme, cet appartement fonctionnel de 3 pièces. Il comprend un séjour avec cuisine ouverte aménagée et équipée, deux chambres dont une avec dressing, une salle d'eau et un toilette séparé. Une cave et une remise complètent ce bien. Garage privatif possible en sus du prix.
Les + : Modification étiquette DPE en F au 1er Janvier 2026, Travaux de RENOVATION ENERGETIQUE VOTES ET PAYES à la charge des vendeurs, isolation thermique par l'extérieur et réfection avec isolation du toit de la copropriété, lumineux, grandes chambres, aucune perte d'espace.

Cette annonce référence 309372 vous est présentée par votre agent commercial BSK Immobilier LAETITIA VENERONI (EI) immatriculé au RSAC de NANTERRE (92000) sous le numéro 89815174100011.

Prix du bien : 313 000,00 €
Les honoraires d'agence sont à la charge du vendeur.

A propos de la copropriété :
Pas de procédure en cours.
Nombre de lots : 3
Charges prévisionnelles annuelles : 2 062,00 €

A propos des performances énergétiques :
Date de réalisation du diagnostic énergétique : 16/01/2025
Score DPE : 506 kWhEP/m²/an
Score GES : 16 kgepCO2/m²/an
Montant estimé des dépenses annuelles d'énergie pour un usage standard : entre 2010.00 € et 2770.00 € par an. Prix moyens des énergies indexés sur l'année 2022 (abonnements compris).

Les informations sur les risques auxquels ce bien est exposé sont disponibles sur le site Géorisques : www.georisques.gouv.fr
Voir plus

Référence: 309372
Bien en copropriété. Nombre de lots : 3. Charges de copropriété : 171 €.
Honoraires à la charge du vendeur.
DPE
A
B
C
D
E
F
G
GES
A
B
C
D
E
F
G

Prêt immobilier

Vous souhaitez connaître votre capacité d’emprunt et trouver le meilleur crédit immobilier ?
Réaliser une simulation gratuite

Appartement à RUEIL-MALMAISON
Appartement à RUEIL-MALMAISON
Appartement à RUEIL-MALMAISON
Appartement à RUEIL-MALMAISON
Appartement à RUEIL-MALMAISON
Appartement à RUEIL-MALMAISON
Appartement à RUEIL-MALMAISON
Appartement à RUEIL-MALMAISON
Appartement à RUEIL-MALMAISON
Appartement à RUEIL-MALMAISON
Appartement à RUEIL-MALMAISON
Appartement à RUEIL-MALMAISON
Appartement à RUEIL-MALMAISON
Appartement à RUEIL-MALMAISON
Ce site est protégé par reCAPTCHA la Politique de confidentialité et les Conditions d’utilisation de Google s’appliquent.
Obtenir un prêt immobilier au meilleur taux ?

En poursuivant votre navigation sans modifier vos paramètres, vous acceptez l'utilisation de cookies susceptibles de réaliser des statistiques de visite. Cliquez ici pour plus d'informations