Bénéficiez des services de nos partenaires locaux soigneusement sélectionnés
pour vous accompagner dans votre parcours d'achat immobilier

Cession de droit au bail emplacement premium face au lac avenue d'albigny

— Annecy 74000 —
20 000 €
228 m²

Nos partenaires locaux
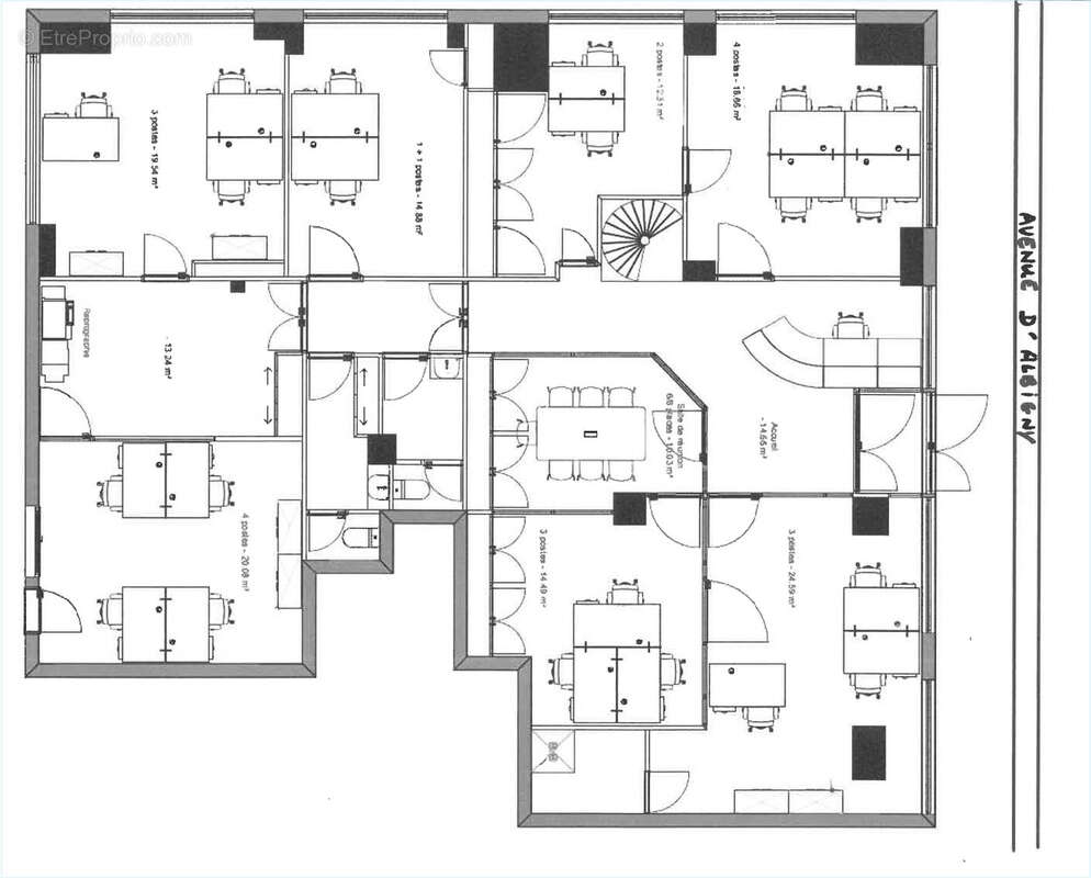
Situé face au lac d’Annecy, sur l’une des artères les plus prestigieuses de la ville, ce local bénéficie d’un emplacement exceptionnel offrant une visibilité maximale grâce à ses 9 vitrines totalisant 24 mètres linéaires. Superficie totale : 228.24 m2 sur 2 niveaux.
Aménagé avec soin, il propose un espace de travail fonctionnel :


Rez-de-chaussée : accueil spacieux, 7 bureaux lumineux, salle de réunion, 2 WC


Niveau -1 : espace archives et rangements


Chauffage base au sol et convecteurs, confort optimal toute l’année


Capacité d’accueil : jusqu’à 23 collaborateurs


Loyer annuel : 66 000 € HTCharges annuelles : 5 600 € (incluant eau chaude, chauffage, ordures ménagères et entretien des espaces verts)

Les atouts :


Emplacement premium face au lac


Grande façade vitrée assurant visibilité et luminosité


Bail longue durée jusqu’en 2034


Idéal pour activités immobilières, bancaires, d’assurance ou de conseil


Une opportunité rare sur le secteur pour implanter votre enseigne dans un cadre prestigieux et stratégique.
Contactez-nous dès maintenant pour plus d’informations ou planifier une visite.
Voir plus
DPE
A
B
C
D
E
F
G
GES
A
B
C
D
E
F
G

Prêt immobilier

Vous souhaitez connaître votre capacité d’emprunt et trouver le meilleur crédit immobilier ?
Réaliser une simulation gratuite

Commerce à ANNECY
Commerce à ANNECY
Ce site est protégé par reCAPTCHA la Politique de confidentialité et les Conditions d’utilisation de Google s’appliquent.
Obtenir un prêt immobilier au meilleur taux ?

En poursuivant votre navigation sans modifier vos paramètres, vous acceptez l'utilisation de cookies susceptibles de réaliser des statistiques de visite. Cliquez ici pour plus d'informations