Maison de village spécial investisseurs

— Carces 83570 —
259 000 €
179 m²
13 pièces

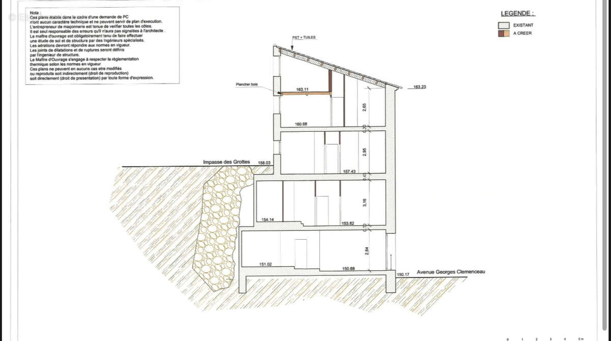
Nichée au cœur du pittoresque village provençal de Carcès (83570), cette spacieuse maison de village de 5 niveaux représente une opportunité exceptionnelle pour les investisseurs avisés et les marchands de biens. Bénéficiant d'un emplacement privilégié, à seulement 15 minutes de Brignoles et 45 minutes de Draguignan, cette propriété offre un cadre de vie authentique et paisible, tout en restant proche des commodités urbaines. Avec une superficie totale d'environ 50 m2 par niveau, cette maison se distingue par son potentiel de transformation. Un permis de construire validé est déjà en place pour la création de trois appartements indépendants, offrant une flexibilité inégalée pour l'aménagement : imaginez un T2 chaleureux, un T3 familial, ou même un duplex élégant. La toiture en bon état et la structure saine de la bâtisse garantissent une base solide pour tout projet de rénovation. L'intérieur, baigné de lumière grâce à de nombreuses ouvertures, révèle le charme de l'ancien avec ses poutres apparentes et ses murs en pierres, créant une atmosphère unique et chaleureuse. Les atouts de cette propriété ne s'arrêtent pas là. Située en plein centre du village, elle bénéficie d'une proximité immédiate avec les commerces, les écoles et les parkings publics, sans oublier les deux places de parking incluses. Son fort potentiel locatif en fait un investissement idéal pour une résidence principale, un logement saisonnier, ou un projet familial. Ne manquez pas cette occasion rare de créer un espace de vie unique, alliant le charme de l'ancien au confort moderne, dans un cadre provençal idyllique.
Voir plus

Référence: 20250
Barème des honoraires

Prêt immobilier

Vous souhaitez connaître votre capacité d’emprunt et trouver le meilleur crédit immobilier ?
Réaliser une simulation gratuite

Maison à CARCES
Maison à CARCES
Maison à CARCES
Maison à CARCES
Maison à CARCES
Maison à CARCES
Maison à CARCES
Maison à CARCES
Maison à CARCES
Maison à CARCES
Maison à CARCES
Maison à CARCES
Maison à CARCES
Maison à CARCES
Maison à CARCES
Maison à CARCES
Maison à CARCES
Maison à CARCES
Maison à CARCES
Maison à CARCES
Maison à CARCES
Maison à CARCES
Maison à CARCES
Ce site est protégé par reCAPTCHA la Politique de confidentialité et les Conditions d’utilisation de Google s’appliquent.
Obtenir un prêt immobilier au meilleur taux ?

En poursuivant votre navigation sans modifier vos paramètres, vous acceptez l'utilisation de cookies susceptibles de réaliser des statistiques de visite. Cliquez ici pour plus d'informations