Bénéficiez des services de nos partenaires locaux soigneusement sélectionnés
pour vous accompagner dans votre parcours d'achat immobilier

75009 - rue des martyrs - appartement ancien double exposit

— Paris-9e 75009 —
731 500 €
62 m²
2 pièces
ascenseur

Nos partenaires locaux
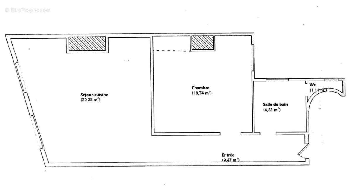
Au cœur du 9e arrondissement, dans le secteur ultraprisé Lorette-Martyrs, découvrez cette véritable pépite : un appartement ancien et lumineux, idéalement situé au 2e étage avec ascenseur.
Offrant une double exposition (sur rue et cour), l'espace se distingue par un plan optimisé et une belle clarté naturelle. Il se compose d'une entrée, d'un vaste double séjour convivial avec cuisine ouverte, offrant une vue dynamique sur la célèbre Rue des Martyrs, et d'une chambre au calme absolu côté cour. Une salle de bains et des WC séparés complètent ce bien.
Un agencement optimal pour un style de vie recherché.
Vendu avec une cave.
Agent commercial immobilier.
Voir plus

Référence: CDS2931
DPE
A
B
C
D
E
F
G
GES
A
B
C
D
E
F
G

Prêt immobilier

Vous souhaitez connaître votre capacité d’emprunt et trouver le meilleur crédit immobilier ?
Réaliser une simulation gratuite

Appartement à PARIS-9E
Appartement à PARIS-9E
Appartement à PARIS-9E
Appartement à PARIS-9E
Appartement à PARIS-9E
Appartement à PARIS-9E
Appartement à PARIS-9E
Appartement à PARIS-9E
Appartement à PARIS-9E
Appartement à PARIS-9E
Appartement à PARIS-9E
Appartement à PARIS-9E
Appartement à PARIS-9E
Appartement à PARIS-9E
Ce site est protégé par reCAPTCHA la Politique de confidentialité et les Conditions d’utilisation de Google s’appliquent.
Obtenir un prêt immobilier au meilleur taux ?

En poursuivant votre navigation sans modifier vos paramètres, vous acceptez l'utilisation de cookies susceptibles de réaliser des statistiques de visite. Cliquez ici pour plus d'informations