Bénéficiez des services de nos partenaires locaux soigneusement sélectionnés
pour vous accompagner dans votre parcours d'achat immobilier

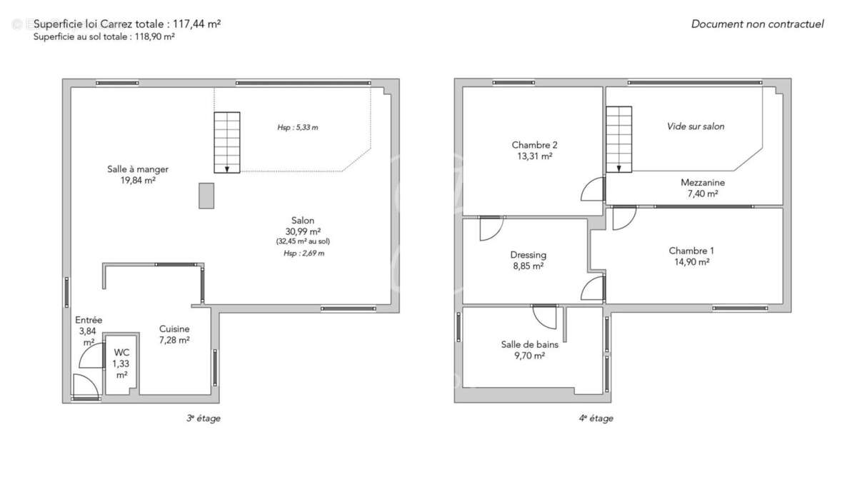
Paris 18e - limitrophe 9e - avenue rachel - atelier d'artiste en duplex à vendre - 4 pièces - 117,44m² carrez - 2 chambres.

— Paris-9e 75009 —
1 450 000 €
117 m²
4 pièces
ascenseur

Nos partenaires locaux
À proximité de la rue Lepic et du Moulin Rouge, au sein d'une avenue paisible.
Bel atelier d'artiste en duplex de 117,44m² loi Carrez et 118,90m² au sol au troisième étage par ascenseur d'un bel immeuble Art-déco des années 30. Au calme et lumineux avec sa grande baie vitrée et son orientation plein est. Rénové avec goût, il est agencé comme suit: au premier niveau, une entrée, une cuisine équipée avec verrière, des toilettes invités, une magnifique pièce de vie avec salle à manger et séjour de 50,83m² disposant d'une cheminée fonctionnelle et d'une belle hauteur sous plafond.
À l'étage, une galerie avec vue plongeante sur la réception distribue deux chambres confortables, une pièce aménagée en dressing ainsi qu'une spacieuse salle de bains avec douche, baignoire et toilettes.
Prestations soignées, ambiance chaleureuse et beaux volumes.
Une cave complète ce bien.
Copropriété de qualité avec digicode, interphone et gardienne.
Voir plus

Référence: 5458JUNVAG09
Barème des honoraires
DPE
A
B
C
D
E
F
G
GES
A
B
C
D
E
F
G

Prêt immobilier

Vous souhaitez connaître votre capacité d’emprunt et trouver le meilleur crédit immobilier ?
Réaliser une simulation gratuite

Appartement à PARIS-9E
Appartement à PARIS-9E
Appartement à PARIS-9E
Appartement à PARIS-9E
Appartement à PARIS-9E
Appartement à PARIS-9E
Appartement à PARIS-9E
Appartement à PARIS-9E
Appartement à PARIS-9E
Appartement à PARIS-9E
Appartement à PARIS-9E
Appartement à PARIS-9E
Appartement à PARIS-9E
Appartement à PARIS-9E
Appartement à PARIS-9E
Appartement à PARIS-9E
Appartement à PARIS-9E
Appartement à PARIS-9E
Ce site est protégé par reCAPTCHA la Politique de confidentialité et les Conditions d’utilisation de Google s’appliquent.
Obtenir un prêt immobilier au meilleur taux ?

En poursuivant votre navigation sans modifier vos paramètres, vous acceptez l'utilisation de cookies susceptibles de réaliser des statistiques de visite. Cliquez ici pour plus d'informations