Bénéficiez des services de nos partenaires locaux soigneusement sélectionnés
pour vous accompagner dans votre parcours d'achat immobilier

Appartement 90m² à nantes

— Nantes 44300 —
477 000 €
91 m²
4 pièces
parkingbalcon/terrasseascenseuraccès handicapé

Nos partenaires locaux

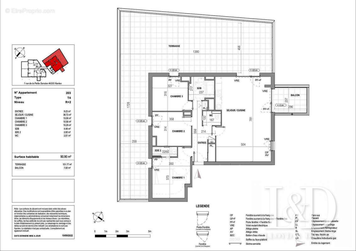
Nantes, quartier facultés. Au bout d'une impasse et au coeur d'un espace boisé classé, petite résidence de 17 logements offrant de nombreux avantages : proximité des berges de l'Erdre, de l'hippodrome, des commerces et des transports en commun. À 7 minutes en bus du quartier des Facultés, des infrastructures sportives du campus Universitaire, de l'Ecole Centrale et de l'Ecole Supérieure de Commerce Audencia… situation exceptionnelle pour un investissement stratégique. Je vous propose un T4 de 91m² au dernier étage disposant d'une terrasse de plus de 100m². Entrée avec placard, 3 chambres dont une parentale avec salle d'eau privative, salle de bain et un grand séjour-cuisine de 40m² ouvrant sur une profonde et large terrasse de 102m² ainsi qu'un second extérieur de 7m². La terrasse principale contourne l'appartement et est accessible depuis toutes les pièces. Les vues sur les parties boisées sont agréables. Vous disposez d'un garage fermé de 2 places en sous-sol sécurisé. Disponible de suite. Me contacter. Carole Ducoin-EI, votre consultante partenaire RSAC de Montpellier N° 832 505 465.


Honoraires à la charge du vendeur. Dans une copropriété de 17 lots. Quote-part moyenne du budget prévisionnel 1 800 €/an. Aucune procédure n'est en cours. DPE vierge. Les informations sur les risques auxquels ce bien est exposé sont disponibles sur le site Géorisques : georisques.gouv.fr.

Votre conseiller LLOYD & DAVIS : Carole DUCOIN
Agent commercial (Entreprise individuelle)
RSAC 832 505 465 Montpellier
RCP 61953760 Allianz
Voir plus

Référence: VA4894-LLOYD&DAVIS
Bien en copropriété. Nombre de lots : 17. Charges de copropriété : 1800 €.
Honoraires à la charge du vendeur.
Barème des honoraires

Prêt immobilier

Vous souhaitez connaître votre capacité d’emprunt et trouver le meilleur crédit immobilier ?
Réaliser une simulation gratuite

Appartement à NANTES
Appartement à NANTES
Appartement à NANTES
Appartement à NANTES
Appartement à NANTES
Appartement à NANTES
Appartement à NANTES
Appartement à NANTES
Appartement à NANTES
Ce site est protégé par reCAPTCHA la Politique de confidentialité et les Conditions d’utilisation de Google s’appliquent.
Obtenir un prêt immobilier au meilleur taux ?

En poursuivant votre navigation sans modifier vos paramètres, vous acceptez l'utilisation de cookies susceptibles de réaliser des statistiques de visite. Cliquez ici pour plus d'informations