Uniquement chez loire & ocean immobilier - maison chaumes-en-retz (centre arthon en retz) - 4 chambres, 2 sde et garage

— Arthon-En-Retz 44320 —
393 750 €
141 m² / 850 m²
5 pièces
parkingjardin

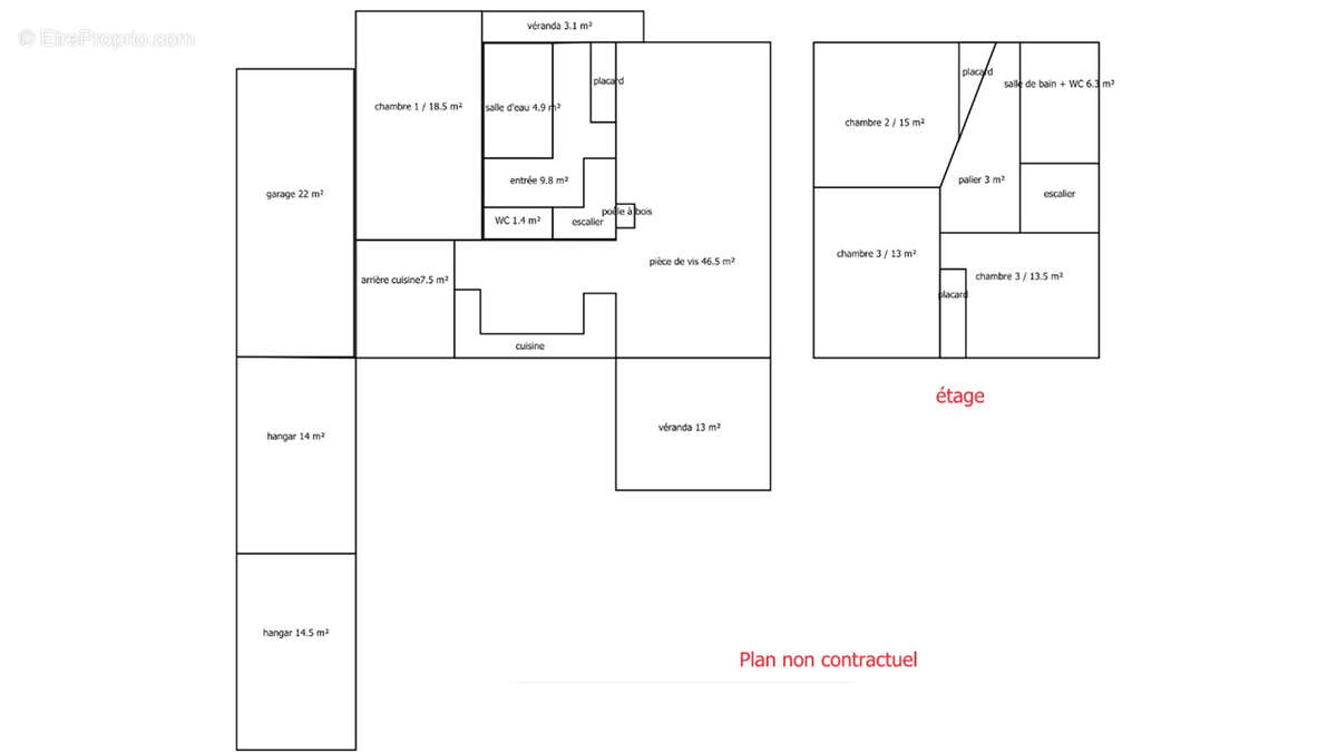
Maison Chaumes-En-Retz (Centre Arthon en Retz) - 4 chambres, 2 SDE et garage Chaumes-en-Retz (secteur Arthon en Retz centre), maison familiale parfaitement entretenue de 2006 à proximité des équipements. A 5 minutes à pied des commerces et équipements (buraliste, boulangerie, boulangerie, écoles et collège), 30 minutes des portes de Nantes et 15 minutes de Pornic, à 3 minutes à vélo du collège, nous vous proposons cette maison de 2006 de 140 m² habitables sur une parcelle plane et clôturée de plus de 850 m² avec 4 grandes chambres dont 1 au rez-de-chaussée, une salle de bains et une salle d'eau et un garage. Cette belle maison est composée : *au rez-de-chaussée : d'une entrée (avec véranda et placards), d'une belle pièce de vie traversante de 46 m² avec une cuisine ouverte aménagée/équipée (cuisine SCHMIDT de 2015) et donnant sur une véranda de 13 m², d'une arrière-cuisine avec évier de 7.5 m², d'un espace nuit composé d'une grande chambre de 18.5 m², d'une salle d'eau attenante de 4.9 m² et d'un WC indépendant ; *à l'étage : un palier dessert 3 belles chambres (15, 13.5 et 13 m²) avec placards et une salle de bains avec WC. Un garage attenant et deux préaux de 14.5 m² complètent ce bien.' A l'avant de la maison, des aménagements paysagers de qualité (bitumes et plantations) limitent l'entretien du terrain. A l'arrière, la parcelle se poursuit avec une terrasse carrelée et un store-banne électrique et une partie engazonnée. Les plus : *Situation géographique : parcelle située au calme mais en plein entre bourg ; * Possibilités d'évolution de la maison, réalisation d'extensions, piscinable, zone urbanisme Ub; *DPE en C (isolation en 2020); *Assainissement collectif (Tout à l'égout) ; *Volets en PVC ; *Chauffages électriques et poêle à bois ; * Portail électrique en alu et porte garage motorisée ; *puit artésien et système d'arrosage automatique. Maison disponible en septembre 2025. Les informations sur les risques auxquels ce bien est exposé sont disponibles sur le site Géorisques : https://www.georisques.gouv.fr. Réalisation du diagnostic selon la nouvelle réglementation en vigueur. Ce bien vous est présenté par Alexandre FOUQUET EI - Agent commercial - Téléphone : [Coordonnées masquées] et Karine FOUQUET EI - Agent commercial immatriculé au registre des agents commerciaux (RSAC) du tribunal de Commerce de St Nazaire - n°887 828 143 - Téléphone : [Coordonnées masquées]. Lien page Google : https://www.google.com/search?q=Karine+et+Alexandre+Fouquet+Immobilier,+Chaumes-en-Retz Les honoraires agence (5%, charge vendeur) sont compris dans le prix indiqué. Prix hors honoraires : 360 000 euros.
Voir plus

Référence: 1722
Honoraires à la charge du vendeur.
DPE
A
B
C
D
E
F
G
GES
A
B
C
D
E
F
G

Prêt immobilier

Vous souhaitez connaître votre capacité d’emprunt et trouver le meilleur crédit immobilier ?
Réaliser une simulation gratuite

Maison à ARTHON-EN-RETZ
Maison à ARTHON-EN-RETZ
Maison à ARTHON-EN-RETZ
Maison à ARTHON-EN-RETZ
Maison à ARTHON-EN-RETZ
Maison à ARTHON-EN-RETZ
Maison à ARTHON-EN-RETZ
Maison à ARTHON-EN-RETZ
Maison à ARTHON-EN-RETZ
Maison à ARTHON-EN-RETZ
Maison à ARTHON-EN-RETZ
Maison à ARTHON-EN-RETZ
Maison à ARTHON-EN-RETZ
Maison à ARTHON-EN-RETZ
Maison à ARTHON-EN-RETZ
Maison à ARTHON-EN-RETZ
Ce site est protégé par reCAPTCHA la Politique de confidentialité et les Conditions d’utilisation de Google s’appliquent.
Obtenir un prêt immobilier au meilleur taux ?

En poursuivant votre navigation sans modifier vos paramètres, vous acceptez l'utilisation de cookies susceptibles de réaliser des statistiques de visite. Cliquez ici pour plus d'informations