Vente maison campagne(24260) 127 500ᅵ

— Campagne 24260 —
127 500 €
89 m²
5 pièces

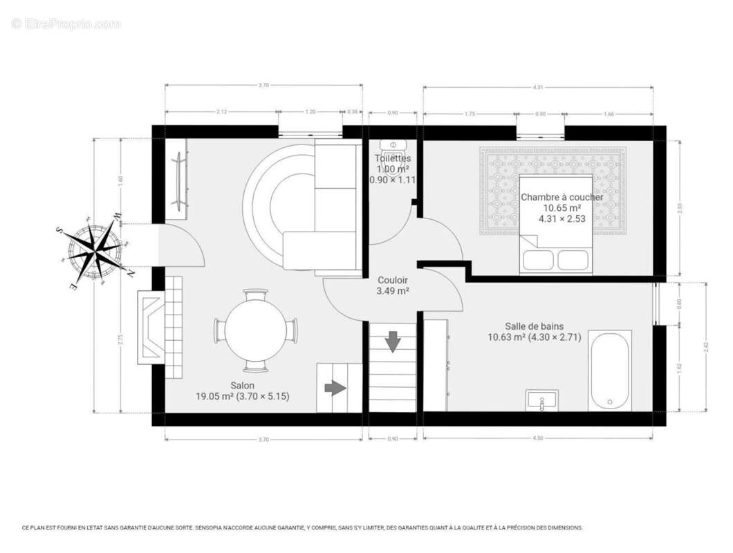
Maison en pierre avec terrasse et jardin maison en pierre dans un hameau calme, proche des eyzies et du bugue située dans un petit hameau, cette maison en pierre bénéficie d'un cadre tranquille à seulement 4 km des eyzies et 7 km du bugue. d'une superficie habitable de 89m², elle dispose d'un jardin d'environ 200 m² et d'une terrasse. le bien, bien que dans un environnement paisible, n'est pas isolé. au rez-de-jardin : une cuisine/salle à manger wc indépendant buanderie À l'étage : salon lumineux avec cheminée chambre salle de bain wc indépendant au dernier étage : grande chambre de 19 m² avec climatisatioin les huisseries sont en double vitrage et la chaudière à gaz a été remplacée il y a deux ans. le bien dispose d'un assainissement individuel, non conforme. cette maison offre un excellent potentiel, avec des travaux de rafraichissemnt à prévoir. parfait pour ceux recherchant un cadre de vie calme à proximité des commodités.
Voir plus

Référence: 4477

Prêt immobilier

Vous souhaitez connaître votre capacité d’emprunt et trouver le meilleur crédit immobilier ?
Réaliser une simulation gratuite

Maison à CAMPAGNE
Maison à CAMPAGNE
Maison à CAMPAGNE
Maison à CAMPAGNE
Maison à CAMPAGNE
Maison à CAMPAGNE
Maison à CAMPAGNE
Maison à CAMPAGNE
Maison à CAMPAGNE
Maison à CAMPAGNE
Ce site est protégé par reCAPTCHA la Politique de confidentialité et les Conditions d’utilisation de Google s’appliquent.
Obtenir un prêt immobilier au meilleur taux ?

En poursuivant votre navigation sans modifier vos paramètres, vous acceptez l'utilisation de cookies susceptibles de réaliser des statistiques de visite. Cliquez ici pour plus d'informations