Bénéficiez des services de nos partenaires locaux soigneusement sélectionnés
pour vous accompagner dans votre parcours d'achat immobilier

Exclusivite-2 pieces /parking- 57 m²- pasteur- 640 000 euros

— Paris-15e 75015 —
640 000 €
57 m²
2 pièces
balcon/terrasseascenseur

Nos partenaires locaux
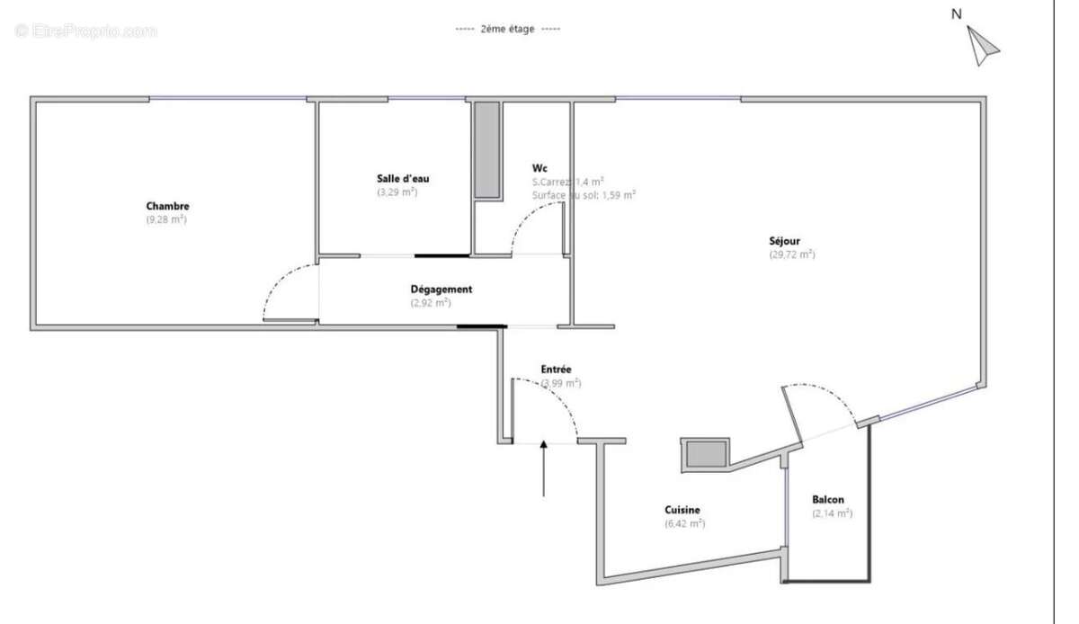
Paris XVème-Pasteur- Appartement vendu avec emplacement de parking, de 2 pièces de 57m² environ,situé au 2ème étage avec ascenseur, d’un immeuble, construit en 1980, comprenant :
Une entrée, un séjour en double exposition traversante avec porte d’accès sur petit balcon de 3m2 environ, une cuisine indépendante aménagée, une salle d’eau, des WC indépendants, une chambre. Possibilité de 2 chambres, comme à l'origine.
Appartement en bon état général, au plan compact, clair et calme, en bon état général, avec une cave et un emplacement de parking. Toutes les fenêtres sont double vitrage. La hauteur sous plafond de 2,50m environ. Eau chaude collective. Chauffage individuel électrique.

Bien soumis au statut de la copropriété, charges annuelles de euros, chauffage individuel électrique. Eau chaude collective. 171 lots. Logement à consommation énergétique: classe . Montant estimé des dépenses annuelles d’énergie pour un usage standard de 1710€ à 2360€ /an. Le prix indiqué comprend les honoraires à la charge de l'acheteur: 30 000 euros TTC du prix du bien. Prix hors honoraires: 610 000 €. Les informations sur les risques auxquels ce bien est exposé sont disponibles sur le site Géorisques: "www.georisques.gouv.fr".
Voir plus

Référence: 85964005
Barème des honoraires
DPE
A
B
C
D
E
F
G
GES
A
B
C
D
E
F
G

Prêt immobilier

Vous souhaitez connaître votre capacité d’emprunt et trouver le meilleur crédit immobilier ?
Réaliser une simulation gratuite

Appartement à PARIS-15E
Appartement à PARIS-15E
Appartement à PARIS-15E
Appartement à PARIS-15E
Appartement à PARIS-15E
Appartement à PARIS-15E
Appartement à PARIS-15E
Appartement à PARIS-15E
Appartement à PARIS-15E
Appartement à PARIS-15E
Appartement à PARIS-15E
Appartement à PARIS-15E
Appartement à PARIS-15E
Appartement à PARIS-15E
Appartement à PARIS-15E
Appartement à PARIS-15E
Ce site est protégé par reCAPTCHA la Politique de confidentialité et les Conditions d’utilisation de Google s’appliquent.
Obtenir un prêt immobilier au meilleur taux ?

En poursuivant votre navigation sans modifier vos paramètres, vous acceptez l'utilisation de cookies susceptibles de réaliser des statistiques de visite. Cliquez ici pour plus d'informations