Bénéficiez des services de nos partenaires locaux soigneusement sélectionnés
pour vous accompagner dans votre parcours d'achat immobilier

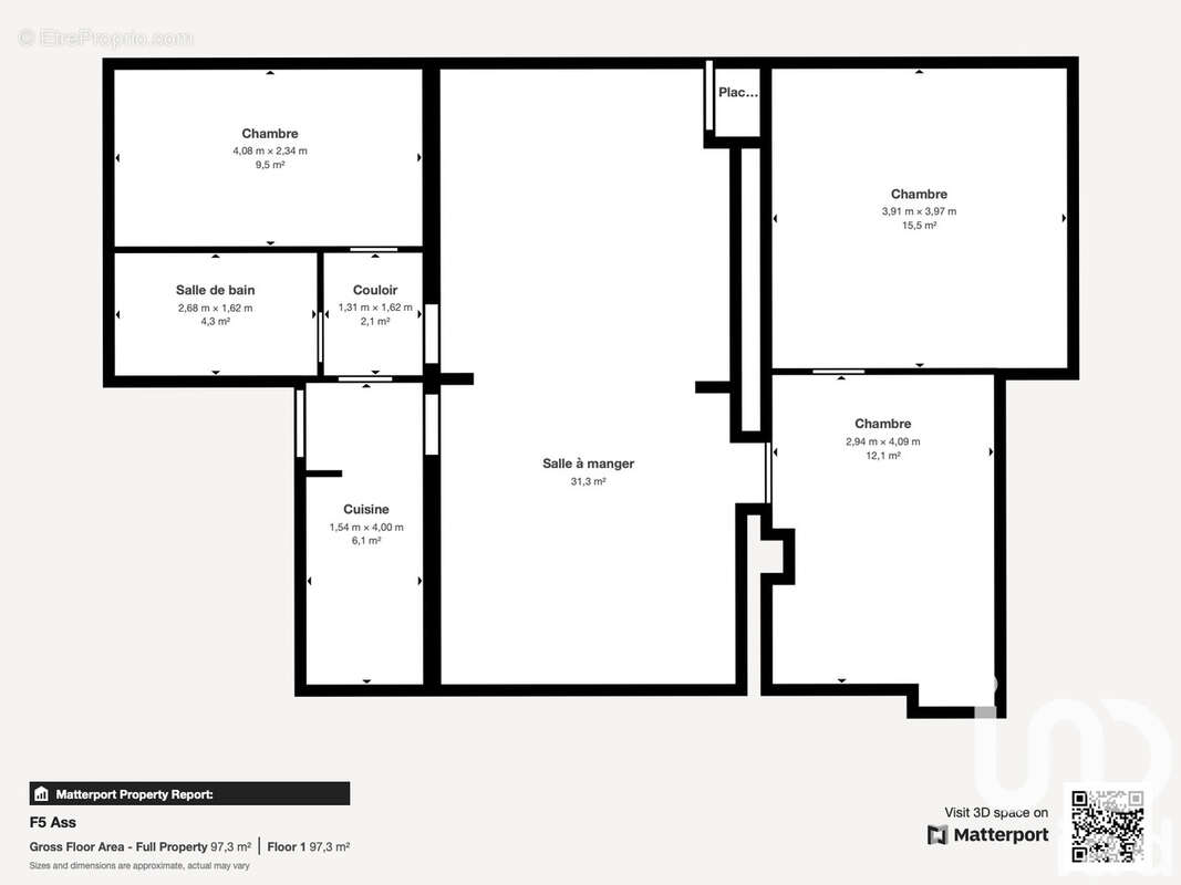
Appartement 73m² à montereau-fault-yonne

— Montereau-Fault-Yonne 77130 —
97 000 €
73 m²
5 pièces

Nos partenaires locaux
Iad France - Jessica Bourdin vous propose : Ville basse, Rue de Varennes, appartement 2 chambres avec cave. Emplacement idéal, entre centre-ville et gare. À deux pas de l'hôpital, des pompiers, cet appartement bénéficie d'un accès privilégié à toutes les commodités : commerces, écoles et transports en commun.

Installé au 2e étage, il offre de beaux volumes avec : une entrée, une cuisine, un séjour double, 2 chambres, un bureau, ainsi qu'une salle d'eau avec WC. En complément, une cave et une remise.

Idéal pour une famille, un premier achat, ou encore un investissement locatif, en longue durée ou en courte durée type Airbnb.

Un lumineux et fonctionnel, situé dans un emplacement stratégique, à personnaliser selon vos envies !

* VISITE VIRTUELLE DISPONIBLE*

La presente annonce immobiliere vise 2 lots situés dans une copropriété de 15 lots au total et ne faisant l'objet d'aucune procédure en cours citée à l'article L. 721-1 du code de la construction et de l'habitation. Montant moyen mensuel de charges déclaré par le vendeur : 40¤ par mois (soit 480 ¤ annuel). Honoraires d'agence à la charge du vendeur.
Information d'affichage énergétique sur ce bien : classe ENERGIE E indice 291 et classe CLIMAT E indice 63. Les informations sur les risques auxquels ce bien est exposé, y compris l'obligation légale de débroussaillement, sont disponibles sur le site Géorisques : http://www.georisques.gouv.fr.
La présente annonce immobilière a été rédigée sous la responsabilité éditoriale de Mme Jessica Bourdin mandataire indépendant en immobilier (sans détention de fonds), agent commercial de la SAS I@D France immatriculé au RSAC de MELUN sous le numéro 798057642, titulaire de la carte de démarchage immobilier pour le compte de la société I@D France SAS.
Informations LOI ALUR :
Soumis au régime de copropriété.
Nombre de lots : 15.
Quote part annuelle(moyenne) : 480 euros.
Honoraires charge vendeur. (gedeon_6727_31812575)
Voir plus

Référence: 1836490
Bien en copropriété. Nombre de lots : 15. Charges de copropriété : 480 €.
Honoraires à la charge du vendeur.
DPE
A
B
C
D
E
F
G
GES
A
B
C
D
E
F
G

Prêt immobilier

Vous souhaitez connaître votre capacité d’emprunt et trouver le meilleur crédit immobilier ?
Réaliser une simulation gratuite

Photo 1 - Appartement à MONTEREAU-FAULT-YONNE
Photo 1
Photo 2 - Appartement à MONTEREAU-FAULT-YONNE
Photo 2
Photo 3 - Appartement à MONTEREAU-FAULT-YONNE
Photo 3
Photo 4 - Appartement à MONTEREAU-FAULT-YONNE
Photo 4
Photo 5 - Appartement à MONTEREAU-FAULT-YONNE
Photo 5
Photo 6 - Appartement à MONTEREAU-FAULT-YONNE
Photo 6
Photo 7 - Appartement à MONTEREAU-FAULT-YONNE
Photo 7
Photo 8 - Appartement à MONTEREAU-FAULT-YONNE
Photo 8
Photo 9 - Appartement à MONTEREAU-FAULT-YONNE
Photo 9
Ce site est protégé par reCAPTCHA la Politique de confidentialité et les Conditions d’utilisation de Google s’appliquent.
Obtenir un prêt immobilier au meilleur taux ?

En poursuivant votre navigation sans modifier vos paramètres, vous acceptez l'utilisation de cookies susceptibles de réaliser des statistiques de visite. Cliquez ici pour plus d'informations