Bénéficiez des services de nos partenaires locaux soigneusement sélectionnés
pour vous accompagner dans votre parcours d'achat immobilier

Appartement 128m² à avon

— Avon 77210 —
n.c. €
128 m²
6 pièces
parkingbalcon/terrasse

Nos partenaires locaux
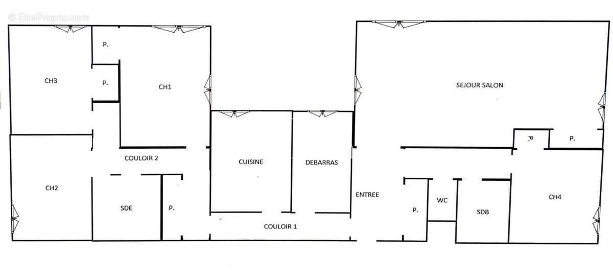
Sous compromis : EXCLUSIVITE- RARE BUTTE MONTCEAU -Appartement F6 de 128m² au 2 ième et DERNIER ETAGE avec un grand balcon , à la Butte Montceau 68 collectif, très lumineux, avec un grand box en sous-sol et une place de parking extérieure et une cave.
DPE en D.
.
Visite virtuelle disponible du ce site internet.
.
Résidence sécurisée avec vigik, gardien et commerces à proximité. Lycée Uruguay à 1 minute à pied. Collège La Vallée à 5 minutes à pied, la Gare d'Avon à 5 minutes de voiture ou vélo. Parc du Bel Ebat à 3 minutes à pied.
.
Cet appartement de 128 m² se compose d'une entrée de 9.40m² avec placards , d'un séjour/salle à manger de 29m² donnant accès à un grand balcon orientée Sud Est, d'une cuisine de 12m² aménagée et équipée, d'une buanderie de 5.80m², de quatre chambres de 16.60 m², 10.90m², 9.80m² et 9.75 m² avec placards dans chaque chambre, d'une salle de bain, d'une salle d'eau, deux wc
.
Double vitrage partout avec stores électriques - Chauffage gaz collectif. Les charges sont de 487 € par mois soit 5852 € par an comprenant l'eau froide, l'eau chaude et le chauffage gaz collectif.
Une grande cave et une place de parking extérieure et un grand box en sous-sol complètent ce bien.
.

Dans une copropriété de 68 lots. Quote-part moyenne du budget prévisionnel 5 852 €/an. Aucune procédure n'est en cours. Classe énergie D, Classe climat D Montant estimé des dépenses annuelles d'énergie pour un usage standard : entre 1440.00 € et 1990.00 € sur les années 2021, 2022 et 2023 (abonnements compris). Les informations sur les risques auxquels ce bien est exposé sont disponibles sur le site Géorisques : georisques.gouv.fr.
Voir plus

Référence: VA2253-DLVIMMO
Bien en copropriété. Nombre de lots : 68. Charges de copropriété : 5852 €.
Honoraires à la charge du vendeur.
Barème des honoraires
DPE
A
B
C
D
E
F
G
GES
A
B
C
D
E
F
G

Prêt immobilier

Vous souhaitez connaître votre capacité d’emprunt et trouver le meilleur crédit immobilier ?
Réaliser une simulation gratuite

Appartement à AVON
Appartement à AVON
Appartement à AVON
Appartement à AVON
Appartement à AVON
Appartement à AVON
Appartement à AVON
Appartement à AVON
Appartement à AVON
Ce site est protégé par reCAPTCHA la Politique de confidentialité et les Conditions d’utilisation de Google s’appliquent.
Obtenir un prêt immobilier au meilleur taux ?

En poursuivant votre navigation sans modifier vos paramètres, vous acceptez l'utilisation de cookies susceptibles de réaliser des statistiques de visite. Cliquez ici pour plus d'informations