Bénéficiez des services de nos partenaires locaux soigneusement sélectionnés
pour vous accompagner dans votre parcours d'achat immobilier

Maison 143m² à carhaix-plouguer

— Carhaix-Plouguer 29270 —
283 500 €
143 m² / 951 m²
6 pièces
parkingbalcon/terrassejardin

Nos partenaires locaux
29270 - CARHAIX-PLOUGUER - CENTRE VILLE - 6 PIÈCES - 4 CHAMBRES - 143m² - UNE MAISON FAMILIALE AVEC TERRASSE ET JARDIN

efficity, l'agence qui estime votre bien en ligne, vous propose cette SUPERBE MAISON SANS TRAVAUX idéalement située à CARHAIX-PLOUGUER, dans un quartier CALME, à proximité de toutes les commodités.

Cette MAISON SPACIEUSE de 143m², en EXCELLENT ÉTAT GÉNÉRAL, offre un confort de vie optimal sur DEUX NIVEAUX. Vous serez immédiatement charmé par son cadre de vie agréable et sa luminosité naturelle.

Au rez-de-chaussée, vous découvrirez une VASTE ENTRÉE desservant un SALON CHALEUREUX et une CUISINE ÉQUIPÉE. Une CHAMBRE et une SALLE DE BAIN avec baignoire DOUCHE et WC complètent ce niveau.

À l'étage, vous trouverez TROIS AUTRES CHAMBRES CONFORTABLES dont une grande pouvant être séparée en deux, une SALLE D'EAU avec DOUCHE et WC ainsi qu'un autre TOILETTE avec LAVABO, ceci offrant un bel espace de nuit pour toute la famille.

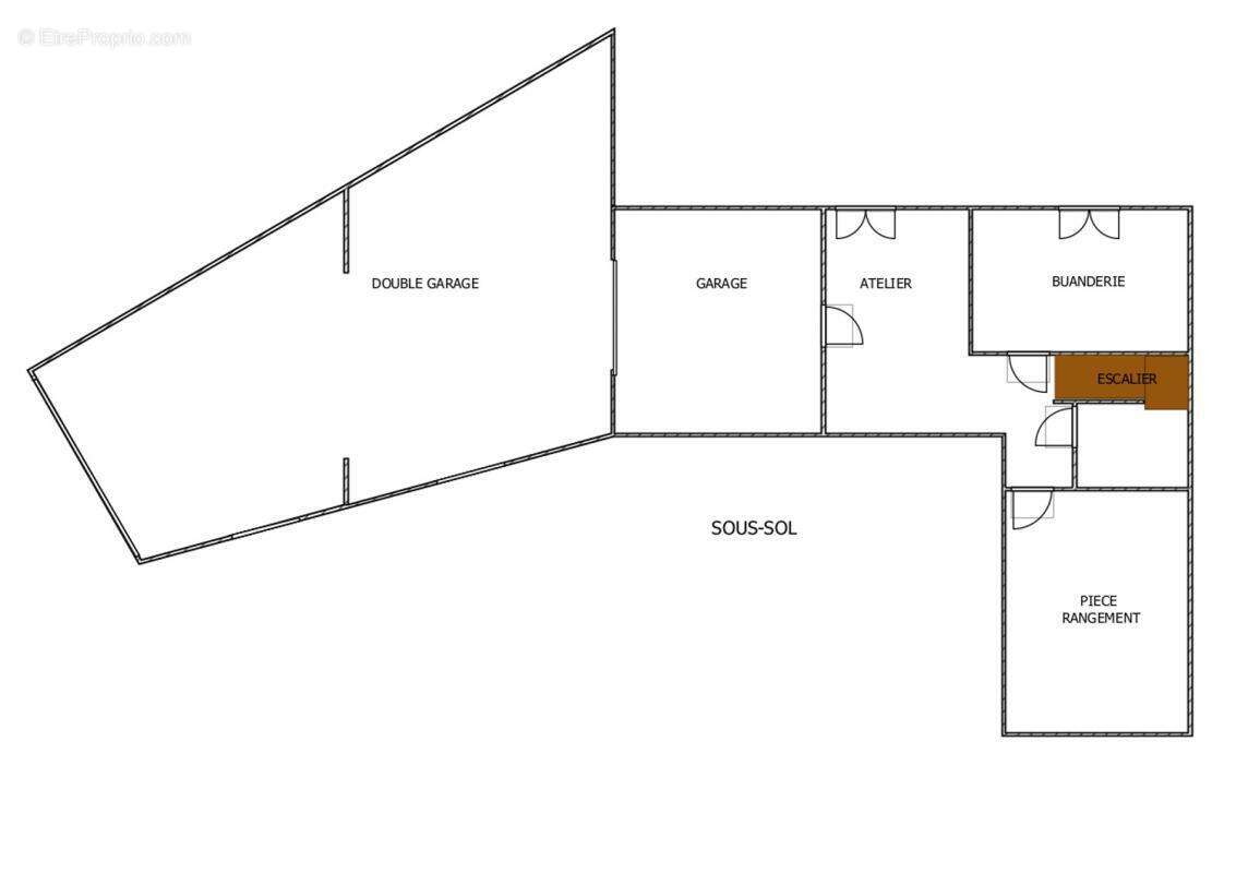
Au SOUS-SOL vous trouverez une grande PIÈCE DE RANGEMENT, une BUANDERIE, un ATELIER ainsi que TROIS GARAGES successifs offrant une bel espace couvert IDÉAL POUR ARTISAN.

Cette MAISON permettant une vie de PLAIN-PIED dispose d'un jardin de 500m², d'un bel ACCÈS PAVÉ permettant de garer au moins DEUX VÉHICULES ainsi que d'une TERRASSE, parfait pour les moments de détente en plein air.

Ne manquez pas l' opportunité de devenir propriétaire de cette MAISON DE CARACTÈRE rénovée avec des MATÉRIAUX DE QUALITÉ située à CARHAIX-PLOUGUER.
Contactez-nous dès maintenant pour organiser une visite et laissez-vous séduire par ce bien d'exception.
Les informations sur les risques auxquels ce bien est exposé sont disponibles sur le site Georisque : georisques. gouv. fr
Benoît Gobin - EI - est Agent Commercial mandataire en immobilier, immatriculé au Registre Spécial des Agents Commerciaux du Tribunal de Commerce de Saint-Brieuc sous le n°939132130.
Siège social du mandant : effiCity, 48 avenue de Villiers - 75017 PARIS - Société par Actions Simplifiée, société au capital de 132 373,05 euros, immatriculée au RCS Paris 497 617 746 et titulaire de la Carte professionnelle CPI 75[Coordonnées masquées]02 025 - CCI Paris IDF - Caisse de Garantie : GALIAN Assurances 89 rue de la Boétie 75008 Paris
Voir plus

Référence: 198114
Honoraires à la charge du vendeur.
Barème des honoraires
DPE
A
B
C
D
E
F
G
GES
A
B
C
D
E
F
G

Prêt immobilier

Vous souhaitez connaître votre capacité d’emprunt et trouver le meilleur crédit immobilier ?
Réaliser une simulation gratuite

Maison à CARHAIX-PLOUGUER
Maison à CARHAIX-PLOUGUER
Maison à CARHAIX-PLOUGUER
Maison à CARHAIX-PLOUGUER
Maison à CARHAIX-PLOUGUER
Maison à CARHAIX-PLOUGUER
Maison à CARHAIX-PLOUGUER
Maison à CARHAIX-PLOUGUER
Maison à CARHAIX-PLOUGUER
Maison à CARHAIX-PLOUGUER
Maison à CARHAIX-PLOUGUER
Maison à CARHAIX-PLOUGUER
Maison à CARHAIX-PLOUGUER
Maison à CARHAIX-PLOUGUER
Maison à CARHAIX-PLOUGUER
Maison à CARHAIX-PLOUGUER
Maison à CARHAIX-PLOUGUER
Maison à CARHAIX-PLOUGUER
Maison à CARHAIX-PLOUGUER
Maison à CARHAIX-PLOUGUER
Ce site est protégé par reCAPTCHA la Politique de confidentialité et les Conditions d’utilisation de Google s’appliquent.
Obtenir un prêt immobilier au meilleur taux ?

En poursuivant votre navigation sans modifier vos paramètres, vous acceptez l'utilisation de cookies susceptibles de réaliser des statistiques de visite. Cliquez ici pour plus d'informations