Appartement

— Sainte-Consorce 69280 —
274 000 €
60 m²
3 pièces
parkingbalcon/terrasse

STE CONSORCE (69280)– APPARTEMENT 2 CHAMBRES – LUMINEUX – TERRASSE – STATIONNEMENTS

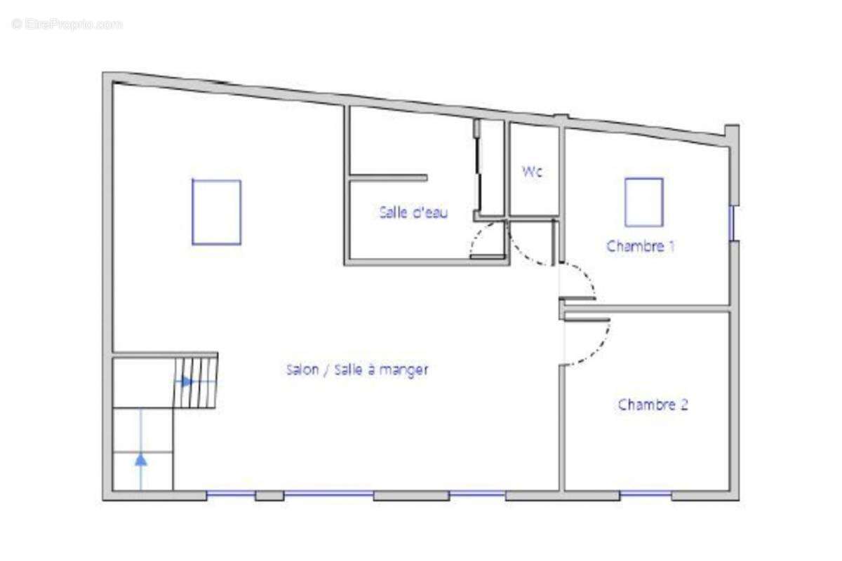
Sarah BERTHENET – Efficity vous invite à découvrir en exclusivité ce bel appartement lumineux de 60,02 m², situé au 1er étage d'une bâtisse entièrement réhabilitée en 2019, au sein d'une copropriété intime de seulement 2 lots.
Un lieu de vie idéal au calme.

Caractéristiques principales :
Copropriété de 2 lots, cadre paisible
2 chambres
Pièce de vie spacieuse de 32,57 m²

Un intérieur lumineux et agréable à vivre
Un escalier privatif vous mène au 1er étage. Dès l'entrée, vous serez séduits par la grande pièce de vie de 32,57 m² lumineuse grâce à ses grandes ouvertures.
Cet espace convivial offre de multiples possibilités d'aménagement pour créer un salon chaleureux et un coin repas accueillant. La cuisine aménagée et équipée est ouverte sur le salon, par lequel vous accédez directement à la terrasse de 15,55 m² avec vue dégagée.

L'appartement se compose également de deux chambres confortables de 9,9 m² et 9,95 m² avec placards.
Une salle d'eau équipée d'une double vasque et un WC indépendant complètent le tout.

Atout supplémentaire :
2 places de stationnement extérieur privatives

Un cadre de vie serein et fonctionnel
Cet appartement se situe dans un environnement verdoyant et calme.
A proximité du Quincieux, proche de l'arrêt de la Ligne 72 - Gorge de Loup - Saint Consorce.
A mi chemin des centres de Ste Consorce et de Grézieu la Varenne (environ 1km5).

Caractéristiques techniques
• Surface : 60,02 m²
• Double vitrage et volets roulants électriques
• Chauffage au sol
• Bâtisse réhabilitée en 2019
• Copropriété de 2 lots – faibles charges

Cet appartement allie modernité, confort et sérénité. Une belle opportunité pour vivre dans un cadre intime et lumineux, sans travaux à prévoir.

Intéressés ?
Contactez Sarah Berthenet pour organiser une visite et découvrir ce bien.
Les informations sur les risques auxquels ce bien est exposé sont disponibles sur le site Georisque : georisques. gouv. fr
Sarah Berthenet - EI - est Agent Commercial mandataire en immobilier, immatriculé au Registre Spécial des Agents Commerciaux du Tribunal de Commerce de Lyon 2e Arrondissement sous le n°902567114.
Siège social du mandant : effiCity, 48 avenue de Villiers - 75017 PARIS - Société par Actions Simplifiée, société au capital de 132 373,05 euros, immatriculée au RCS Paris 497 617 746 et titulaire de la Carte professionnelle CPI 75[Coordonnées masquées]02 025 - CCI Paris IDF - Caisse de Garantie : GALIAN Assurances 89 rue de la Boétie 75008 Paris
Voir plus

Référence: 196617
Bien en copropriété. Nombre de lots : 2. Charges de copropriété : 16 €.
Honoraires à la charge du vendeur.
Barème des honoraires
DPE
A
B
C
D
E
F
G
GES
A
B
C
D
E
F
G

Prêt immobilier

Vous souhaitez connaître votre capacité d’emprunt et trouver le meilleur crédit immobilier ?
Réaliser une simulation gratuite

Appartement à SAINTE-CONSORCE
Appartement à SAINTE-CONSORCE
Appartement à SAINTE-CONSORCE
Appartement à SAINTE-CONSORCE
Appartement à SAINTE-CONSORCE
Appartement à SAINTE-CONSORCE
Appartement à SAINTE-CONSORCE
Appartement à SAINTE-CONSORCE
Appartement à SAINTE-CONSORCE
Appartement à SAINTE-CONSORCE
Appartement à SAINTE-CONSORCE
Ce site est protégé par reCAPTCHA la Politique de confidentialité et les Conditions d’utilisation de Google s’appliquent.
Obtenir un prêt immobilier au meilleur taux ?

En poursuivant votre navigation sans modifier vos paramètres, vous acceptez l'utilisation de cookies susceptibles de réaliser des statistiques de visite. Cliquez ici pour plus d'informations