Appartement paris 3 pièce(s) 86 m2

— Paris-20e 75020 —
609 000 €
86 m²
4 pièces

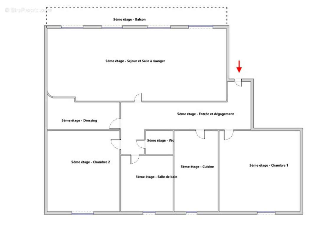
LAFORET GAMBETTA vous propose un appartement traversant. 86m2 au 5ème étage avec ascenseur, au sein d'un immeuble des années 1960 bien entretenue, à 3 mn du métro Saint Fargeau. Il se compose d'un grand séjour d'environ 35m2 (possibilité de faire une troisième chambre) donnant sur un grand balcon de 10m2, sans vis à vis, une cuisine séparée, 2 chambres donnant sur un jardin, une salle de bains, un wc séparé et un dressing / débarras. Appartement sans vis à vis , exposé est et ouest, traversant, lumineux. Rafraichissement à prévoir. Les charges comprennent le chauffage.... (5.00 % honoraires TTC à la charge de l'acquéreur.) Copropriété de 18 lots (Pas de procédure en cours). Charges annuelles : 4260 euros.
Voir plus

Bien en copropriété. Nombre de lots : 18. Charges de copropriété : 4260 €.
Honoraires d'agence de 5% à la charge de l'acquéreur
DPE
A
B
C
D
E
F
G
GES
A
B
C
D
E
F
G

Prêt immobilier

Vous souhaitez connaître votre capacité d’emprunt et trouver le meilleur crédit immobilier ?
Réaliser une simulation gratuite

Appartement à PARIS-20E
Appartement à PARIS-20E
Appartement à PARIS-20E
Appartement à PARIS-20E
Appartement à PARIS-20E
Appartement à PARIS-20E
Appartement à PARIS-20E
Appartement à PARIS-20E
Appartement à PARIS-20E
Ce site est protégé par reCAPTCHA la Politique de confidentialité et les Conditions d’utilisation de Google s’appliquent.
Obtenir un prêt immobilier au meilleur taux ?

En poursuivant votre navigation sans modifier vos paramètres, vous acceptez l'utilisation de cookies susceptibles de réaliser des statistiques de visite. Cliquez ici pour plus d'informations