Maison 95m² à neulise

— Neulise 42590 —
158 000 €
95 m² / 575 m²
4 pièces
balcon/terrassejardin

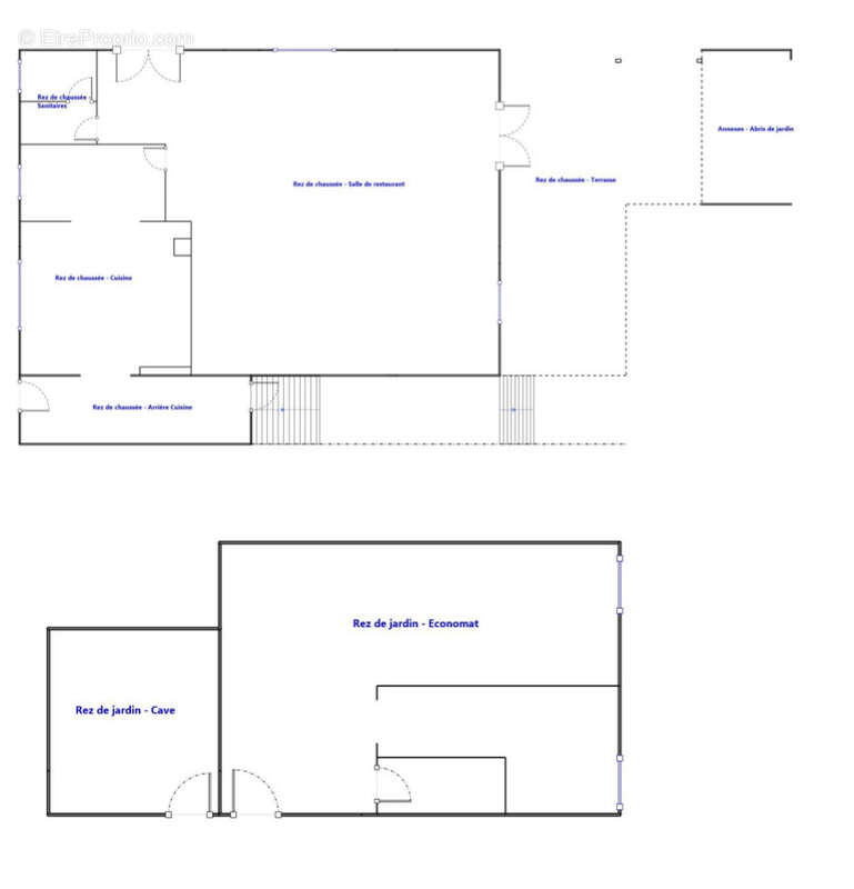
Iad France - William Dumas vous propose : Vous avez envie d'un projet original et plein de potentiel ? Cet ancien restaurant situé à Neulise, à proximité immédiate des axes autoroutiers, n'attend que vous pour retrouver une seconde vie.
Ce bien offre de nombreux atouts. La grande pièce à vivre, très lumineuse, permettra de créer un bel espace de vie convivial. La cuisine existante peut facilement être repensée pour s'adapter à vos besoins. L'espace disponible offre également la possibilité d'aménager une mezzanine, permettant de créer jusqu'à trois chambres selon vos envies.
Un petit studio indépendant de 22 m² vient compléter l'ensemble. Il sera parfait pour accueillir des invités, disposer d'un espace de télétravail ou envisager une location. À l'extérieur, une belle terrasse bénéficie d'une vue dégagée et d'un terrain d'environ 575 m², agréable et facile à entretenir. Le chauffage est électrique et une cheminée est en attente d'installation.
Ce lieu unique est une véritable page blanche à réinventer. Projet familial, investissement locatif ou résidence secondaire, il s'adapte à tous les projets et à toutes les envies.
Contactez-moi dès maintenant pour organiser une visite et découvrir tout le potentiel de ce bien plein de caractère.

Honoraires d'agence à la charge du vendeur.
Information d'affichage énergétique sur ce bien : classe ENERGIE D indice 251 et classe CLIMAT B indice 7. Les informations sur les risques auxquels ce bien est exposé, y compris l'obligation légale de débroussaillement, sont disponibles sur le site Géorisques : http://www.georisques.gouv.fr.
La présente annonce immobilière a été rédigée sous la responsabilité éditoriale de M William Dumas mandataire indépendant en immobilier (sans détention de fonds), agent commercial de la SAS I@D France immatriculé au RSAC de Roanne sous le numéro 491209532, titulaire de la carte de démarchage immobilier pour le compte de la société I@D France SAS.
Informations LOI ALUR :
Honoraires charge vendeur. (gedeon_6727_32122493)
Voir plus

Référence: 1881744
Honoraires à la charge du vendeur.
DPE
A
B
C
D
E
F
G
GES
A
B
C
D
E
F
G

Prêt immobilier

Vous souhaitez connaître votre capacité d’emprunt et trouver le meilleur crédit immobilier ?
Réaliser une simulation gratuite

Photo 1 - Maison à NEULISE
Photo 1
Photo 2 - Maison à NEULISE
Photo 2
Photo 3 - Maison à NEULISE
Photo 3
Photo 4 - Maison à NEULISE
Photo 4
Photo 5 - Maison à NEULISE
Photo 5
Photo 6 - Maison à NEULISE
Photo 6
Photo 7 - Maison à NEULISE
Photo 7
Photo 8 - Maison à NEULISE
Photo 8
Ce site est protégé par reCAPTCHA la Politique de confidentialité et les Conditions d’utilisation de Google s’appliquent.
Obtenir un prêt immobilier au meilleur taux ?

En poursuivant votre navigation sans modifier vos paramètres, vous acceptez l'utilisation de cookies susceptibles de réaliser des statistiques de visite. Cliquez ici pour plus d'informations