Bénéficiez des services de nos partenaires locaux soigneusement sélectionnés
pour vous accompagner dans votre parcours d'achat immobilier

Maison à rénover sur parcelle de 2165 m2

— Romans-Sur-Isere 26100 —
210 000 €
84 m² / 2 165 m²
4 pièces
parkingjardin

Nos partenaires locaux
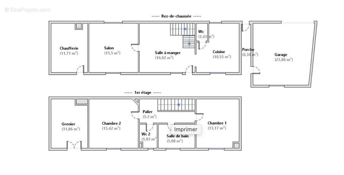
Romans Ouest, secteur Les Recollets, ancienne maison des années 30 sur 2 niveaux, de 84 m2 habitable avec garage attenant de 24 m2 et dépendance de 12 m2, la maison est inoccupée depuis longtemps et nécessite une rénovation complète, elle est édifiée en bord de terrain et donne sur un terrain plat de plus de 2000 m2, une partie est constructible environ 30 % et 70 % environ est classé en EVV "Espace végétalisé à valoriser"
Référence agence : 1072

Référence: Z3JM-669-QCU
Honoraires à la charge du vendeur.
Barème des honoraires
DPE
A
B
C
D
E
F
G
GES
A
B
C
D
E
F
G

Prêt immobilier

Vous souhaitez connaître votre capacité d’emprunt et trouver le meilleur crédit immobilier ?
Réaliser une simulation gratuite

Maison à ROMANS-SUR-ISERE
Maison à ROMANS-SUR-ISERE
Maison à ROMANS-SUR-ISERE
Maison à ROMANS-SUR-ISERE
Maison à ROMANS-SUR-ISERE
Maison à ROMANS-SUR-ISERE
Maison à ROMANS-SUR-ISERE
Maison à ROMANS-SUR-ISERE
Maison à ROMANS-SUR-ISERE
Ce site est protégé par reCAPTCHA la Politique de confidentialité et les Conditions d’utilisation de Google s’appliquent.
Obtenir un prêt immobilier au meilleur taux ?

En poursuivant votre navigation sans modifier vos paramètres, vous acceptez l'utilisation de cookies susceptibles de réaliser des statistiques de visite. Cliquez ici pour plus d'informations