Bénéficiez des services de nos partenaires locaux soigneusement sélectionnés
pour vous accompagner dans votre parcours d'achat immobilier

Dernier étage - t2 lumineux avec terrasse et garage – venelles

— Venelles 13770 —
258 000 €
42 m²
2 pièces
parkingbalcon/terrasseascenseur

Nos partenaires locaux
VENELLES – Résidence Arbor & Sens (11 allée des Rabasses)
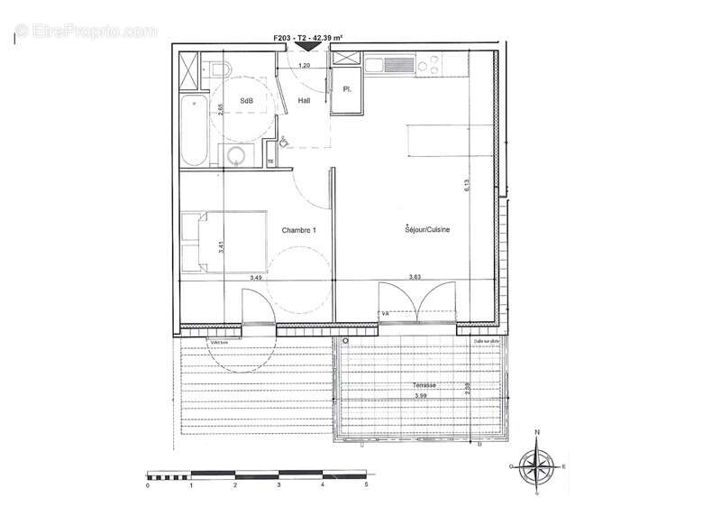
Dans un environnement verdoyant et calme, découvrez ce charmant T2 de 42 m², situé au 2ᵉ et dernier étage d'une résidence récente et sécurisée (2013), parfaitement entretenue.

L'appartement, lumineux et sans vis-à-vis, offre une vue dégagée sur un parc arboré et une terrasse plein sud de 10 m², idéale pour profiter du soleil en toute tranquillité.

En excellent état, il ne nécessite aucun travaux et bénéficie d'un DPE classé B, gage de confort et d'économies d'énergie.
L'espace de vie comprend un séjour avec cuisine ouverte, une chambre spacieuse de 12 m², ainsi qu'une grande salle de bains avec toilettes.

Les + :
- DPE B,
- Dernier étage,
- Terrasse plein sud de 10 m² avec vue dégagée sur un parc arboré,
- Eau chaude solaire collective pour une consommation maîtrisée,
- Résidence sécurisée avec ascenseur,
- Fibre optique,
- Garage fermé avec compteur électrique.

Un cocon idéal pour un premier achat ou pour une personne souhaitant allier confort moderne, cadre naturel et sérénité.
Nombre de lots de la copropriété : 69, Montant moyen annuel de la quote-part de charges (budget prévisionnel)(Eau chaude et entretien des communs.) : 1545€ soit 128€ par mois. Les honoraires sont à la charge du vendeur.
Les informations sur les risques auxquels ce bien est exposé sont disponibles sur le site Géorisques : www. georisques. gouv. fr.

Réseau Immobilier CAPIFRANCE - Votre agent commercial (RSAC N°831 932 611 - Greffe de SALON DE PROVENCE) Sophie GAYVALLET Entrepreneur Individuel [Coordonnées masquées] - Réf.929360
Voir plus

Référence: 340933620708
Bien en copropriété. Nombre de lots : 69. Charges de copropriété : 128 €.
Honoraires à la charge du vendeur.
DPE
A
B
C
D
E
F
G
GES
A
B
C
D
E
F
G

Prêt immobilier

Vous souhaitez connaître votre capacité d’emprunt et trouver le meilleur crédit immobilier ?
Réaliser une simulation gratuite

Appartement à VENELLES
Appartement à VENELLES
Appartement à VENELLES
Appartement à VENELLES
Appartement à VENELLES
Appartement à VENELLES
Appartement à VENELLES
Appartement à VENELLES
Appartement à VENELLES
Appartement à VENELLES
Appartement à VENELLES
Appartement à VENELLES
Appartement à VENELLES
Appartement à VENELLES
Appartement à VENELLES
Appartement à VENELLES
Ce site est protégé par reCAPTCHA la Politique de confidentialité et les Conditions d’utilisation de Google s’appliquent.
Obtenir un prêt immobilier au meilleur taux ?

En poursuivant votre navigation sans modifier vos paramètres, vous acceptez l'utilisation de cookies susceptibles de réaliser des statistiques de visite. Cliquez ici pour plus d'informations