Bénéficiez des services de nos partenaires locaux soigneusement sélectionnés
pour vous accompagner dans votre parcours d'achat immobilier

Maison d’exception sur 1 540 m² de terrain arboré à sevran

— Sevran 93270 —
443 000 €
131 m² / 1 540 m²
6 pièces

Nos partenaires locaux
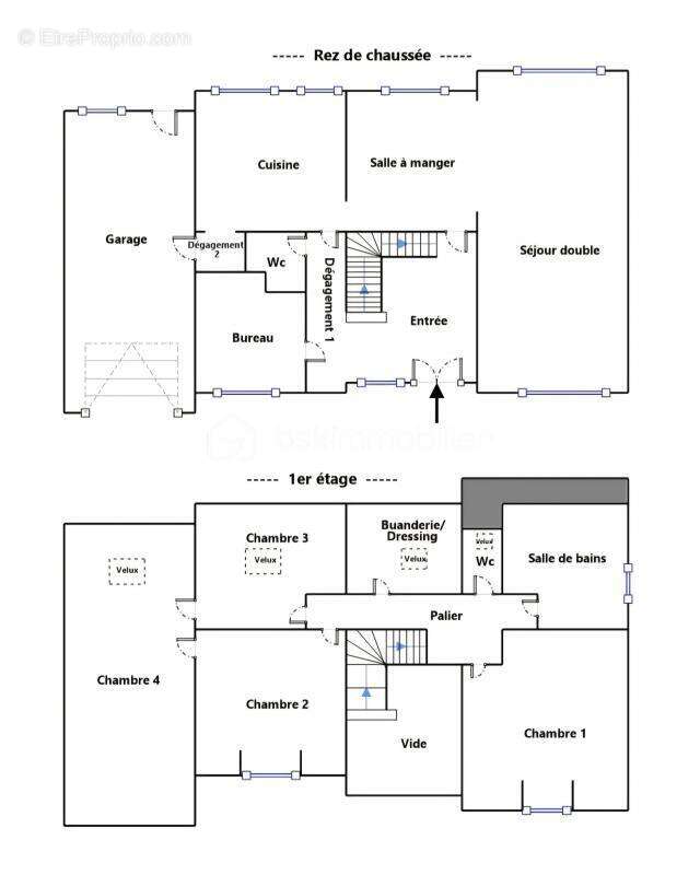
À découvrir à Sevran, cette maison familiale de 131 m² habitables, édifiée en 1995 sur un terrain arboré de 1 540 m². Située dans un quartier résidentiel calme, elle offre un cadre de vie agréable alliant confort, espace et praticité au quotidien.

Au rez-de-chaussée, une entrée spacieuse mène vers un séjour double lumineux agrémenté d'une cheminée, une salle à manger attenante à la cuisine, un bureau, un WC et un accès direct au garage. À l'étage, le palier dessert quatre chambres dont 3 communicantes, une salle de bains, un WC indépendant ainsi qu'un espace buanderie/dressing.

Le terrain, entièrement clos et planté de nombreux arbres fruitiers, comprend un puits et des dépendances. Il offre la possibilité de construire une seconde maison, idéale pour un projet d'investissement locatif ou pour créer un logement indépendant. La maison bénéficie également de panneaux solaires, apportant un confort énergétique supplémentaire et des économies au quotidien.

La localisation est un véritable atout pour les familles. À quelques minutes à pied, les arrêts du tramway T4 Freinville-Sevran (environ 500 m, soit 6 minutes à pied) et Rougemont-Chanteloup (environ 350 m, soit 5 minutes à pied) facilitent les déplacements vers les gares RER et les communes voisines. Le canal de l'Ourcq, accessible à pied, offre un cadre verdoyant idéal pour les promenades et les loisirs en plein air.

Côté éducation, plusieurs établissements scolaires se trouvent à proximité immédiate : École maternelle Les Primevères, École maternelle Françoise Dolto, École maternelle Jean Perrin, École élémentaire Anatole France, École élémentaire Lamartine, École élémentaire Marie Curie, ainsi que les collèges de la Pléiade et Évariste Galois, tous situés à moins de 10 minutes en voiture. Cet environnement scolaire complet renforce l'intérêt de ce bien pour une vie de famille sereine.

Pour découvrir l'intégralité des photos et le plan de la maison, rendez-vous directement sur le site BSK Immobilier.

Cette annonce référence 309730 vous est présentée par votre agent commercial BSK Immobilier SANDRINE PAKULA (EI) immatriculé au RSAC de BOBIGNY (93000) sous le numéro 82756608400022.

Prix du bien : 443 000,00 €
Les honoraires d'agence sont à la charge du vendeur.

A propos des performances énergétiques :
Date de réalisation du diagnostic énergétique : 25/07/2025
Score DPE : 220 kWhEP/m²/an
Score GES : 7 kgepCO2/m²/an
Montant estimé des dépenses annuelles d'énergie pour un usage standard : entre 2190.00 € et 3000.00 € par an. Prix moyens des énergies indexés sur l'année 2023 (abonnements compris).

Les informations sur les risques auxquels ce bien est exposé sont disponibles sur le site Géorisques : www.georisques.gouv.fr
Voir plus

Référence: 309730
Honoraires à la charge du vendeur.
DPE
A
B
C
D
E
F
G
GES
A
B
C
D
E
F
G

Prêt immobilier

Vous souhaitez connaître votre capacité d’emprunt et trouver le meilleur crédit immobilier ?
Réaliser une simulation gratuite

Maison à SEVRAN
Maison à SEVRAN
Maison à SEVRAN
Maison à SEVRAN
Maison à SEVRAN
Maison à SEVRAN
Maison à SEVRAN
Maison à SEVRAN
Maison à SEVRAN
Maison à SEVRAN
Maison à SEVRAN
Maison à SEVRAN
Maison à SEVRAN
Maison à SEVRAN
Maison à SEVRAN
Maison à SEVRAN
Maison à SEVRAN
Maison à SEVRAN
Maison à SEVRAN
Maison à SEVRAN
Maison à SEVRAN
Maison à SEVRAN
Maison à SEVRAN
Maison à SEVRAN
Maison à SEVRAN
Maison à SEVRAN
Maison à SEVRAN
Maison à SEVRAN
Maison à SEVRAN
Maison à SEVRAN
Ce site est protégé par reCAPTCHA la Politique de confidentialité et les Conditions d’utilisation de Google s’appliquent.
Obtenir un prêt immobilier au meilleur taux ?

En poursuivant votre navigation sans modifier vos paramètres, vous acceptez l'utilisation de cookies susceptibles de réaliser des statistiques de visite. Cliquez ici pour plus d'informations