Bénéficiez des services de nos partenaires locaux soigneusement sélectionnés
pour vous accompagner dans votre parcours d'achat immobilier

Maison 131m² à fontaines-saint-martin

— Fontaines-Saint-Martin 69270 —
685 000 €
131 m² / 1 500 m²
6 pièces
parkingbalcon/terrassejardin

Nos partenaires locaux
Maison 130 m² – Potentiel d'extension jusqu'à 250 m² – 4 chambres – Garage – Terrain piscinable 1 500 m² -

j'ai le plaisir de vous présenter cette maison lumineuse et traversante, construite en 2009, située au calme absolu sur un très beau terrain, piscinable arboré, clos de 1 500 m², sans aucun vis-à-vis.
L'adresse bénéficie d'un emplacement privilégié, à la croisée de Saint-Cyr-au-Mont-d'Or, Collonges-au-Mont-d'Or et du 9ᵉ arrondissement de Lyon, sur la commune de Saint Cyr au Mont d' Or, .

Les atouts de ce bien :

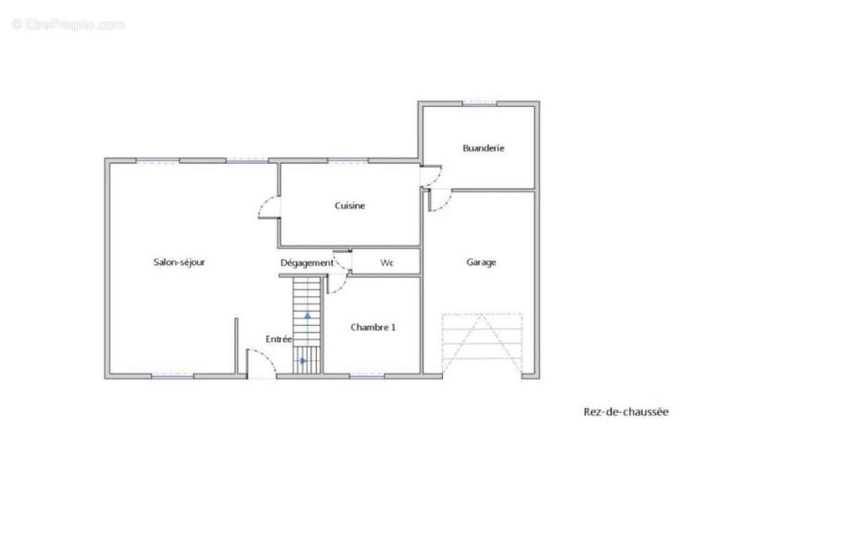
- Une maison fonctionnelle et familiale : La maison, traversante, se déploie sur deux niveaux ;
Au rez-de-chaussée : un séjour/salle à manger d'environ 40 m², une cuisine séparée à équiper pouvant s'ouvrir sur le séjour, une buanderie attenante donnant accès au garage, un bureau d'environ 9 m² et un WC indépendant : découvrez l'agencement sur les plans ci-joints postés.

- Un fort potentiel d'agrandissement : implantée en zone URi2c, la parcelle autorise une emprise au sol maximale de 20 %, offrant la possibilité, ainsi, d'une extension de plus de 120 m², idéalement exposée plein sud et sans vis-à-vis. De quoi imaginer un véritable projet de vie à la mesure de vos envies.

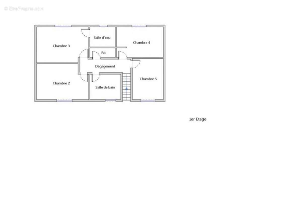
- À l'étage : un espace nuit composé de quatre chambres, d'une salle de bains et d'une salle d'eau.

Des travaux de rafraîchissement sont à prévoir pour moderniser les pièces d'eau et aménager la cuisine mais la maison offre une base récente (construction 2009) , saine, claire et évolutive, avec un fort potentiel d'extension.

- Un cadre recherché, aux portes de Lyon : la propriété se situe à proximité immédiate des écoles, commerces et transports : la gare de Vaise est accessible en moins de 20 minutes en bus ou à vélo.

- Une opportunité sur le secteur pour concilier calme, verdure et proximité urbaine.
Contactez moi dès à présent pour venir la découvrir, Anne-Françoise Magnani - Tel [Coordonnées masquées]
Les informations sur les risques auxquels ce bien est exposé sont disponibles sur le site Georisque : georisques. gouv. fr
Anne Françoise Magnani - EI - est Agent Commercial mandataire en immobilier, immatriculé au Registre Spécial des Agents Commerciaux du Tribunal de Commerce de LYON sous le n°839970126.
Siège social du mandant : effiCity, 48 avenue de Villiers - 75017 PARIS - Société par Actions Simplifiée, société au capital de 132 373,05 euros, immatriculée au RCS Paris 497 617 746 et titulaire de la Carte professionnelle CPI 75[Coordonnées masquées]02 025 - CCI Paris IDF - Caisse de Garantie : GALIAN Assurances 89 rue de la Boétie 75008 Paris
Voir plus

Référence: 198320
Honoraires d'agence de 3.09% à la charge de l'acquéreur
Barème des honoraires
DPE
A
B
C
D
E
F
G
GES
A
B
C
D
E
F
G

Prêt immobilier

Vous souhaitez connaître votre capacité d’emprunt et trouver le meilleur crédit immobilier ?
Réaliser une simulation gratuite

Maison à FONTAINES-SAINT-MARTIN
Maison à FONTAINES-SAINT-MARTIN
Maison à FONTAINES-SAINT-MARTIN
Maison à FONTAINES-SAINT-MARTIN
Maison à FONTAINES-SAINT-MARTIN
Maison à FONTAINES-SAINT-MARTIN
Maison à FONTAINES-SAINT-MARTIN
Maison à FONTAINES-SAINT-MARTIN
Maison à FONTAINES-SAINT-MARTIN
Maison à FONTAINES-SAINT-MARTIN
Maison à FONTAINES-SAINT-MARTIN
Maison à FONTAINES-SAINT-MARTIN
Maison à FONTAINES-SAINT-MARTIN
Maison à FONTAINES-SAINT-MARTIN
Ce site est protégé par reCAPTCHA la Politique de confidentialité et les Conditions d’utilisation de Google s’appliquent.
Obtenir un prêt immobilier au meilleur taux ?

En poursuivant votre navigation sans modifier vos paramètres, vous acceptez l'utilisation de cookies susceptibles de réaliser des statistiques de visite. Cliquez ici pour plus d'informations