Bénéficiez des services de nos partenaires locaux soigneusement sélectionnés
pour vous accompagner dans votre parcours d'achat immobilier

Appartement

— Lyon-7e 69007 —
250 000 €
61 m²
3 pièces
ascenseur

Nos partenaires locaux
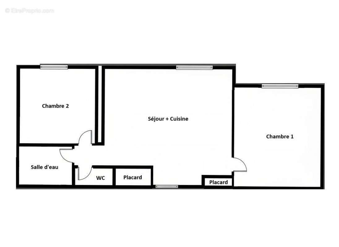
69007 - LYON - 69007 - 3 PIÈCES - 2 CHAMBRES - 61.67M² - LUMINEUX

Loup WEISMAN, Efficity Immobilier, sont heureux de vous présenter cet appartement rénové avec goût, de 62m² Carrez, situé au 4ème étage d'un immeuble construit en 1956.

À deux pas du Tramway et proche du quartier Jean-Macé, du parc Blandan et de nombreux commerces, ce bien lumineux séduit par sa belle pièce de vie de 25m². L'appartement se compose de deux chambres de 11m² et 16m², d'une salle d'eau aux prestations soignées, ainsi que d'un WC indépendant.

Depuis le 4ème étage, profitez d'une vue dégagée sur les monts du Lyonnais, offrant un cadre agréable et ouvert. L'immeuble dispose d'un ascenseur et l'appartement est complété par une cave.

Chaudière et électricité ont été remis à jour récemment, garantissant confort et tranquillité.

Visite virtuelle sur demande.

Pour plus d'informations, contactez Loup WEISMAN par mail ou téléphone.
Les informations sur les risques auxquels ce bien est exposé sont disponibles sur le site Georisque : georisques. gouv. fr
Loup Weisman - EI - est Agent Commercial mandataire en immobilier, immatriculé au Registre Spécial des Agents Commerciaux du Tribunal de Commerce de Lyon 3e Arrondissement sous le n°915133946.
Siège social du mandant : effiCity, 48 avenue de Villiers - 75017 PARIS - Société par Actions Simplifiée, société au capital de 132 373,05 euros, immatriculée au RCS Paris 497 617 746 et titulaire de la Carte professionnelle CPI 75[Coordonnées masquées]02 025 - CCI Paris IDF - Caisse de Garantie : GALIAN Assurances 89 rue de la Boétie 75008 Paris
Voir plus

Référence: 198187
Bien en copropriété. Nombre de lots : 116. Charges de copropriété : 90 €.
Honoraires à la charge du vendeur.
Barème des honoraires
DPE
A
B
C
D
E
F
G
GES
A
B
C
D
E
F
G

Prêt immobilier

Vous souhaitez connaître votre capacité d’emprunt et trouver le meilleur crédit immobilier ?
Réaliser une simulation gratuite

Appartement à LYON-7E
Appartement à LYON-7E
Appartement à LYON-7E
Appartement à LYON-7E
Appartement à LYON-7E
Appartement à LYON-7E
Appartement à LYON-7E
Appartement à LYON-7E
Appartement à LYON-7E
Appartement à LYON-7E
Ce site est protégé par reCAPTCHA la Politique de confidentialité et les Conditions d’utilisation de Google s’appliquent.
Obtenir un prêt immobilier au meilleur taux ?

En poursuivant votre navigation sans modifier vos paramètres, vous acceptez l'utilisation de cookies susceptibles de réaliser des statistiques de visite. Cliquez ici pour plus d'informations