Bénéficiez des services de nos partenaires locaux soigneusement sélectionnés
pour vous accompagner dans votre parcours d'achat immobilier

Appartement 50m² à marseille-13e

— Marseille-13e 13013 —
180 000 €
50 m²
2 pièces
parkingbalcon/terrasseascenseuraccès handicapé

Nos partenaires locaux
' LE PETIT ESTELA '

13ÈME - Château Gombert


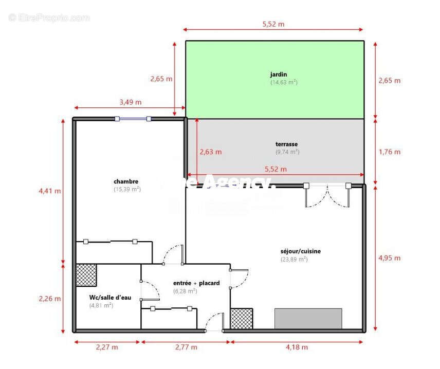
Type 2 de 50m² avec terrasse et jardin de 24.37m²
+ Place de parking privative aérienne en SUS
Vendu loué


Idéalement situé à proximité du village de Château Gombert avec ses commerces et commodités du quotidien, établissements scolaires et transports en commun.


Dans une copropriété récente (2015) au normes PMR, The Agency vous propose en exclusivité
un type 2 de 49m² Loi Carrez en rez-de-jardin.


Il se compose de la façon suivante :


Côté jour :

Une entrée avec placard de rangement, un salon /séjour avec un coin cuisine, meublé et équipé
donnant accès à une terrasse avec un jardin de 24.37m² exposés Nord-Ouest.


Côté nuit :

Une chambre dont une avec placard de rangement, une salle d'eau et un WC indépendant.


Le bien est équipé d'huisseries en PVC double vitrage et de volets roulants électriques.


Possibilité d'acquérir une place de parking simple de 12m² en extérieur en SUS.

Vendu loué (620.00€ /mois Charges Comprises), locataires sérieux


Charges (Apt + Place de parking) : 69.62€ /mois
(Comprenant eau froide, entretien des parties communes, portail automatique,
ascenseur, assurances copropriété et honoraires syndic)
Taxe foncière (Apt + Place de parking) : 1 170.00€ /an


'The Agency, la Révolution immobilière...'


Honoraires inclus de 5.88% TTC à la charge de l'acquéreur. Prix hors honoraires 170 000 €. Dans une copropriété de 90 lots. Quote-part moyenne du budget prévisionnel 835 €/an. Aucune procédure n'est en cours. Classe énergie C, Classe climat C Montant estimé des dépenses annuelles d'énergie pour un usage standard : entre 480.00 € et 700.00 € sur les années 2021, 2022 et 2023 (abonnements compris). Les informations sur les risques auxquels ce bien est exposé sont disponibles sur le site Géorisques : georisques.gouv.fr.

Votre conseiller The Agency : Kenneth MEFFRE
Agent commercial (Entreprise individuelle)
Voir plus

Référence: VA3395-THEAGENCY
Bien en copropriété. Nombre de lots : 90. Charges de copropriété : 835 €.
Honoraires d'agence de 5.88% à la charge de l'acquéreur
Barème des honoraires
DPE
A
B
C
D
E
F
G
GES
A
B
C
D
E
F
G

Prêt immobilier

Vous souhaitez connaître votre capacité d’emprunt et trouver le meilleur crédit immobilier ?
Réaliser une simulation gratuite

Appartement à MARSEILLE-13E
Appartement à MARSEILLE-13E
Appartement à MARSEILLE-13E
Appartement à MARSEILLE-13E
Appartement à MARSEILLE-13E
Appartement à MARSEILLE-13E
Appartement à MARSEILLE-13E
Appartement à MARSEILLE-13E
Appartement à MARSEILLE-13E
Ce site est protégé par reCAPTCHA la Politique de confidentialité et les Conditions d’utilisation de Google s’appliquent.
Obtenir un prêt immobilier au meilleur taux ?

En poursuivant votre navigation sans modifier vos paramètres, vous acceptez l'utilisation de cookies susceptibles de réaliser des statistiques de visite. Cliquez ici pour plus d'informations