Bénéficiez des services de nos partenaires locaux soigneusement sélectionnés
pour vous accompagner dans votre parcours d'achat immobilier

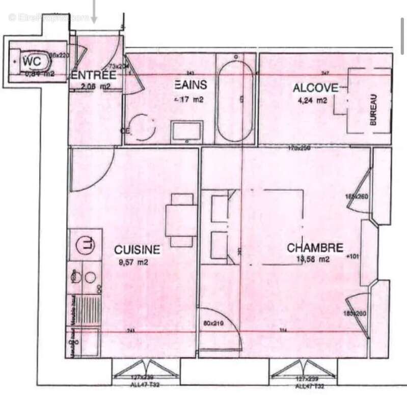
Appartement t1 bis 35m² secteur perrache sainte-blandine

— Lyon-2e 69002 —
199 500 €
35 m²
2 pièces
ascenseur

Nos partenaires locaux
A deux pas de la gare Perrache et du tramway T1, au cœur toutes les commodités, dans un immeuble typique Lyonnais 1900, votre agence HAMAC vous propose de découvrir ce charmant T1 bis de 35m² situé au 1er étage avec ascenseur.

L'appartement est orienté Ouest et très lumineux grâce à ses deux grandes fenêtres.

Il est composé d'une cuisine séparée (possibilité d'ouvrir la cuisine sur le séjour pour avoir un grand espace de vie), d'un salon avec coin nuit en alcôve, d'une salle de bain (récemment rénovée) et toilettes séparées.

Les parties seront refaites à la charge des vendeurs. Local vélo à disposition.

Au niveau des diagnostics, aucune anomalie sur l'installation électrique, bon DPE en D/B.

Chauffage individuel électrique. Ballon d'eau chaude extra plat très récent, VMC présente.

Belle hauteur sous plafond de 3m20 dans le séjour.

L’ensemble du lot comprend les 44 / 1000èmes des parties communes générales.

Merci de contacter Raphaël LASBATX au [Coordonnées masquées] pour toute précision sur ce bien.

Hamac Investissements & Patrimoine, une équipe d'experts passionnés vous offre l'estimation de votre bien.

La présente annonce immobilière a été rédigée sous la responsabilité éditoriale de Raphaël LASBATX, Agent commercial en immobilier (sans détention de fonds) immatriculé au RSAC de LYON sous le numéro 832279046, titulaire de l'attestation de collaborateur pour le compte de la société Hamac Investissements et Patrimoine.
Voir plus

Référence: 86369348
Barème des honoraires
DPE
A
B
C
D
E
F
G
GES
A
B
C
D
E
F
G

Prêt immobilier

Vous souhaitez connaître votre capacité d’emprunt et trouver le meilleur crédit immobilier ?
Réaliser une simulation gratuite

Appartement à LYON-2E
Appartement à LYON-2E
Appartement à LYON-2E
Appartement à LYON-2E
Appartement à LYON-2E
Appartement à LYON-2E
Appartement à LYON-2E
Appartement à LYON-2E
Appartement à LYON-2E
Appartement à LYON-2E
Appartement à LYON-2E
Ce site est protégé par reCAPTCHA la Politique de confidentialité et les Conditions d’utilisation de Google s’appliquent.
Obtenir un prêt immobilier au meilleur taux ?

En poursuivant votre navigation sans modifier vos paramètres, vous acceptez l'utilisation de cookies susceptibles de réaliser des statistiques de visite. Cliquez ici pour plus d'informations